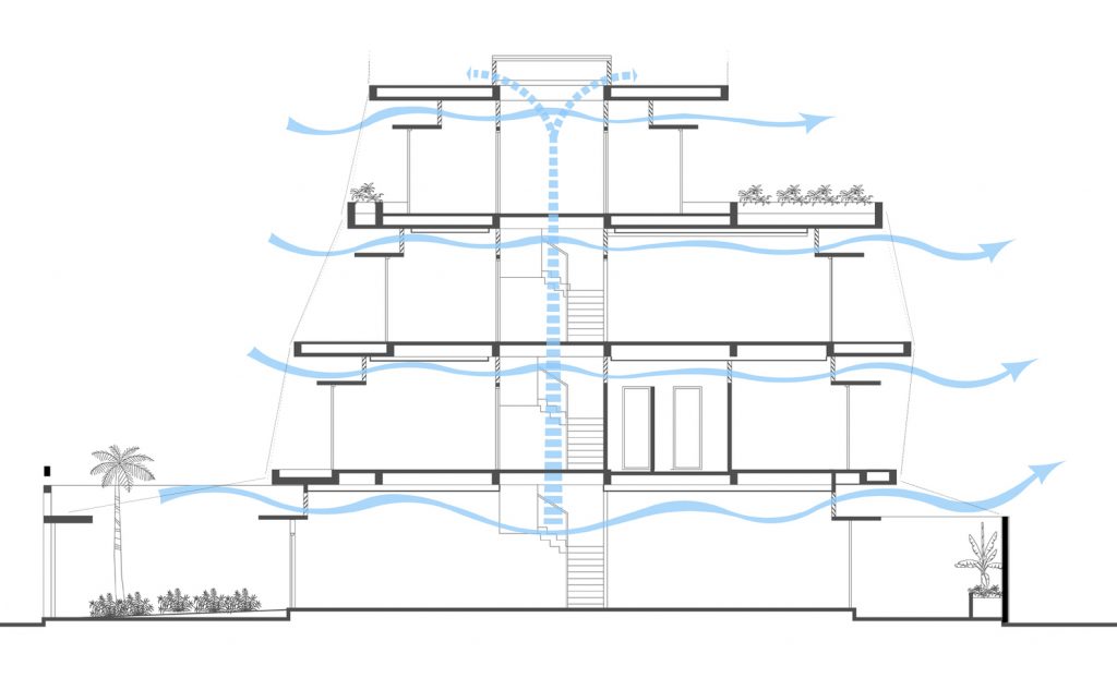
Các ngôi nhà thuộc địa Pháp và thời kỳ đầu theo chủ nghĩa modernist ở Việt Nam thường có lỗ thông hơi rộng rãi ở đỉnh của các bức tường bên ngoài và bên trong ở mỗi tầng, sau đó sử dụng quạt trần để di chuyển không khí qua các khe hở. Nhưng hầu hết các ngôi nhà được xây dựng trong hai thập kỷ gần đây ngày càng giống như hang động hơn với máy điều hòa.
Mục tiêu chính của Breeze House là cung cấp nơi ở thoải mái cho kiến trúc sư và gia đình khi nghỉ hưu. Ngôi nhà có cửa sổ kính mái che ở phía trên tất cả các bức tường bên ngoài và bên trong để cho phép thông gió khắp nhà. Cửa sổ mái che có thể được đóng lại nếu cần thiết để cho phép điều hòa không khí, nhưng trên thực tế, điều hòa hiếm khi được dùng và gió luôn di chuyển khắp nhà.
Cửa sổ và cửa chính được mở vào ban ngày trong hầu hết các ngôi nhà Việt Nam để thông gió, nhưng phải đóng vào ban đêm để đảm bảo an ninh. Với Breeze House, lưới thép bao bọc bên ngoài của tất cả các ban công, vì vậy cửa sổ và cửa ra vào có thể vẫn mở vào mọi lúc nếu muốn.
- Thiết kế: Mel Schenck
- Diện tích: 309 m²
- Địa điểm: Tân Phú, TP.HCM
- Năm: 2015
- Hình ảnh: Hiroyuki Oki


























Để lại đánh giá