[Dẫn lời KTS]
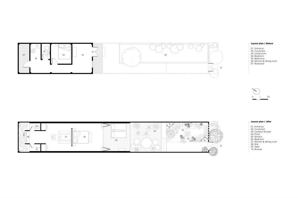
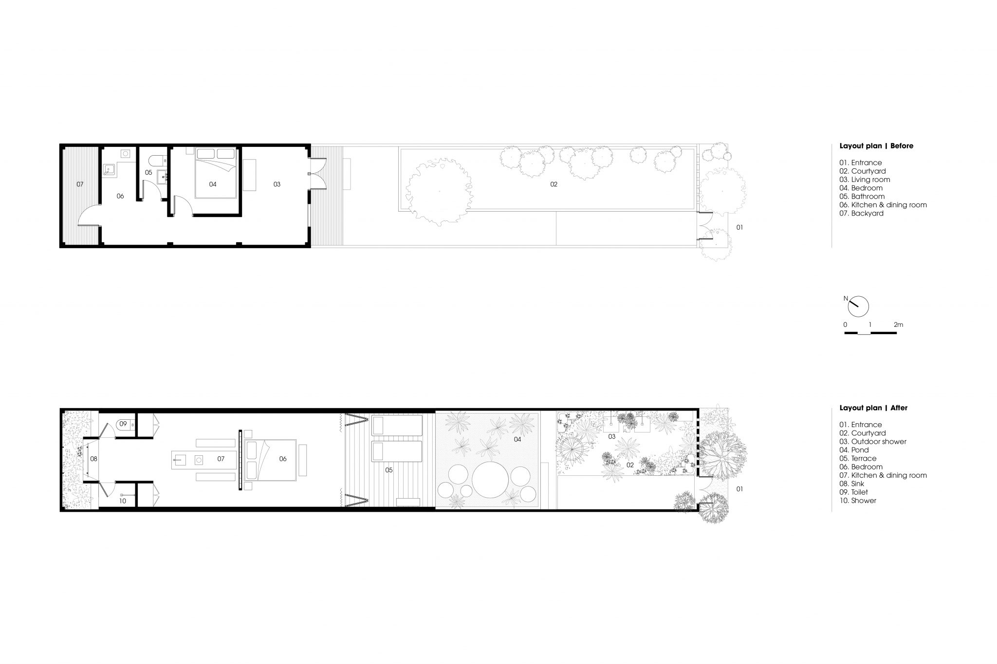
Công trình nằm trên một triền dốc đổ ra biển Mũi Né, tỉnh Bình Thuận. Haus Space cải tạo nhà ở hiện trạng thành một nơi kinh doanh dịch vụ lưu trú, mang tên Hill Lodge.
Phương án thiết kế là giữ lại khung nhà sẵn có gồm tường bao và mái, tổ chức các không gian chức năng bên trong và xây thêm một mái hiên rộng liên kết với cảnh quan bên ngoài.
Các không gian vừa có tính kết nối thống nhất vừa có sự phân chia ước lệ thông qua các lớp ngăn nhẹ liên tiếp nhau như cửa, rèm, vách gạch kính, cây xanh…
Công trình ưu tiên thông thoáng tự nhiên, sử dụng nguồn vật liệu và thợ địa phương, nhằm giúp tiết kiệm chi phí đầu tư và mang lại phong vị biển đặc trưng cho người sử dụng.
- Thiết kế: Haus Space
- Địa điểm: Mũi Né
- Năm: 2018
- Hình ảnh: Lê Hậu

















































Để lại đánh giá