[Dẫn lời KTS]
Ngôi nhà tọa lạc tại Nha Trang, một thành phố biển xinh đẹp ở miền Trung Việt Nam. Khách hàng muốn có một ngôi nhà lớn và một khu vườn rộng. Đáp ứng yêu cầu này, một mái nhà duy nhất được thiết kế như một khu vườn treo để trồng vô số cây cối và thực vật trên đó.
Tuy nhiên, quy chuẩn xây dựng địa phương yêu cầu gần 50% diện tích mái được lợp bằng ngói màu xám hoặc màu cam và được làm dốc. Để tuân theo quy tắc này nhưng tối đa hóa diện tích cây xanh trên đỉnh, mái nhà được chia thành các dải song song mái phủ xanh và mái ngói theo một trình tự xen kẽ.
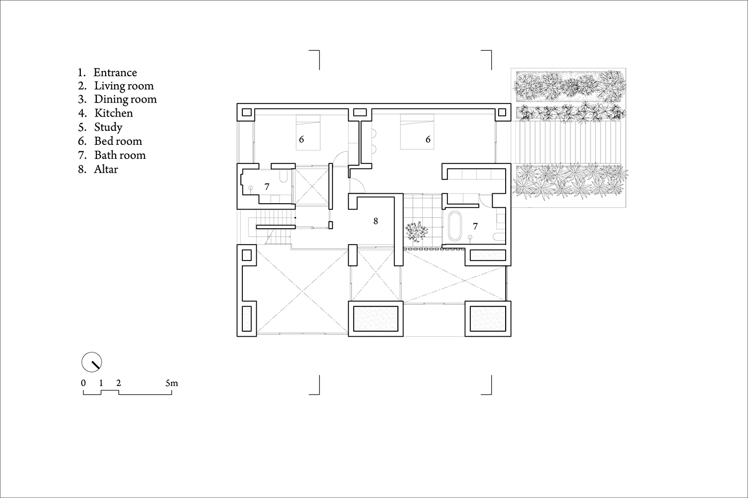
Các không gian bên trong ngôi nhà được cấu trúc bởi hệ thống các dải song song này. Dưới mái ngói là các phòng sinh hoạt, ăn uống và phòng ngủ, trong khi các không gian dịch vụ, chẳng hạn như phòng tắm, kho và không gian lưu thông, được đặt dưới mái nhà phủ xanh, nơi chiều cao trần nhà bị hạn chế vì lớp đất sâu cho cây trên đỉnh. Một khoảng trống và ba hàng hiên được thiết kế trong hệ thống các dải để tăng cường chiếu sáng và thông gió tự nhiên.
Ngôi nhà là một trong những biến thể của dự án “Nhà Cho Cây” của nhóm KTS Võ Trọng Nghĩa. Có độ dốc nhẹ, cảnh quan trên mái nhà này được kết nối trực quan với những ngọn núi bao quanh. Dưới bóng cây, cư dân có thể ngắm cảnh và trải nghiệm cuộc sống của mình với đầy cây xanh.
- Thiết kế: VTN Architects, ICADA
- Diện tích: 276 m²
- Địa điểm: Nha Trang
- Năm: 2015
- Hình ảnh: Hiroyuki Oki




















































Để lại đánh giá