Nằm trên một khu đất rộng rãi có diện tích 8 x 17 mét vuông, ngôi nhà được thiết kế cho một phụ nữ trẻ và gia đình của mình, những người thường xuyên đến thăm. Ưu tiên hàng đầu của chủ sở hữu là ánh sáng tự nhiên và cây xanh được tận dụng tối đa.

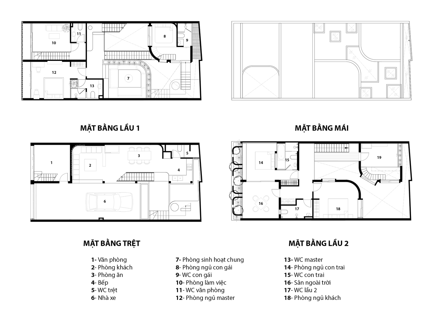
Ngôi nhà được chia thành hai khu. Phần sau của ngôi nhà, vốn dành cho nữ chủ nhân của ngôi nhà, bao gồm một phòng ngủ và phòng học liên thông chiếm hai tầng, trong khi phần trước của ngôi nhà bao gồm phòng ngủ cho bố mẹ và anh trai của cô. Các khu vực này được liên kết với nhau bằng những cây “cầu” và cửa sổ để gắn kết gia đình.

Ngoài ra, không gian mở để nấu nướng, ăn uống và tụ họp được đặt ở trung tâm ngôi nhà nơi có nhiều cây xanh. Những khu vực chung này giúp tăng cường mối quan hệ giữa các thành viên trong gia đình khi họ ra khỏi phòng của mình. Một số góc của ngôi nhà được bo tròn để khoét những khoảng trống làm mờ ranh giới và tăng cường sự tiếp giáp giữa hai khối kiến trúc. Cách xử lý này cũng cho phép ánh sáng tràn ngập ngôi nhà, tạo ra hiệu ứng liền mạch mà không bị gián đoạn bởi các bức tường.

Mặt tiền hướng Tây cũng là nơi hứng chịu một lượng lớn bức xạ mặt trời vào ban ngày. Gạch hở là một giải pháp hiệu quả cho vấn đề này vì chúng cung cấp ánh nắng mặt trời, cho phép thông gió và tầm nhìn tự nhiên nhưng vẫn đảm bảo riêng tư. Mặt tiền bằng gạch hở này cũng tạo ra hiệu ứng ánh sáng và bóng tối ấn tượng thay đổi suốt cả ngày.
- Thiết kế: Khuon Studio
- Diện tích: 136 m²
- Địa điểm: TP.HCM
- Năm: 2018
- Hình ảnh: Hiroyuki Oki



















































Để lại đánh giá