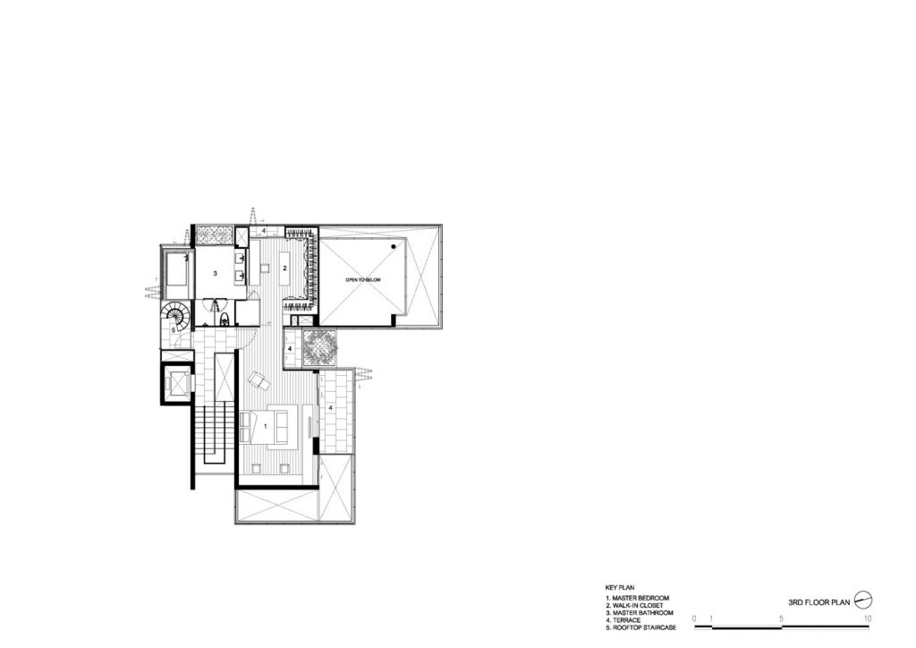
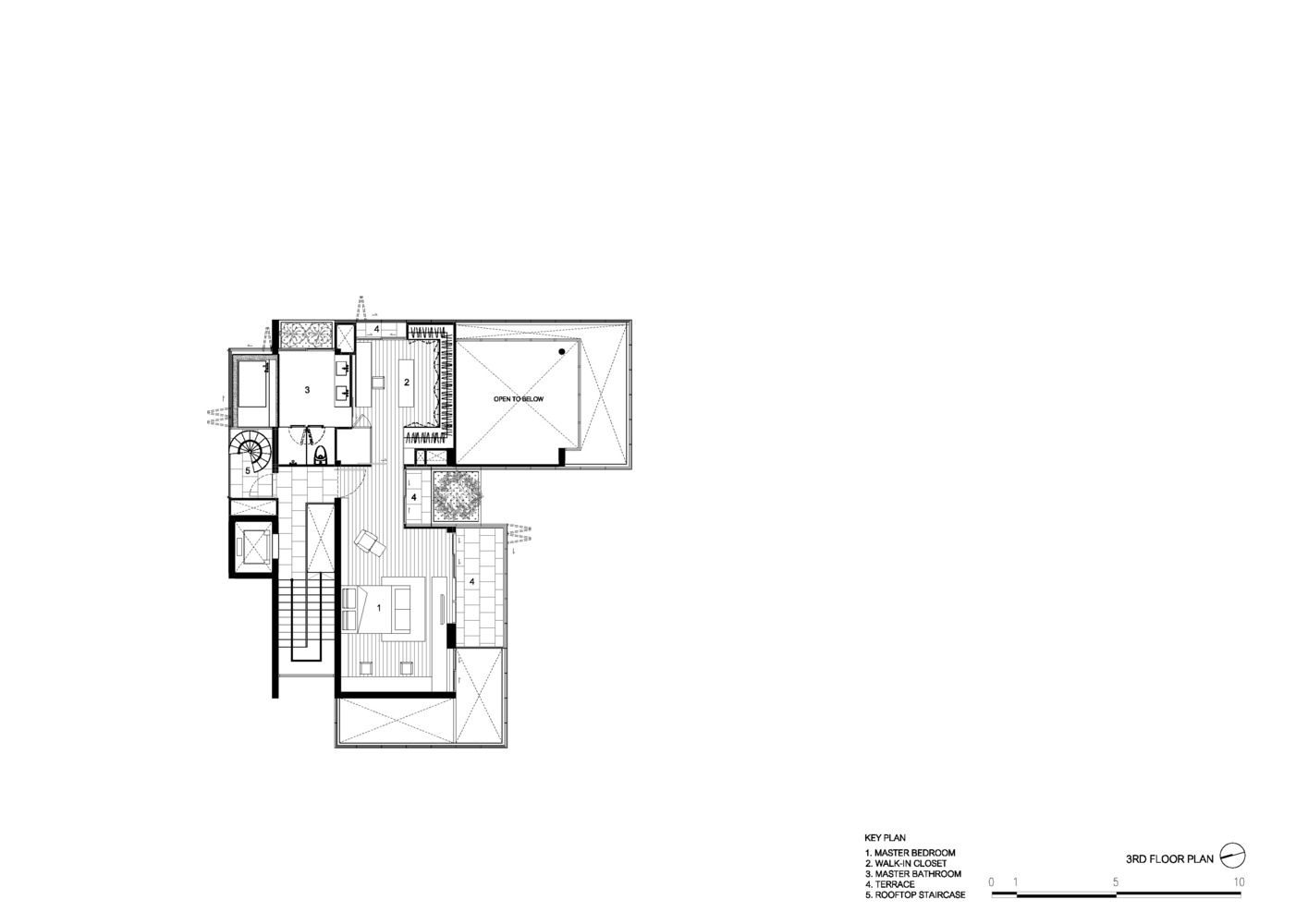
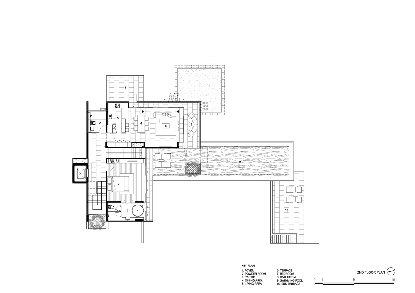
Thuộc sở hữu của một cặp vợ chồng yêu thiên nhiên, Shade House được quy hoạch thành một dinh thự riêng hai tầng. Điều này làm cho các không gian chức năng của nó lan rộng ra hầu hết trên toàn bộ diện tích.
Tuy nhiên, với kế hoạch tạo ra ít tác động đến môi trường nhất có thể, ngôi nhà do đó được chuyển đổi thành một tòa nhà ba tầng với các bãi đậu xe được đặt riêng biệt ở phía trước. Chiến lược mới này giúp nâng số mét vuông diện tích xanh lên lớn hơn 60%, gấp đôi so với yêu cầu tối thiểu của các quy định về diện tích cây xanh ở Bangkok.
Cùng với việc bổ sung thêm các khu vườn nhỏ ở mọi góc của ngôi nhà và một mái nhà xanh, không gian xanh tổng thể của ngôi nhà này được tăng lên 90%. Vào thời điểm thảm thực vật đã phát triển đầy đủ và bao phủ tất cả các độ cao của ngôi nhà, khu vực cây xanh sẽ lớn hơn 150% so với vị trí ban đầu. Do đó, nó sẽ đáp ứng ý định ban đầu của cả chủ sở hữu ngôi nhà và các kiến trúc sư là tối đa hóa các giác quan cảm nhận cảnh vật thiên nhiên trong khuôn viên, thiết lập sự giao tiếp lâu dài giữa người ở và thiên nhiên xung quanh.
- Thiết kế: Ayutt and Associates design
- Diện tích: 950 m²
- Địa điểm: Thailand
- Năm: 2020
- Hình ảnh: Chalermwat Wongchompoo
THAM GIA CHIA SẺ Ý KIẾN VỀ CHỦ ĐỀ NÀY CÙNG ARC VIBES






































































Để lại đánh giá