[Dẫn lời KTS]
Là một phần trong chuỗi các dự án phát triển Kiến trúc Nông nghiệp, Terraces Home áp dụng sự kết hợp giữa Kiến trúc và Nông nghiệp làm cơ sở cho sự phát triển bền vững.
Ý tưởng là kết hợp hai yếu tố đặc trưng của vùng nông thôn Việt Nam: Ngôi nhà (không gian ở) và ruộng bậc thang (không gian canh tác) để tạo ra một Ngôi nhà xóa nhòa ranh giới giữa trong và ngoài, trên và dưới, chung và riêng.
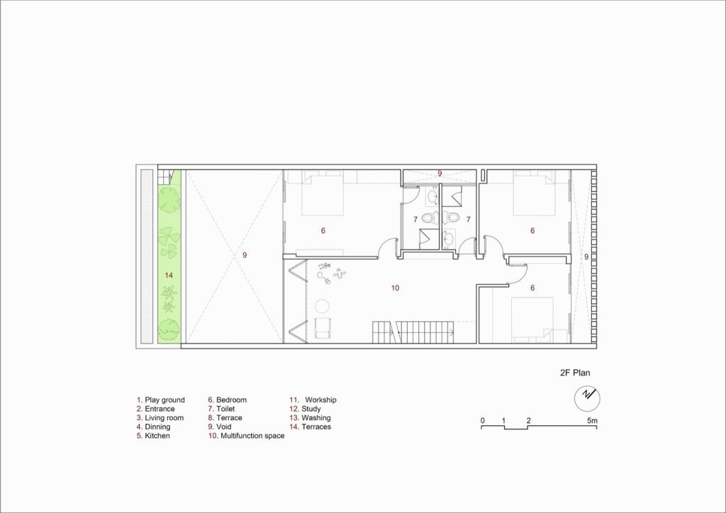
Một số không gian lưu trú được bố trí dọc theo độ dốc của mái nhà để có thể mở rộng ra các góc nhìn, ánh sáng và bóng tối, được kích hoạt bởi các khay bê tông đựng nông sản ở các tầng khác nhau ở trên cao. Dọc hai bên mái là hệ thống tưới tiêu để giữ cho các mảnh đất nông nghiệp luôn xanh tươi, giảm thiểu các tác động xấu của môi trường sống và điều kiện thời tiết nhiệt đới gió mùa như thiếu cây xanh, tiếng ồn, khói bụi, nắng nóng, bão lụt, v.v.
Canh tác nông nghiệp giúp người dân thành phố gần gũi hơn với thiên nhiên bằng cách mang đến cho họ những trải nghiệm thú vị trong việc trồng trọt, chăm sóc tốt và chia sẻ sản phẩm thu hoạch từ chính mảnh đất nông nghiệp của họ với những người hàng xóm.
Terraces Home như một lời nhắc nhở về nguồn gốc của nền văn minh lúa nước trong bối cảnh thế giới phẳng đang bị đe dọa bởi nhiều loại ô nhiễm ở mức báo động. Đồng thời, dự kiến sẽ thúc đẩy việc mở rộng diện tích đất canh tác ở các khu vực đô thị nhằm đảm bảo nguồn cung cấp lương thực cho cuộc sống trong tương lai.
- Thiết kế: H&P Architects
- Diện tích: 110 m²
- Địa điểm: Hà Tĩnh
- Năm: 2015
- Hình ảnh: Nguyen Tien Thanh




































































Để lại đánh giá