Với diện tích khiêm tốn chỉ 2,5 x 6,5m, nhưng ngôi nhà có thiết kế tận dụng ánh sáng và thông gió hiệu quả cho gia đình 3 thành viên một cuộc sống thoải mái và không gian ấm cúng trong hẻm nhỏ Sài Gòn

Tầng trệt kết hợp phòng khách, phòng ăn tối và nhà bếp. Để các chức năng này hoạt động linh hoạt và tận dụng tối đa không gian, sàn được nâng lên chừa không gian bên dưới để chứa đồ và cũng có thể làm băng ghế ăn tối cho bàn nâng thẳng đứng.

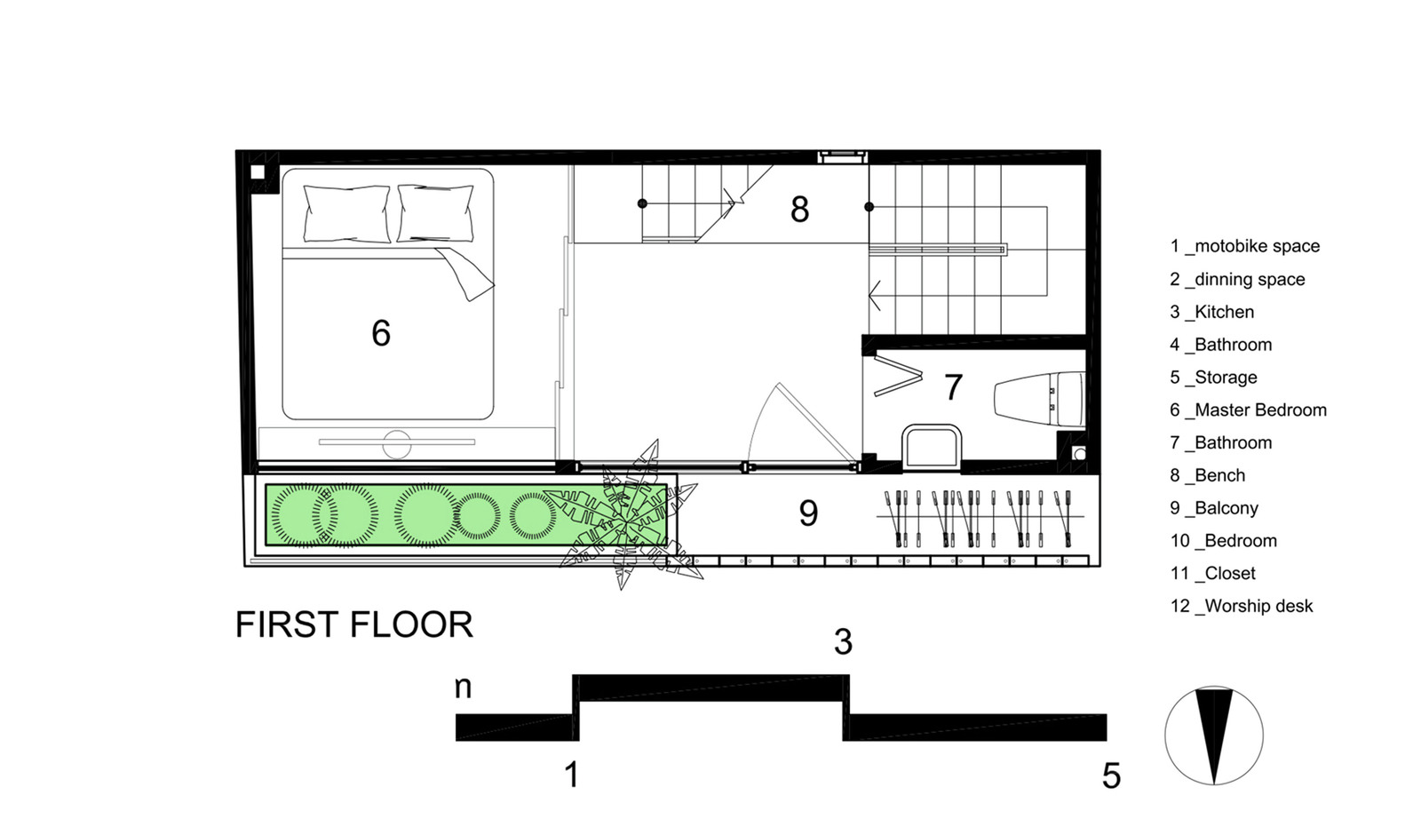
Tầng trên và một gác lửng gồm 2 phòng ngủ cho bố mẹ và con. Ý tưởng thiết kế nội thất nhằm mục đích hướng đến các phòng ngủ có không gian mở về ánh sáng và thông gió tốt. Không gian riêng tư được bao bọc bởi cửa tre trượt linh hoạt. Trong phòng ngủ, sàn cũng được nâng để lấy không gian bên dưới làm kho chứa đồ. Đây là yếu tố then chốt giúp không gian ấm cúng dường như rộng hơn và nhẹ nhàng hơn.

Khách hàng và kiến trúc sư tình cờ có cùng sở thích về ánh sáng tự nhiên và thực vật. Nên một nửa ban công là thùng cây, thêm chút màu xanh quý giá cho tầm nhìn từ phòng ngủ chính. Phần còn lại của ban công được ẩn sau một bức tường bê tông hoa văn. Ánh sáng kết hợp tốt với hộp tưới cây tự động trên mái cùng nhau mang lại ánh sáng và đổ bóng xanh mát xuống phòng ngủ của trẻ.

Chủ nhân căn nhà là những người trẻ có lối sống hiện đại và đầu óc tự do, nên đã cho phép kiến trúc sư loại bỏ lan can cầu thang giống như hàng rào và các chi tiết phức tạp khác để xóa bỏ mọi giới hạn về không gian, đem đến sự kết hợp hài hòa.
- Thiết kế: Khuon Studio
- Năm: 2015
- Địa điểm: Tân Bình, TP.HCM
- Hình ảnh: Thiet Vu
















































Để lại đánh giá