[Dẫn lời KTS]
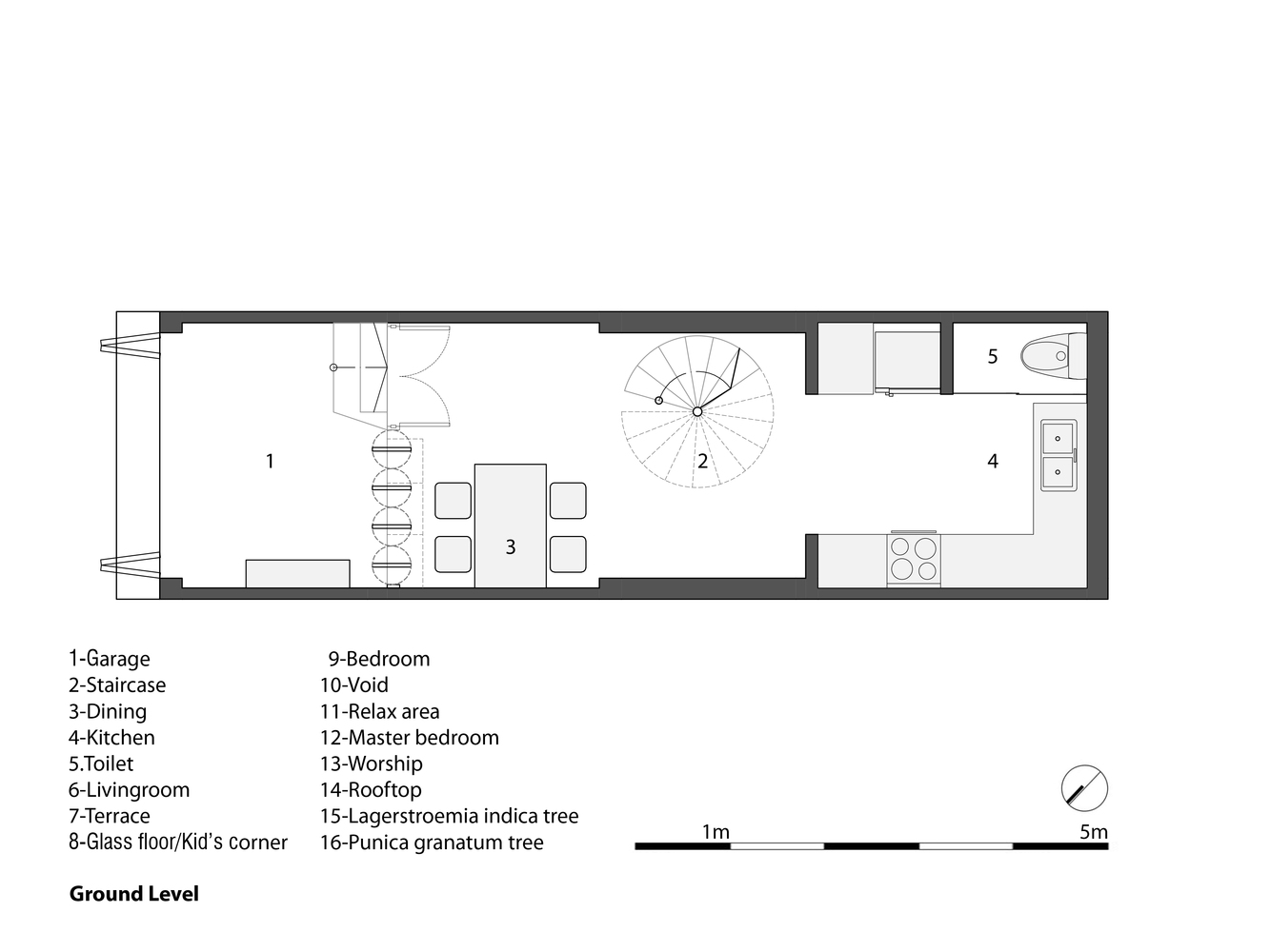
Trong những năm qua, Hà Nội phát triển một cách tự phát và nhà ống đã trở thành một kiểu nhà phổ biến ở nơi đây với những ngôi nhà san sát cạnh nhau, sâu trong ngõ hẹp, và xếp lớp như cá mòi.
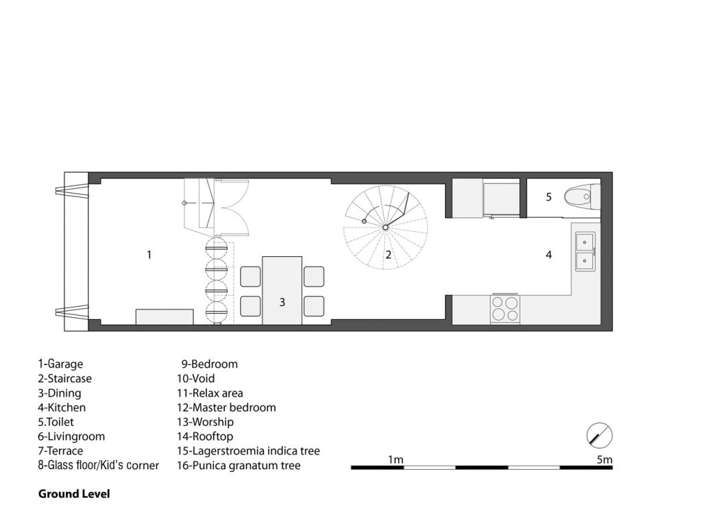
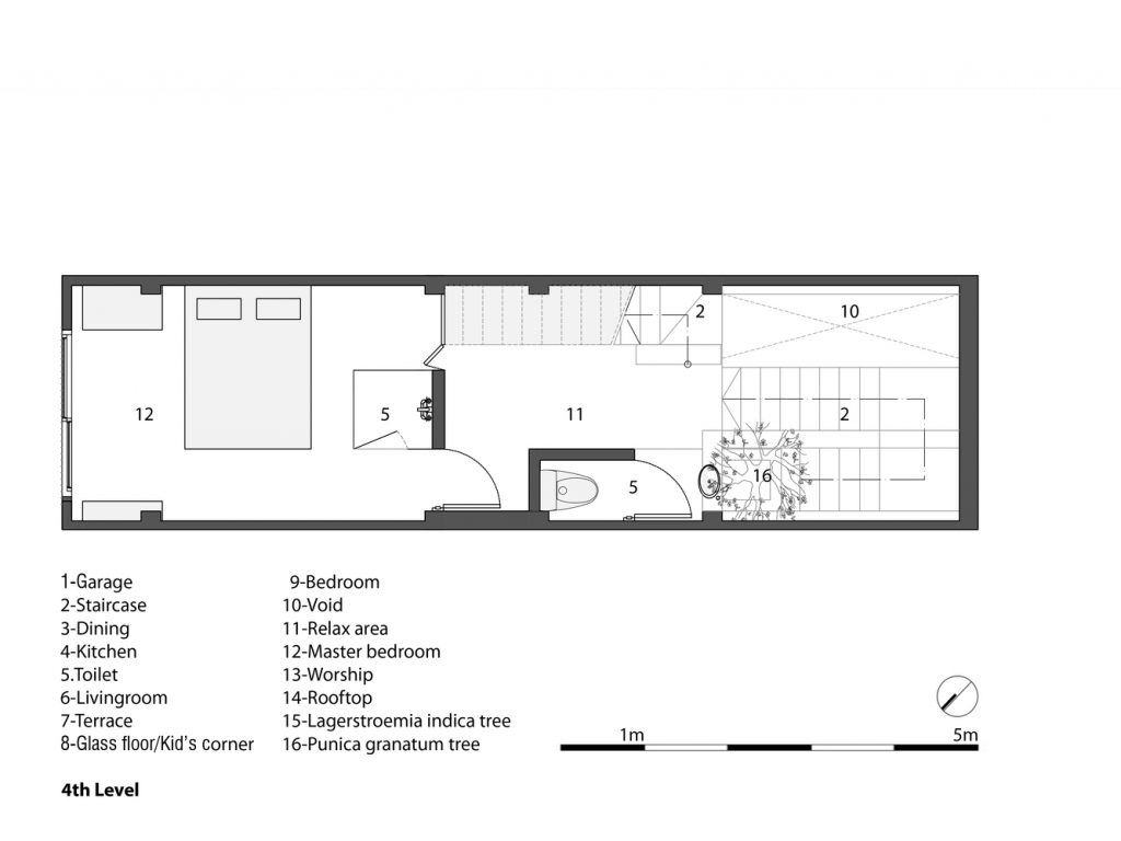
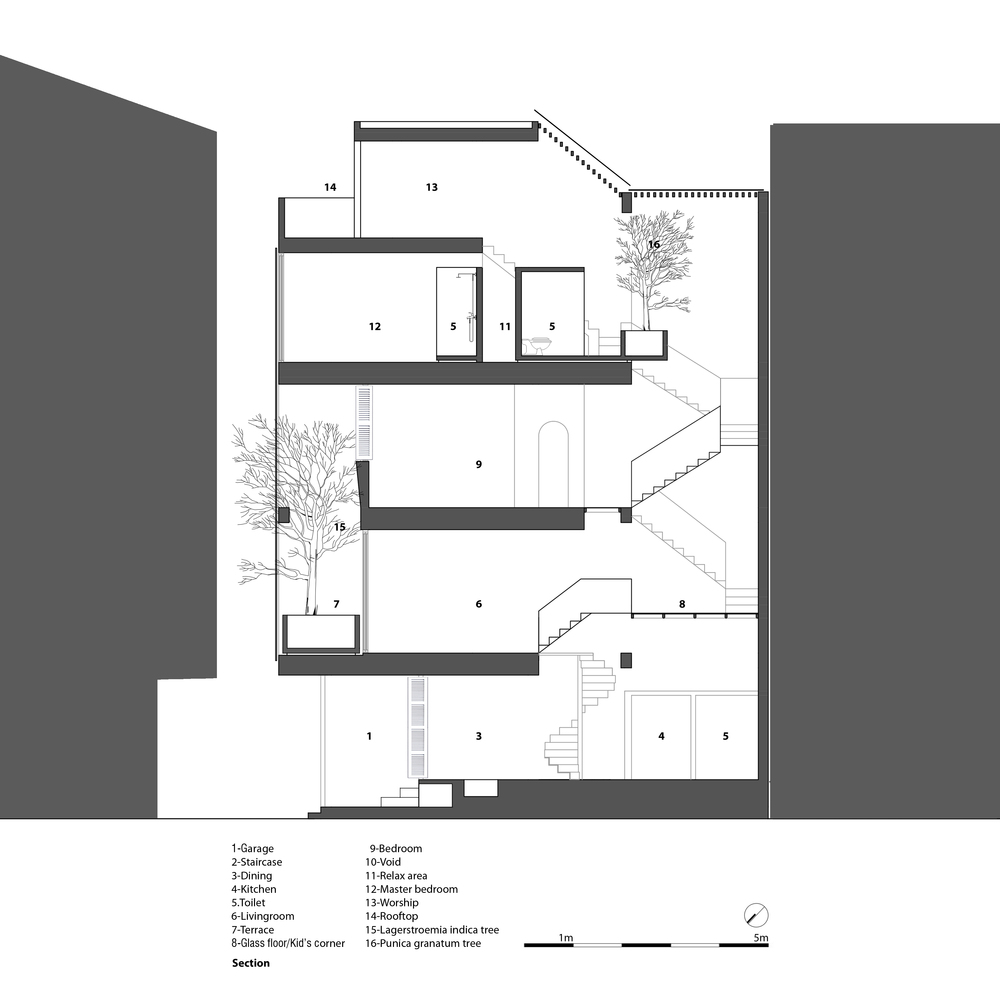
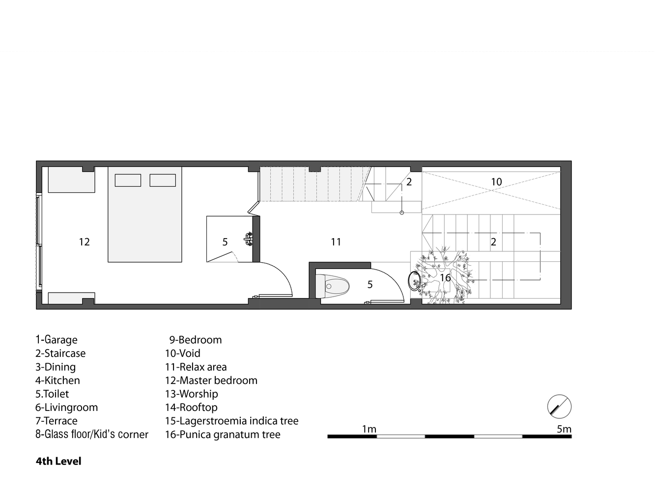
Những ngôi nhà ống điển hình được “thiết kế” theo kiểu truyền miệng hoặc dựa trên kinh nghiệm của những người xây dựng, với kiểu “cầu thang ở giữa, hai phòng hai bên”, luôn thiếu ánh sáng, thiếu thông gió với độ ẩm cao đã quá quen thuộc với hầu hết người dân sống tại các đô thị Việt Nam.
3×10 đã từng là kiểu nhà như vậy, cho đến khi khách hàng gặp gỡ và thảo luận với kiến trúc sư về các yêu cầu của họ. Sau khi thiết kế và thi công, ấn tượng đầu tiên về ngôi nhà có lẽ là sự sạch sẽ và ánh sáng ngập tràn trong nhà.
- Thiết kế: AHL architects associates
- Năm: 2015
- Địa điểm: Định Công, Hoàng Mai, Hà Nội
- Hình ảnh: Hoang Le Photography
























































Để lại đánh giá