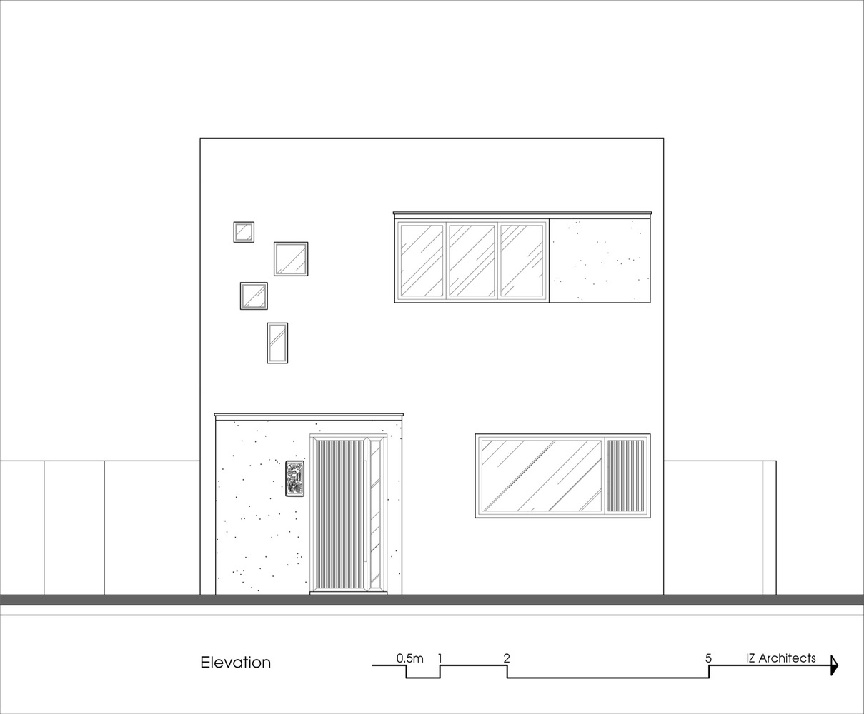
Ngôi nhà lấy cảm hứng từ không gian zen thiền định và từ một số ngôi nhà nông thôn nhỏ ở vùng quê ven biển miền Trung. Yêu cầu được đặt ra là ngôi nhà phải có một không gian liên kết đầy thân thiện, gần gũi và linh hoạt.

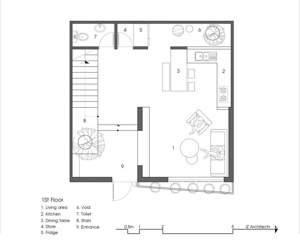
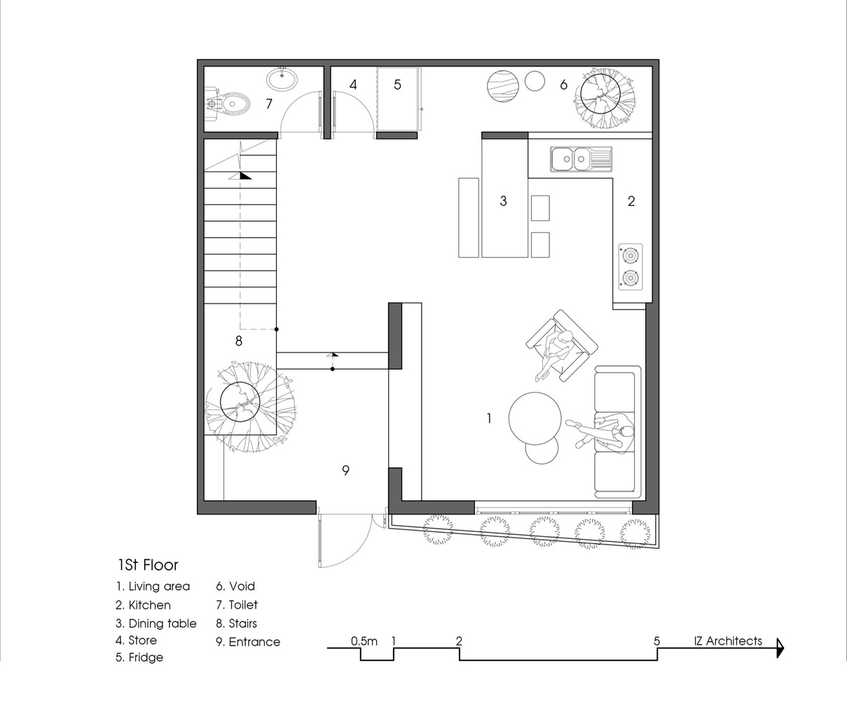
Vấn đề khí hậu đã được xem xét ngay từ đầu. Vì diện tích mặt bằng cực nhỏ cùng với 3 mặt khuất của ngôi nhà nên quy hoạch chia thành hai giếng trời giúp gió và ánh sáng đến khắp các ngóc ngách của ngôi nhà.

Cây xanh là một phần không thể thiếu vì chúng đóng vai trò quan trọng trong việc làm nổi bật những lỗ giếng lấy sáng, giúp tạo cảm giác thư thái, thoải mái cho ngôi nhà nhỏ.

Kiến trúc sư đã thiết kế tầng 1 với không gian chung lớn gồm phòng khách, quầy nấu nướng, bàn ăn, hạn chế sảnh và không gian phụ với diện tích tối đa.
- Thiết kế: IZ Architects
- Diện tích: 49 m²
- Địa điểm: Sơn Trà, Đà Nẵng, Vietnam
- Năm: 2017
- Hình ảnh: Quang Dam






















































Để lại đánh giá