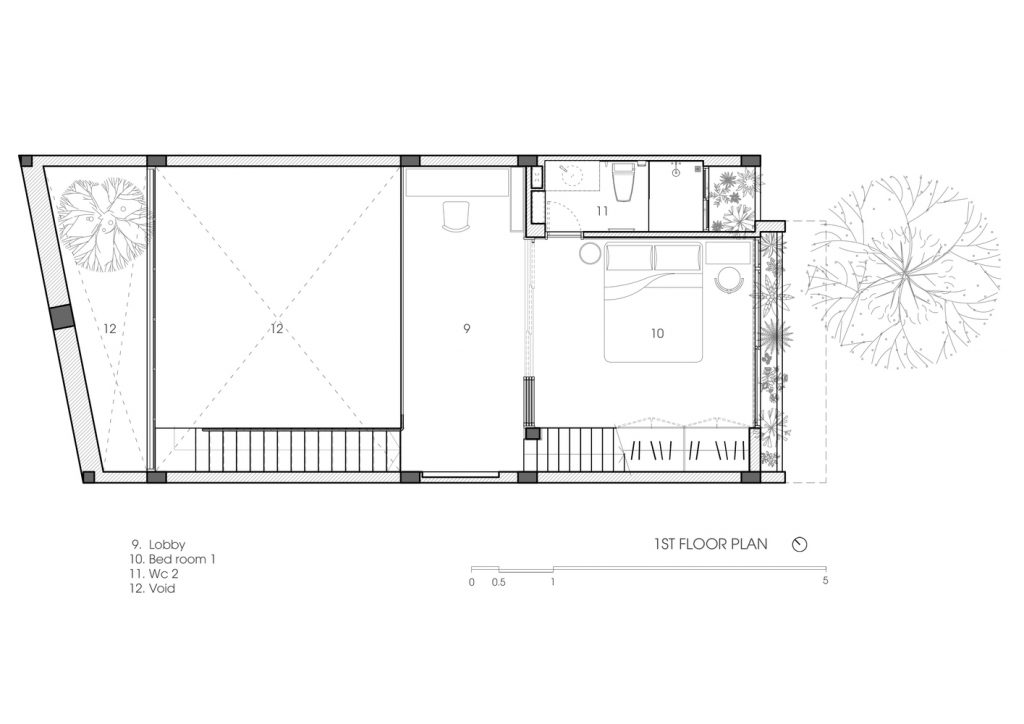
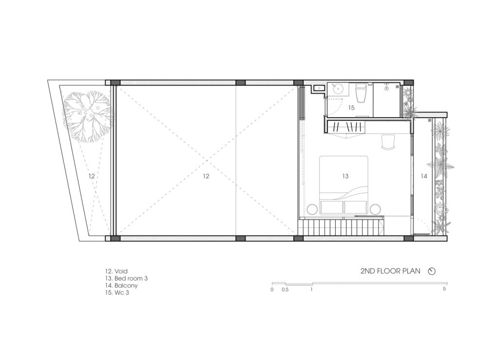
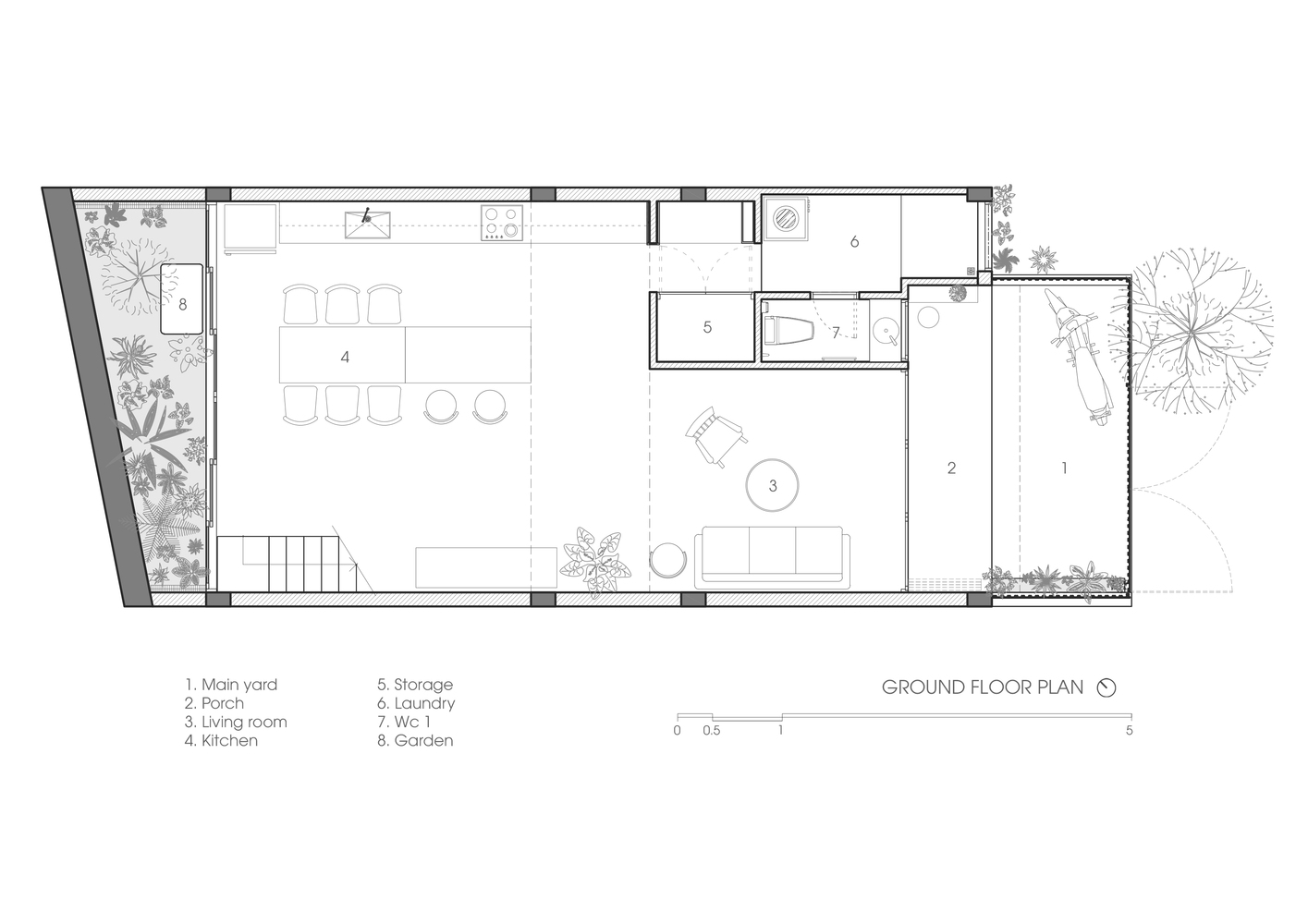
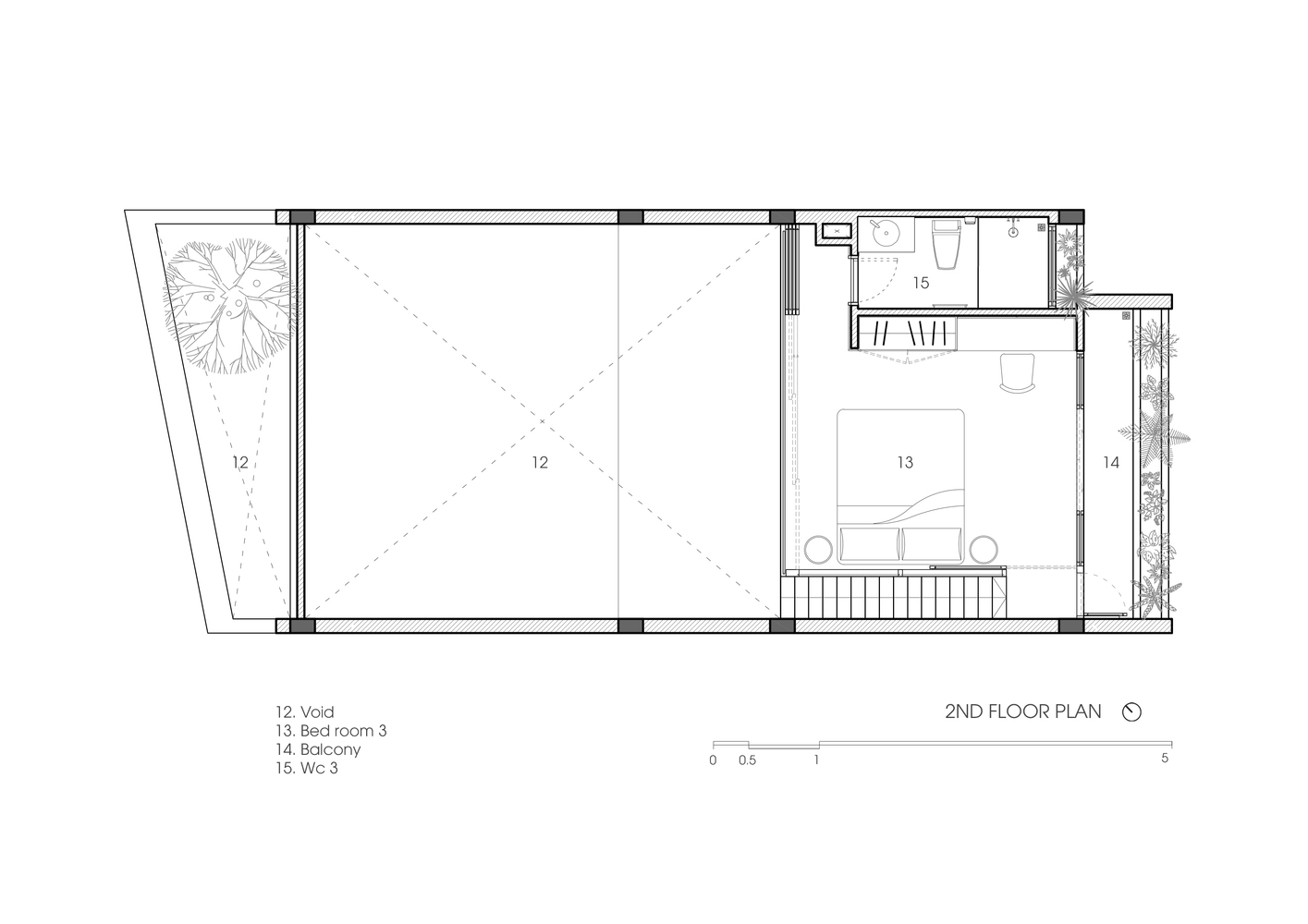
Ngôi nhà được xây dựng cho 4 thành viên: một cặp vợ chồng và con trai của họ tên là Bin & Bon. Người vợ rất thích nấu nướng và quan tâm đến con nhỏ trong khi làm việc nhà. Đó là lý do mà nhóm thiết kế phác thảo ý tưởng mặt cắt của ngôi nhà là một thửa ruộng bậc thang, mỗi tầng lùi vào trong.

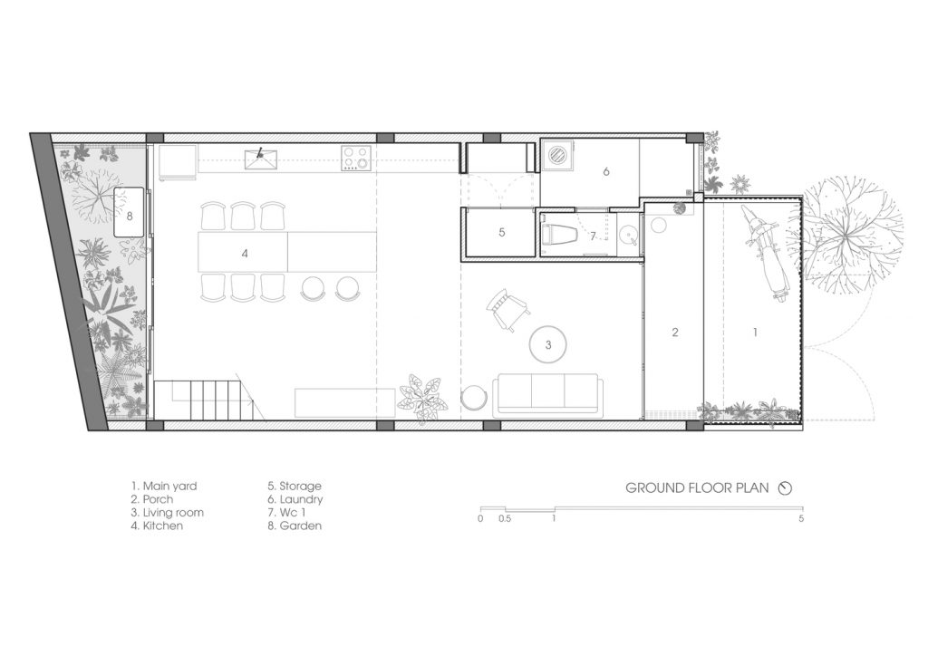
Với định hướng là xây dựng một công trình kiến trúc đơn giản, không có tường, chỉ sử dụng cửa kính trượt và rèm cửa để tạo ra không gian thoáng sáng và mang lại luồng sinh khí dễ chịu nhất. Phòng bếp là không gian chính để các thành viên có thể nhìn ngắm tất cả các không gian khác trong nhà.

Nhà nằm ngay ngã tư trong hẻm nhỏ, có sân trước hiên nhà là nơi tụ tập của mấy đứa trẻ hàng xóm chơi với Bin & Bon. Mặt tiền nhà thường xuyên đón gió khô nóng nên mỗi tầng đều có sân vườn làm nơi chắn gió giảm gió cũng như ánh sáng của các phương tiện từ đường chính vào hẻm. Sau nhà có bờ đồi cao hơn 3 mét, có một số ngôi nhà nằm ở đó nên nhóm thiết kế đã dựng một bức tường cao để che tầm nhìn ra phía sau của ngôi nhà và tránh ánh nắng phía đông. Khoảng sân rộng 2m trở thành không gian xanh chủ đạo cho phòng bếp.

Công trình nằm trong khu vực địa phương nên thiết kế theo hướng dễ xây dựng nhất có thể cho nhân công địa phương, vật liệu cơ bản, dễ kiếm, giá cả hợp lý với túi tiền của gia chủ, hạn chế tối đa phát sinh.
- Thiết kế: H.a
- Diện tích: 170 m²
- Địa điểm: Quy Nhơn
- Năm: 2019
- Hình ảnh: Quang Dam
THAM GIA CHIA SẺ Ý KIẾN VỀ CHỦ ĐỀ NÀY CÙNG ARC VIBES




















































Để lại đánh giá