[Dẫn lời KTS]
B House tọa lạc tại một khu dân cư ngoại thành Hà Nội, thuộc sở hữu của một chủ xưởng bê tông. Chủ nhân căn nhà muốn có một không gian thoáng mát và các phòng ngủ hướng vườn nhưng vẫn đảm bảo sự riêng tư và an ninh.

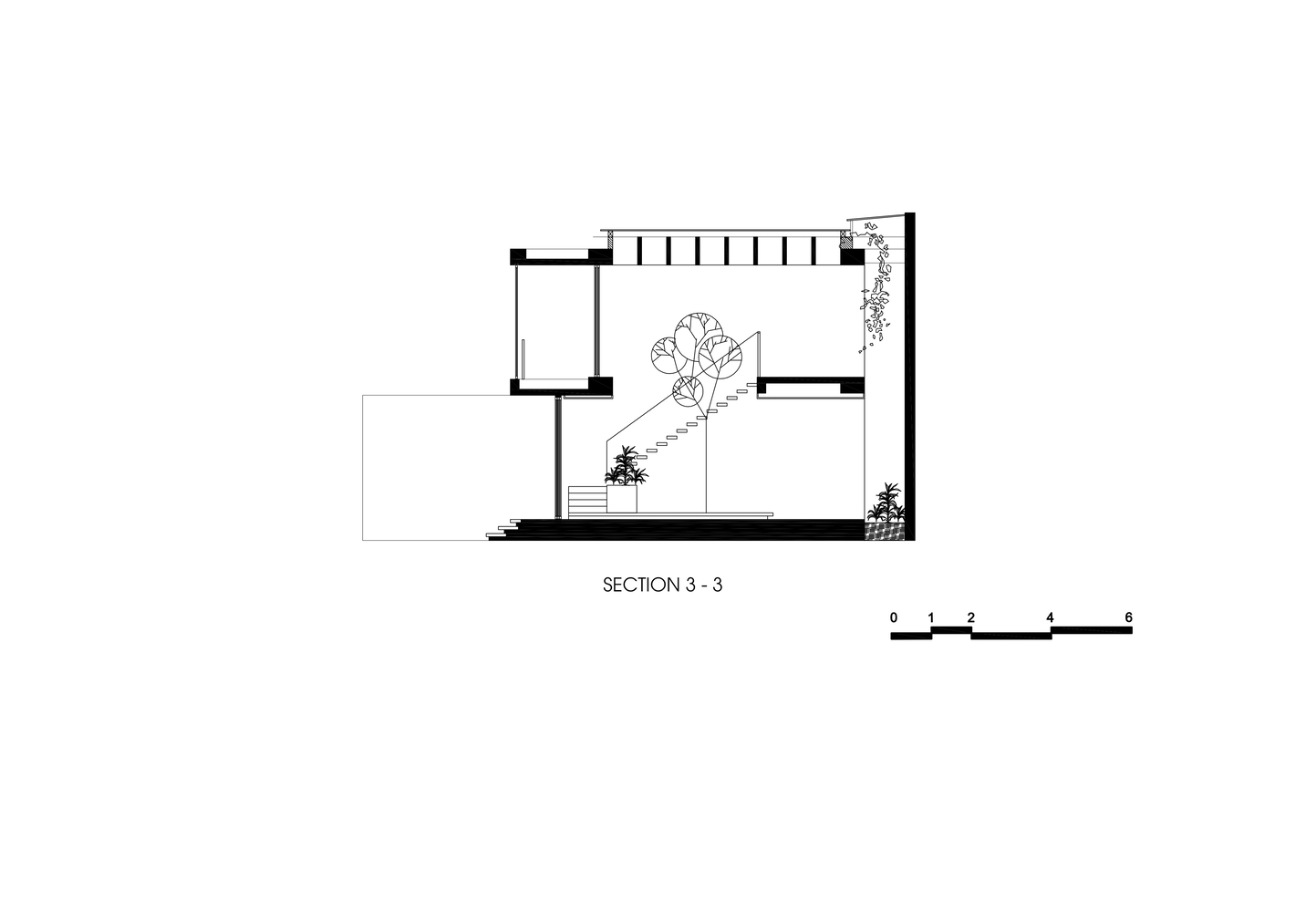
Với yêu cầu này, nhóm KTS đã phát triển một hình thức thiết kế kiến trúc đơn giản nhưng mạnh mẽ cho khu vườn trước nhà. Bản chất của ngôi nhà này là một không gian mở, ranh giới giữa bên trong và bên ngoài dần xóa nhòa để tạo ra sự kết nối giữa con người với thiên nhiên.

Ánh sáng từ bên ngoài được hút từ mái qua các ô kính vào không gian xanh bên trong, xung quanh khoảng trống này là cầu thang và hành lang dài rộng kết nối các không gian chức năng với nhau. Mặt tiền ngôi nhà là hệ thống cửa nan tre ép khung sắt có thể đóng mở linh hoạt. Hệ thống cửa này cũng làm giảm ánh sáng mặt trời chiếu trực tiếp từ phía đông, cũng như đảm bảo các vấn đề riêng tư và an ninh.

Vì gia chủ rất yêu thích bê tông, nhóm KTS chọn vật liệu hoàn thiện chủ yếu là bê tông với bề mặt nhám, gỗ màu hạt dẻ giúp không gian trở nên ấm cúng hơn.
- Thiết kế: 365 Design
- Diện tích: 180 m²
- Địa điểm: Hà Nội
- Năm: 2020
- Hình ảnh: Hoang Le



























































Để lại đánh giá