Lấy cảm hứng từ những ngôi nhà cổ truyền của Hà Nội, với không gian tràn ngập ánh sáng và thông gió tự nhiên nhờ các khoảng sân trong. Thiết kế nhằm mang lại hơi thở tinh thần truyền thống cho cuộc sống hiện đại, đồng thời tạo ra những không gian tràn ngập ánh sáng tự nhiên và đảm bảo thông gió tự nhiên bên trong ngôi nhà.
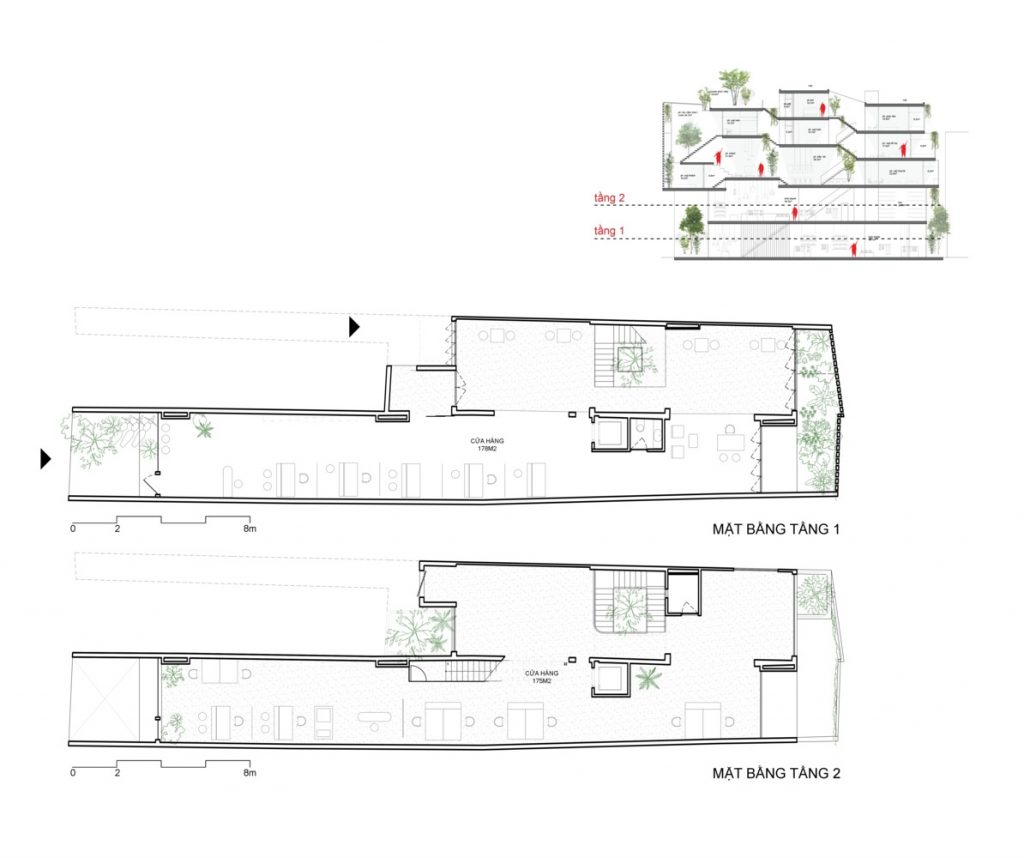
Công năng của ngôi nhà được tách biệt thành 2 khu: khu thương mại hai tầng và khu gia đình. Các không gian chung của khu vực gia đình như phòng khách, thư viện, phòng ăn và nhà bếp được bố trí ở các tầng khác nhau với độ cao trần khác nhau nhằm tạo ra không gian liên tục mở để duy trì giao tiếp của gia đình với nhau dễ dàng hơn. Thiết kế này giúp cho không gian được mở một cách hợp lý và mang lại cảm giác rộng rãi bất ngờ, mặc dù chiều rộng của ngôi nhà có hạn.
Ngoài ra, phòng ngủ của hai con nằm phía trên khu vực chung chính, bên cạnh các khoảng trống, cho phép kết nối với các thành viên trong gia đình ở tầng dưới. Khu vực yên tĩnh nằm ở trong cùng của ngôi nhà, bao gồm phòng ngủ của ông bà và phòng ngủ chính của bố mẹ. Yếu tố quan trọng của không gian nội thất là ba khoảng trống ngăn cách thể tích ngôi nhà để cung cấp ánh sáng tự nhiên vào các không gian tầng thấp hơn của ngôi nhà.
Mối quan hệ gia đình trong gia đình truyền thống Việt Nam rất bền chặt. Thông thường, vài thế hệ sống cùng nhau dưới một mái nhà duy nhất, nơi diễn ra nhiều sự kiện gia đình. Trong thế giới công nghệ hiện đại ngày nay với điện thoại thông minh và tivi, những mối quan hệ này đang bị suy yếu. Thiết kế không gian nhấn mạnh sự kết nối giữa các thành viên trong gia đình, đặc biệt trong bối cảnh nhịp sống hối hả của Việt Nam ngày nay đang phát triển mạnh về kinh tế.
Thiên nhiên là một yếu tố quan trọng mang lại ảnh hưởng tích cực đến sức khỏe tinh thần của con người. Tuy nhiên, sự phát triển nhanh chóng của các thành phố lớn tạo ra sự thiếu hụt không gian xanh cho người dân thư giãn. Chính vì vậy việc trồng cây xanh, cây cảnh trong nhà là cần thiết và giúp tạo không gian sống yên bình, xả stress. CH House không chỉ là nơi ở mà còn là nơi cố gắng tạo ra mối liên kết giữa con người và thiên nhiên vốn rất thường bị thiếu ở Hà Nội do nhiều vấn đề về môi trường và không gian xanh hạn chế.
Mặt tiền của ngôi nhà được thiết kế kép với lớp ngoài được làm từ các khối xi măng đục lỗ và lớp bên trong bằng kính khung thép. Mặt tiền hai lớp kết hợp với một lớp cây xanh giúp che chắn nắng, khói bụi và thông gió tự nhiên trong suốt chiều dài của ngôi nhà. Mặt tiền cũng được thiết kế với một cửa sổ lớn, cung cấp nhiều ánh sáng hơn cho ngôi nhà khi cần thiết và tạo cho mặt tiền một cái nhìn hấp dẫn hơn.
- Thiết kế: ODDO architects
- Diện tích: 220 m²
- Địa điểm: Hà Nội
- Năm: 2019
- Hình ảnh: Hoang Le photography
THAM GIA CHIA SẺ Ý KIẾN VỀ CHỦ ĐỀ NÀY CÙNG ARC VIBES























































Để lại đánh giá