[Dẫn lời KTS]
Vị trí của dự án nằm tại góc ngã tư của một khu phố ở Hà Nội. Hiện trạng là một ngôi nhà 5 tầng được xây dựng từ những năm 2000. Góc phố là nơi gặp gỡ tự nhiên của những chuyến đi, của những con người khác nhau, sự nhộn nhịp đó tạo nên một khung cảnh tràn đầy sức sống.
Chị chủ nhà là người trung tuổi, sinh ra và lớn lên tại Hà Nội. Chị yêu mến cuộc sống thường ngày được diễn ra ở nơi đây. Toob Studio mong muốn xây dựng nên một “không gian” mà kiến trúc và người ở hòa chung được vào bầu không khí này.
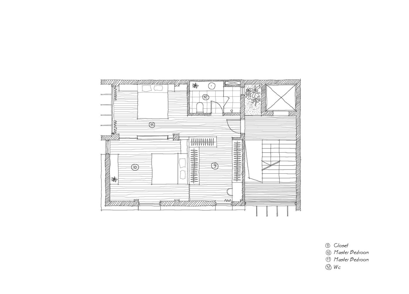
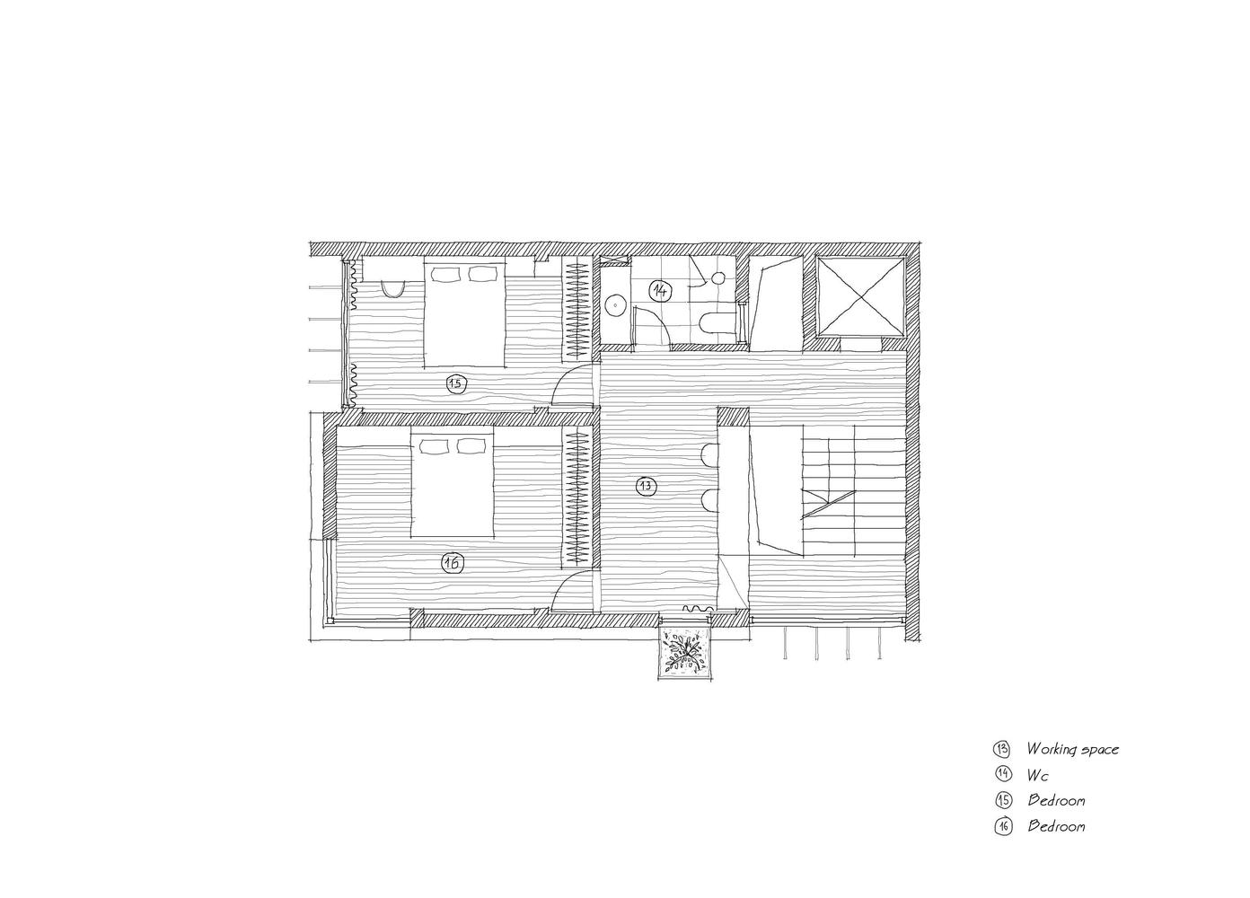
Với tất cả những yếu tố trên, nhóm thiết kế chọn phương án kiến trúc cải tạo với hình khối đơn giản nhưng linh hoạt. Các chi tiết truyền thống như cửa nan chớp, cửa bức bàn và các hệ xà gồ lợp ngói đã được đặt xen kẽ vào không gian hiện đại nhằm mục đích tạo ra những cảm nhận khác nhau đối với mỗi khung hình.
Những mảng đặc lớn bao bọc mặt ngoài ngôi nhà tạo ra một ranh giới để đảm bảo sự riêng tư cần thiết cho người ở. Ranh giới này được làm mờ đi bởi các thủ pháp thị giác mà ánh sáng và âm thanh vẫn có thể lọt qua. Người ở luôn duy trì được sự kết nối giữa trong và ngoài, mỗi khi cần thiết họ có thể lựa chọn phương thức kết nối bằng cách đóng hay mở những phần ranh giới này. Việc đóng mở ranh giới cũng góp phần làm đa dạng và sinh động thêm hình ảnh nhận diện cho ngôi nhà.
- Thiết kế: Toob Studio
- Diện tích: 90m2
- Địa điểm: Hà Nội
- Năm: 2019
- Hình ảnh: Triệu Chiến

























































Để lại đánh giá