[Dẫn lời KTS]
Ngôi nhà nằm trong khu đô thị cũ của thành phố Hà Nội với mật độ dân cư cao và khá hỗn độn. Bên cạnh đó, do vị trí ở khu vực trũng nhất của thành phố nên quanh năm bị ngập nước vào mùa mưa vì vậy tầng đầu tiên của ngôi nhà phải được nâng lên cao hơn mực nước ngập cao nhất hàng năm.
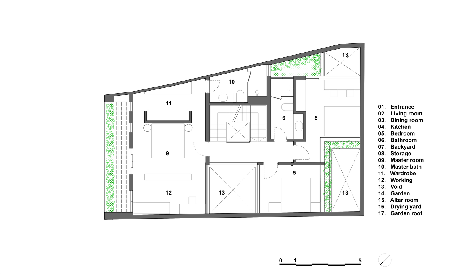
D House được thiết kế cho một gia đình Việt Nam điển hình ba thế hệ. Mỗi thế hệ có một lối sinh hoạt và nhu cầu khác nhau. Thế hệ thứ nhất lớn tuổi nhất xuất thân từ nông dân nên thói quen làm nông nghiệp được yêu cầu thiết lập. Thế hệ thứ hai đang ở độ tuổi lao động nên cần có không gian thư giãn tiếp xúc với thiên nhiên nhiều hơn sau giờ làm việc căng thẳng. Thế hệ thứ ba cũng với nhu cầu tiếp xúc thiên nhiên để được hoạt động khám phá hàng ngày. Từ đó các khối không gian xuất hiện một cách tự nhiên và hòa quyện vào nhau.
Hình thể của khu đất là một hình nhiều hướng có nhiều góc méo. Thông thường đây sẽ là bất lợi trong thiết kế nhưng các kiến trúc sư đã tận dụng nó và tạo nên lợi thế để làm cho không gian trở nên vuông vắn và dễ sử dụng hơn. Các góc méo được tận dụng tối đa để tạo ra các khoảng trống lấy ánh sáng và kết hợp với các không gian xanh. Hầu như các không gian chức năng chính luôn có tới hai mặt tiếp xúc với nguồn ánh sáng tự nhiên và được tiếp giáp với không gian xanh. Kết hợp trong không gian xanh luôn kèm theo chất liệu địa phương và tự nhiên làm cho dự án trở nên thêm phần đặc biệt: bức tường đá Granit ghép tạo sự liên hệ với các lớp đá xếp tầng trong tự nhiên.
Mặt tiền ngôi nhà chủ yếu nghiêng về hướng đông nên thuận tiện về hướng đón gió vào mùa nóng và bất lợi về mùa lạnh nên không gian yêu cầu phải có sự linh hoạt về đóng mở. Các khu vườn xanh trên mái nhà không những bảo vệ cư dân khỏi ánh sáng trực tiếp của mặt trời, tiếng ồn đường phố và ô nhiễm mà còn là nơi sản xuất rau sạch cung cấp dư thừa cho ngôi nhà và hàng xóm xung quanh. Hơn nữa, thông gió tự nhiên qua mặt tiền cùng với ba giếng trời cho phép ngôi nhà này tiết kiệm năng lượng lớn trong điều kiên khí hậu khắc nghiệt của miền bắc Việt Nam.
- Thiết kế: ARO Studio
- Diện tích: 178 m²
- Địa điểm: Hoàng Mai, Hà Nội
- Năm: 2018
- Hình ảnh: Hoang Le



























































Để lại đánh giá