[Dẫn lời KTS]
Là một dự án nhà ở đô thị nhỏ với diện tích chỉ 6,5 mét chiều rộng và 2,5 mét chiều sâu, nên KTS có những khó khăn nhất định trong việc thiết kế các không gian chức năng trong một không gian nhỏ như vậy mà vẫn đáp ứng được mong muốn của gia chủ là xây dựng một ngôi nhà mơ ước cho con cái của họ.
Ưu tiên của gia chủ bao gồm việc tận dụng ánh sáng ban ngày trong khi đảm bảo một mức độ riêng tư nhất định, bên cạnh các tiêu chuẩn an toàn thiết yếu cho con gái Hồng Minh và em trai Quang Minh (niềm cảm hứng cho tên của ngôi nhà).
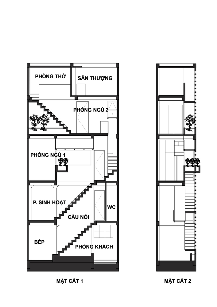
Phòng khách và nhà bếp chung nằm ở tầng trệt trong khi tầng lửng có một cây cầu đánh dấu sự chuyển đổi sang phòng chơi riêng tư hơn, nơi cha mẹ có thể có thời gian vui vẻ bên con cái. Cuối cùng là các phòng ngủ nằm ở các tầng trên. Mặt tiền lớn và mỏng của ngôi nhà có tiềm năng lớn về ánh sáng ban ngày. Nhiều ô thoáng cũng như tường gạch kính giúp tối đa hóa lượng ánh sáng tự nhiên vào nhà mà vẫn đảm bảo sự riêng tư.
Mặt khác, hệ thống lưu thông (hành lang và cầu thang) được bố trí tiếp giáp với mặt tiền này để tạo vùng đệm nhiệt cho các phòng ngủ bên trong. Các phòng này có cửa sổ riêng mở ra giếng trời nhằm mục đích thông gió tự nhiên và an ninh. Với trọng tâm là sự đơn giản, màu trắng làm chủ đạo trong nội thất, kết hợp với gỗ, gốm sứ và cây xanh làm sinh động không gian sống, tất cả đều được tô điểm bởi ánh nắng tự nhiên.
- Thiết kế: Khuon Studio
- Diện tích: 81 m²
- Địa điểm: TP.HCM
- Năm: 2019
- Hình ảnh: Thiết Vũ























































Để lại đánh giá