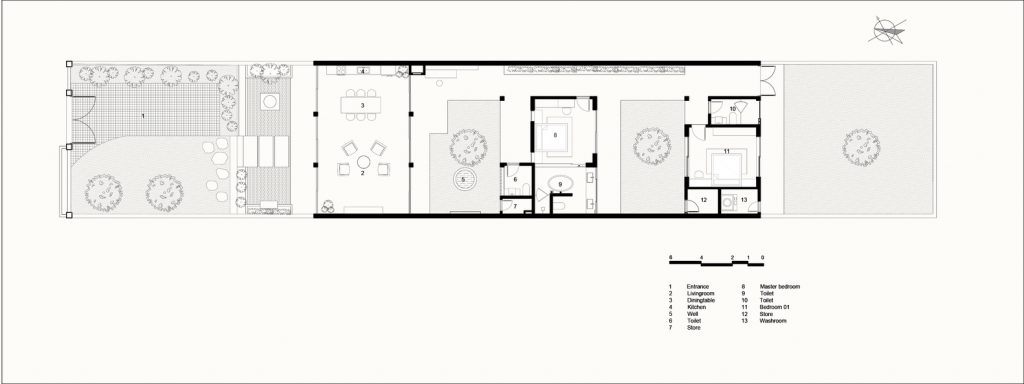
Dế House ở ngoại thành Hà Nội với tổng diện tích là 560m2, diện tích xây dựng 200m2, do 365 Design thiết kế và hoàn thiện.

Cảm hứng chính của dự án này là thiên nhiên. Dế House được thiết kế với những không gian mở nhằm tối đa hóa sự kết nối giữa con người với thiên nhiên.

Trong quá trình xây dựng, KTS không thể tối ưu hóa vật liệu sử dụng do vị trí ở ngoại ô. Cuối cùng, vật liệu có sẵn từ nhà cung cấp địa phương được sử dụng để tạo ra một không gian kiến trúc hòa hợp với không gian xung quanh.
- Thiết kế: 365 Design
- Diện tích: 200 m²
- Địa điểm: Thạch Thất, Hà Nội
- Năm: 2018
- Hình ảnh: Hoàng Lê
































































Để lại đánh giá