Các ngôi nhà trong hẻm thường được bao phủ bởi hàng rào hoặc kính mờ vì lý do an ninh, sự riêng tư và để che nắng. Nhưng cũng chính vì vậy mà nhìn chúng giống như những cái lồng với không gian bên trong rất tối và buồn tẻ. Người dân thường phải sử dụng điện chiếu sáng trong sinh hoạt hàng ngày, đặc biệt là ở tầng trệt. Vì vậy, KTS đã đưa ra mục tiêu thiết kế là “Làm thế nào để thiết kế nên một ngôi nhà thú vị trong hẻm”.

HEM House nằm ở góc của một con hẻm với chiều rộng chỉ là 2,1m và 1,7m. Không dễ để giữ được sự riêng tư và bảo mật. Vì vậy, KTS thiết kế nhiều ô hở có độ sâu từ 50cm – 80cm được trang bị đồ nội thất và kệ. Điều này giúp không gian trong nhà sáng hơn bằng cách nhận được sự phản chiếu của ánh sáng tự nhiên. Đồng thời, nó giữ sự riêng tư bằng cách cung cấp các ngăn mắt từ bên ngoài.

Căn nhà có hình dáng vô cùng đơn giản, diện tích tối đa theo quy định và nhiều mặt thoáng hướng ra bên ngoài. Nhìn từ phía ngoài thì trông ngôi nhà có vẻ khép kín, nhưng bên trong căn nhà lại rất sáng sủa nhờ vào sự phản xạ ở các ô hở. Khi cửa sổ mở ra, gió tự nhiên sẽ tràn vào nhà. KTS thiết kế lưới thép với hoa văn bao phủ mỗi lỗ. Các mắt lưới cũng cung cấp sự an toàn và ngăn chặn những ánh nhìn từ bên ngoài.

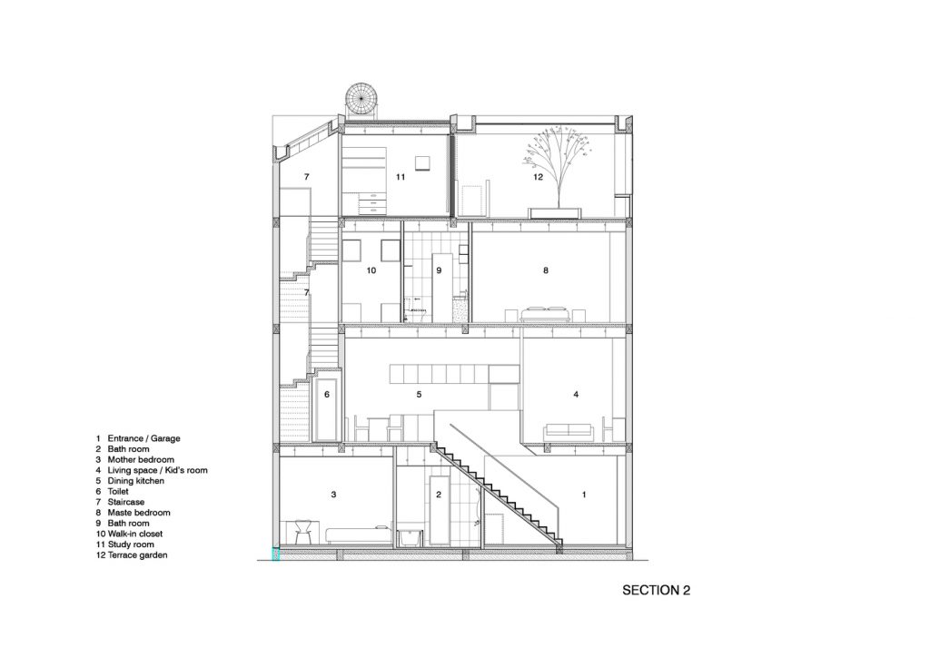
Ngôi nhà có độ cao trần khác nhau ở mỗi tầng khiến không gian của ngôi nhà rộng rãi nhất có thể. KTS cũng sử dụng các vật liệu truyền thống của Việt Nam trong dự án này. Bức tường bên ngoài được hoàn thiện bằng gạch terrazzo lộ thiên, còn tường bên trong được trát xi măng.

Vị trí của các ô hở được cân nhắc cẩn thận bởi tình trạng xung quanh và quy hoạch tương lai của khu vực lân cận. KTS thiết kế các góc nhìn ra hẻm từ các ô hở để trở thành một phần của không gian nội thất trong ngôi nhà này. Nhà ở trong hẻm vốn dĩ thường không được đánh giá cao vì vị trí của nó, tuy nhiên KTS đã cẩn thận quan sát và thay đổi điều đó. Đây có thể là một lối thiết kế đáng cân nhắc để tận hưởng cuộc sống trong hẻm.
- Thiết kế: Sanuki Daisuke Architects
- Năm: 2015
- Địa điểm: TP.HCM
THAM GIA CHIA SẺ Ý KIẾN VỀ CHỦ ĐỀ NÀY CÙNG ARC VIBES

































































Để lại đánh giá