Gạch từ lâu đã là vật liệu quen thuộc được sử dụng rộng rãi ở các vùng nông thôn Việt Nam với phương pháp thi công thủ công đơn giản.

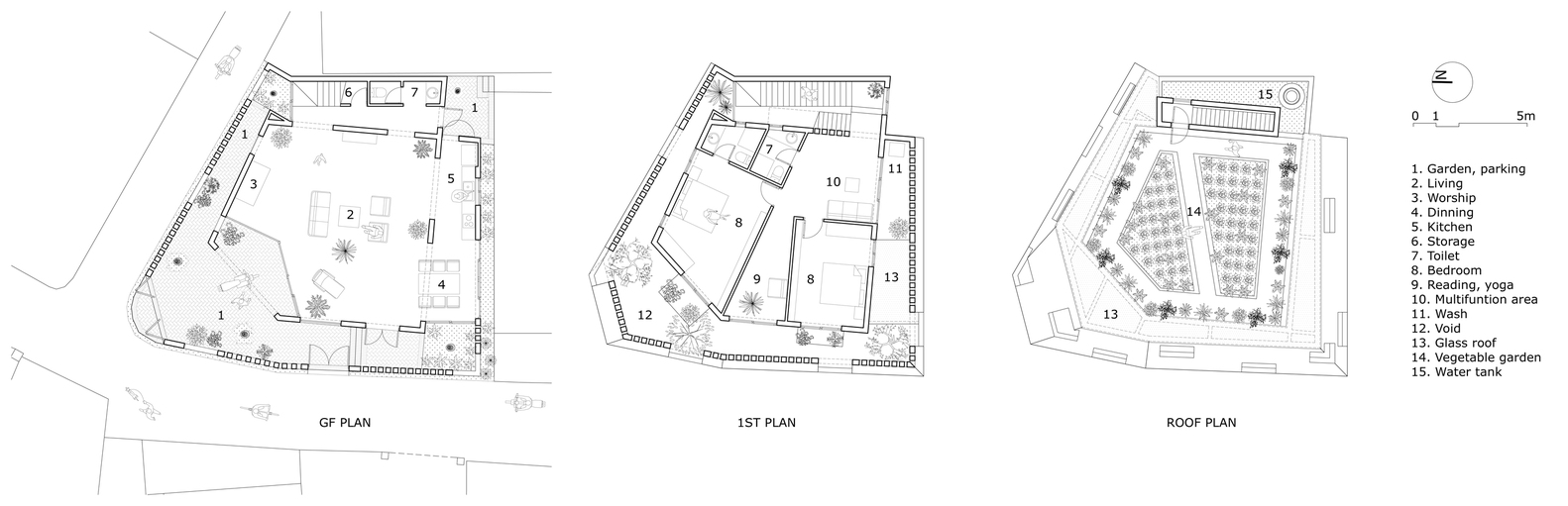
Hai lớp tường bên trong có chức năng như một tấm lọc loại bỏ những tác động xấu của môi trường bên ngoài (nắng từ hướng Tây, khói bụi, tiếng ồn) và đưa thiên nhiên (ánh sáng, mưa, gió) đến những nơi cần thiết bên trong.

Phía trên bức tường ngoài được thiết kế nghiêng vào trong theo các đường chéo khác nhau để tạo góc nhìn tốt hơn cho cảnh quan chung của khu vực, đồng thời cư dân bên trong ngôi nhà cảm nhận được thời gian và thời tiết bên ngoài.

Ngôi nhà bao gồm một chuỗi không gian được kết nối với nhau với các khẩu độ ngẫu nhiên chuyển dần từ cởi mở / công khai sang khép kín / riêng tư và ngược lại. Sự kết hợp giữa “đóng” và “mở” tạo ra các mối quan hệ đa dạng với môi trường xung quanh và do đó giúp xóa mờ ranh giới giữa trong và ngoài, nhà và đường / ngõ, con người và thiên nhiên.
- Thiết kế: H&P Architects
- Diện tích: 190 m²
- Địa điểm: Dong Anh, Ha Noi, Viet Nam
- Năm: 2017
- Hình ảnh: Nguyen Tien Thanh




































































Để lại đánh giá