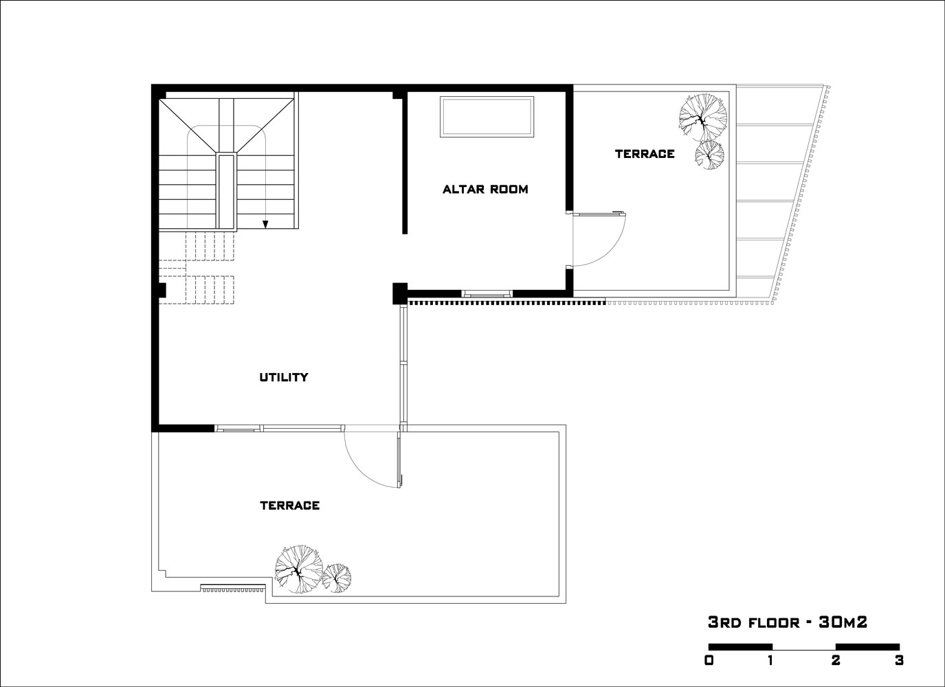
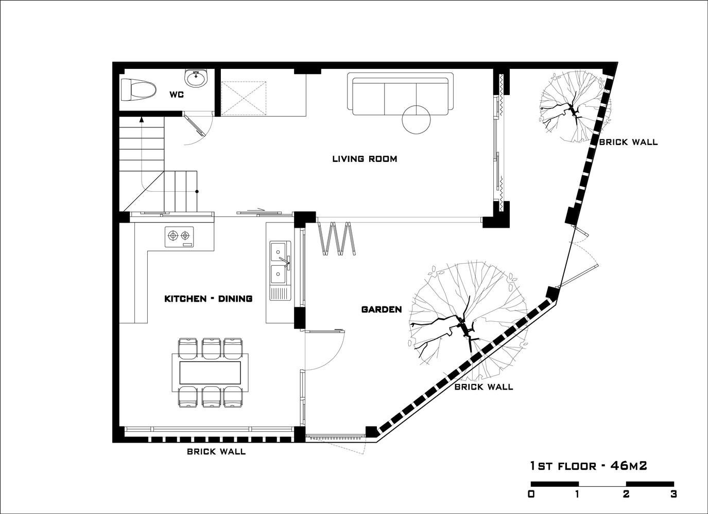
Toàn bộ khu đất rộng 72 m2 với hai mặt tiền tại ngã ba đường, đất nền và mặt tiền trở thành “bài toán” hấp dẫn đối với kiến trúc sư vốn cũng chính là chủ nhân của ngôi nhà. Kiến trúc xanh là hướng phát triển mà anh và các cộng sự đang hướng tới, tối ưu hóa không gian, đặc biệt là sự linh hoạt trong việc sử dụng và đưa sân vườn, cây xanh vào không gian sống. Nói cách khác, không gian mở là ưu tiên hàng đầu trong quá trình thiết kế của Kai House.

Căn nhà được xây dựng trên mảnh đất 72 m2 nhưng diện tích tầng 1 chỉ có 46 m2, còn lại đất dành cho sân vườn. Mặt tiền khác biệt với kiến trúc xung quanh, ngôi nhà mang đậm chất riêng và cá tính. Cây cối được đưa vào nhà một cách tự nhiên như một giải pháp làm mát và phủ xanh. Sân vườn rộng rãi, cách nhà với đường nên căn nhà giữ được sự riêng tư, yên tĩnh.

Nội thất đơn giản, kết hợp sàn gỗ với bê tông xám… mọi thứ đều mang một cá tính khác nhau. Không gian thoáng đãng bởi thiết kế các ô cửa rộng đón sáng. Gạch ốp tường cùng với gỗ tạo hiệu ứng đặc biệt trong bóng tối, tạo nét duyên dáng cho mặt tiền cũng như thu hút sự chú ý trong khu vực.
- Thiết kế: iday design
- Diện tích: 133 m²
- Địa điểm: Hải Dương
- Năm: 2017
- Hình ảnh: Trieu Chien
THAM GIA CHIA SẺ Ý KIẾN VỀ CHỦ ĐỀ NÀY CÙNG ARC VIBES

































































Để lại đánh giá