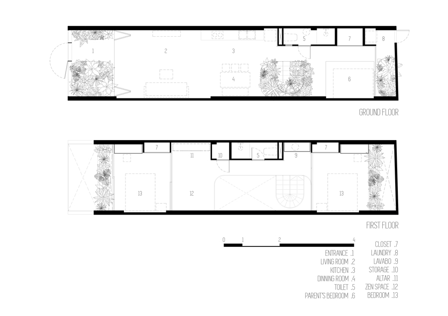
Căn nhà phố với diện tích 4x18m nhưng có tới tận 7 thành viên chung sống nên yêu cầu đặt ra cho thiết kế là mở rộng càng nhiều càng tốt.

Ngôi nhà được thiết kế để loại bỏ mọi giới hạn cố hữu. Hệ thống vách ngăn có thể di chuyển được, khu vườn đan xen xuất hiện và biến mất thay thế nhau, nhà vệ sinh ẩn trong tủ gỗ, nắng chiếu khắp nơi, gió thoảng qua…

Cảm giác cứ thế tan ra, rộng khắp mọi không gian.
- Thiết kế: H.a
- Diện tích: 72 m²
- Địa điểm: TP.HCM
- Năm: 2017
- Hình ảnh: Quang Dam































































Để lại đánh giá