[Dẫn lời từ KTS]
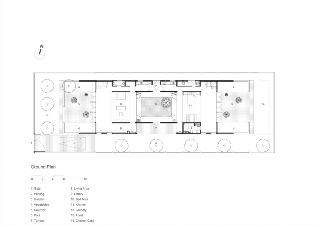
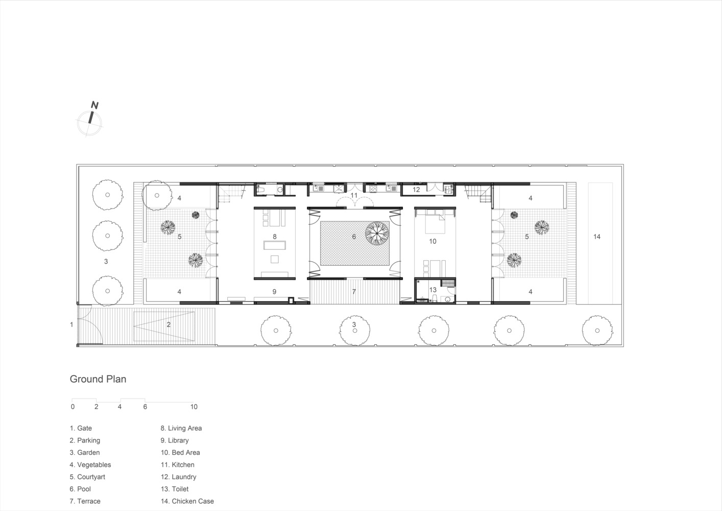
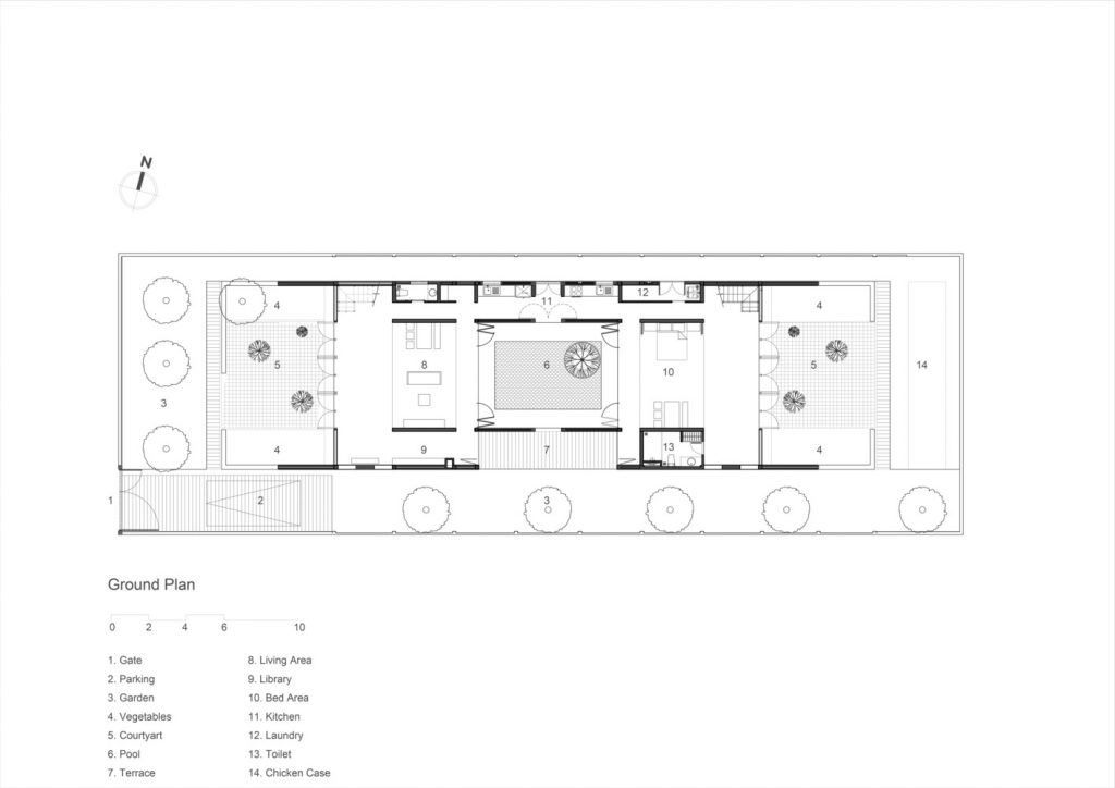
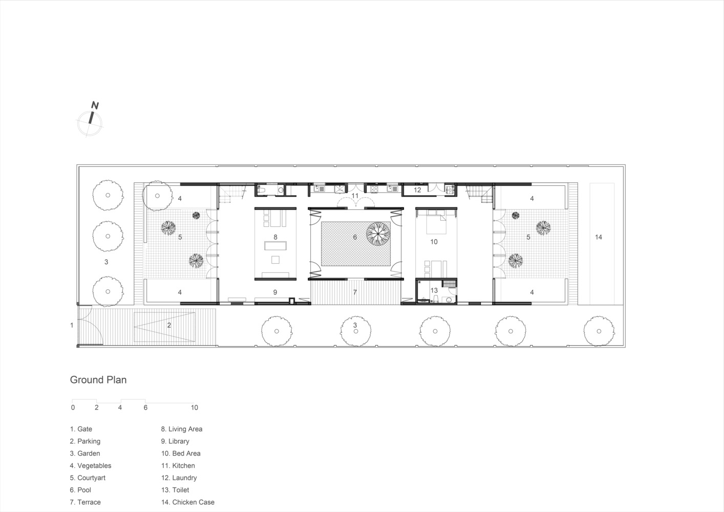
Nhà Long An được lấy cảm hứng từ ngôi nhà truyền thống với 3 gian riêng biệt và mái dốc nhưng sử dụng ngôn ngữ kiến trúc hiện đại, khỏe khoắn. Đồng thời, tối đa hóa hiệu quả thông gió nhờ chia mái thành hai phần và có sân trong; sau đó phân bổ hai hành lang để kết nối mái nhà. Bằng cách này, KTS đã tạo ra một sân trong và những bức tường lớn với các lỗ hở có thể mang gió vào nhà.
Ngôi nhà được kéo dài từ trước ra sau tạo ra các không gian chức năng liên hoàn. Ranh giới của các không gian này được ước tính bằng ánh sáng có cường độ sáng tối khác nhau. Cách bố trí này giúp tận dụng hướng gió của khu vực địa phương trong các mùa khác nhau.
Sân trước được làm bằng gạch rỗng đất sét nung, có thể tự hút mưa và giảm nhiệt cho sàn. Tiếp đến là không gian đệm tạo sự chuyển tiếp ánh sáng từ sân vào phòng khách, phòng ăn và phòng ngủ…
Khu bếp nấu và các không gian chức năng khác được bố trí ở phía Bắc và dọc căn nhà, đây là một lợi thế cho việc nấu nướng theo kiểu truyền thống khi có nhiều thành viên trong gia đình đến thăm. Tầng lửng bố trí hai phòng ngủ, khu vực thư giãn, đọc sách và hành lang dài kết nối mọi không gian trong nhà qua hai cầu thang ở hai đầu.
KTS muốn có một không gian liên hoàn giữa các chức năng trong và ngoài ngôi nhà, để con trẻ có thể thoải mái vui chơi, vận động khắp ngôi nhà mà không bị gò bó bởi những bức tường ngăn cách.
- Thiết kế: Tropical Space
- Diện tích: 300 m²
- Địa điểm: Đức Hòa, Long An
- Năm: 2017
- Hình ảnh: Hiroyuki Oki












































































Để lại đánh giá