[Dẫn lời KTS]
Ninh Bình là một thành phố nhỏ, yên bình cách Hà Nội 100km về phía Nam. Hầu hết những ngôi nhà đô thị mới ở đây được thiết kế và xây dựng theo kiểu biệt thự Pháp cổ thời Việt Nam thuộc địa nhưng sao chép một cách cẩu thả với cách trang trí lộng lẫy xa hoa bên ngoài, thiếu không gian xanh và mở, không tính đến không gian chất lượng cho cuộc sống con người bên trong.
Nằm giữa những công trình đó, Ninh Bình House nổi bật lên như một khối hộp bê tông nguyên khối, đơn sơ được bao bọc bởi thiên nhiên. Là một công trình đơn giản, sử dụng kết cấu bê tông cốt thép vốn rất phổ biến ở Việt Nam, nhưng được thiết kế nhằm tạo ra một không gian sống mới, khác biệt và gần gũi với thiên nhiên hơn.
Ngôi nhà bao gồm hai phần, được pha trộn hài hòa với nhau: khu xây dựng và khu vườn. Sân vườn rộng thoáng trước nhà, sau bức tường kín đáo. Một ao cá, những cái cây và cầu thang dẫn lên vườn rau trên nóc gara không chỉ làm cho cảnh quan khu vườn trở nên sống động mà còn giúp lọc ánh nắng và không khí hướng Tây vào tòa nhà.
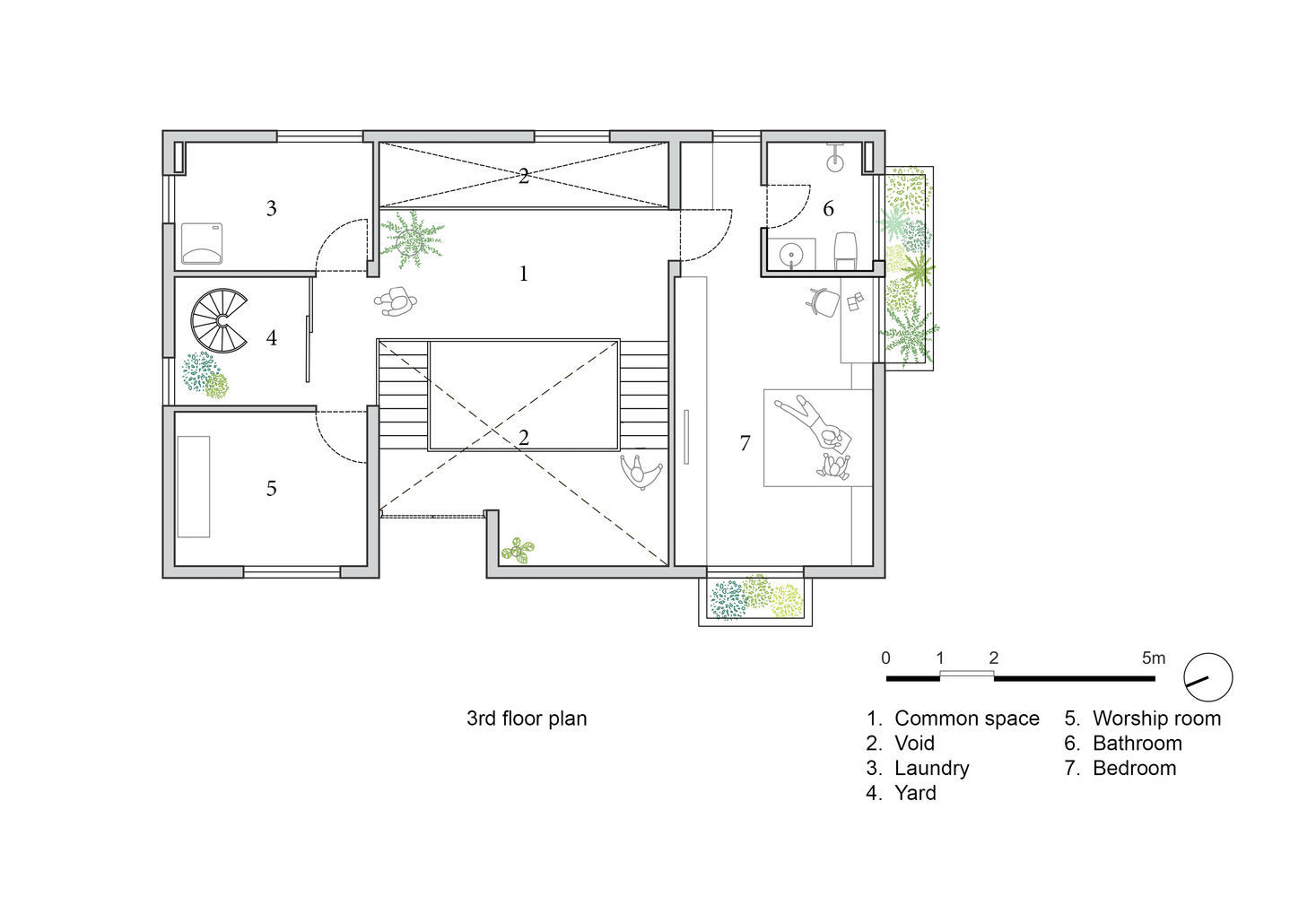
Khi bước vào ngôi nhà qua khu vườn và ao nước, một không gian rộng lớn sẽ mở ra. Tất cả các không gian chung đều nằm trong “giếng trời” ba tầng này ở trung tâm của ngôi nhà. Ở tầng 1 có phòng khách, phòng ăn và bếp. Không gian đọc sách và khu sinh hoạt chung ở tầng 2. Và sau đó, tầng 3 gồm khu vực tập thể dục và không gian thờ cúng. Tất cả những thứ này được kết nối với nhau bằng cầu thang nổi, đặt ở các hướng khác nhau trong giếng trời.
Các khe hở ở cả mặt tiền và tầng thượng được đưa vào theo kiểu ngẫu nhiên, tạo ra bầu không khí ánh sáng luôn thay đổi cho không gian. Ngồi trong phòng khách, người ta có thể cảm nhận trọn vẹn những khoảnh khắc thay đổi của thiên nhiên và những hoạt động thường ngày của ngôi nhà. Mối quan hệ giữa con người và thiên nhiên được hình thành.
Hai khối nhà khác bao gồm phòng ngủ và các phòng chức năng. Cửa sổ với ban công cây xanh được đặt cẩn thận trong các phòng đó để cung cấp đủ ánh sáng, không khí và tầm nhìn thú vị. Từ sân ngoài trời ở tầng 3, cầu thang xoắn ốc dẫn lên khu vườn trên sân thượng vừa có thể nhìn ra cảnh quan thành phố, vừa cung cấp rau cho gia đình.
Phong cách ngôi nhà là tối giản. Các bức tường bên ngoài không được sơn. Vật liệu hoàn thiện nội thất bao gồm trần bê tông chưa hoàn thiện và đồ nội thất bằng gỗ. Tất cả những điều này góp phần giúp người ở có thể tận hưởng trọn vẹn dòng chảy của thiên nhiên bao quanh ngôi nhà.
- Thiết kế: HGAA
- Diện tích: 110 m²
- Địa điểm: Ninh Bình
- Năm: 2017
- Hình ảnh: Trieu Chien

























































Để lại đánh giá