Ngôi nhà này nằm trong khu dân cư đông đúc của thành phố Hồ Chí Minh, nhà cửa mọc lên san sát. Khách hàng là một cặp vợ chồng trẻ với 2 con. Lô đất rộng 13m x sâu 19m. Tận dụng lợi thế của diện tích đất, toàn bộ ngôi nhà được tổ chức xung quanh một sân trong mang lại nhiều ánh sáng tự nhiên.
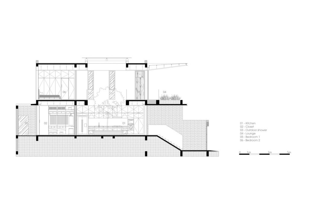
Ngôi nhà được thiết kế theo hướng Tây, một tấm chắn nắng tự động kiểm soát ánh sáng mặt trời chiếu qua cửa sổ trời lớn có thể mở ra ngoài sân để giúp ngôi nhà luôn mát mẻ và kiểm soát ánh nắng trực tiếp.
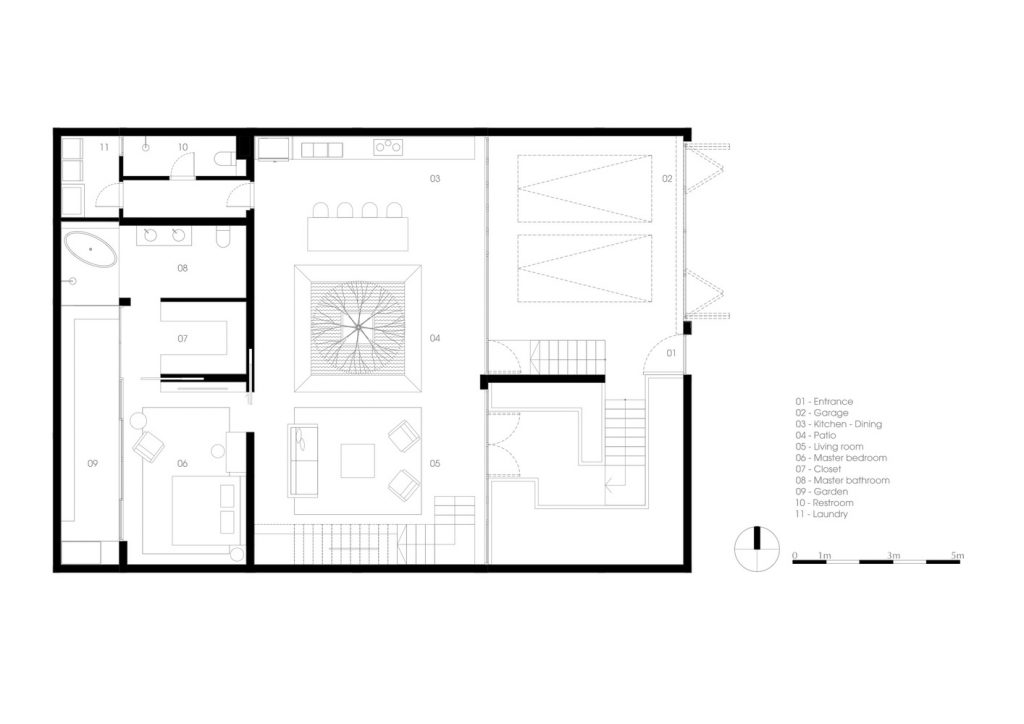
Tầng trệt được nâng cao một chút so với mặt phố để giữ cho tầm nhìn từ khu ăn uống qua sân để xe, trong khi hàng rào tường phía trước mang lại sự riêng tư hoàn toàn và tách biệt ngôi nhà với đường phố đông đúc.
Với phần mái nhô ra sâu, ánh nắng trực tiếp không ảnh hưởng đến độ cao phía trước, hoàn toàn bằng kính và có thể mở được. Kết hợp với cửa sổ trời lớn có thể mở ra, nó tạo ra luồng không khí hiệu quả qua từng không gian.
Ở tầng trệt, sân trong mang lại đủ ánh sáng cho bồn cây đầy tính nhiệt đới ở trung tâm, cũng chính là trọng tâm của không gian mở để phân chia bếp và phòng ăn với phòng khách.
Phía sau là phòng ngủ chính, với cửa sổ trượt lớn ra sân sau vẫn mang lại cảm giác rộng mở. Phòng tắm cũng là không gian mở.
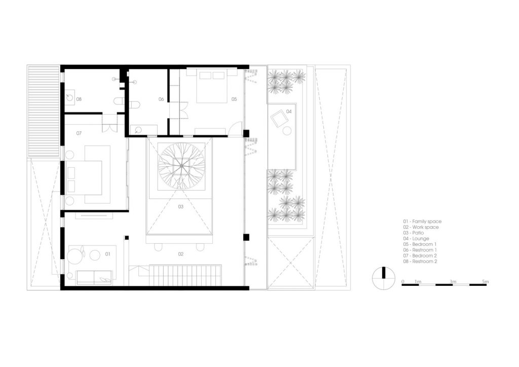
Tầng 1, hiên phân bố không gian thoáng đãng, 2 phòng ngủ và ban công rộng có thể nhìn bao quát cảnh quan thành phố. Cửa sổ cửa trượt lớn cho phép mở không gian tối đa, ngay cả đối với phòng ngủ. Một cách để khuyến khích sự tương tác giữa các thành viên trong gia đình và kết nối thị giác với thảm thực vật phía trước, cây trong nhà.
Vị trí nắng chiếu trong ngày, khí hậu nhiệt đới và môi trường xung quanh đều được tính toán kỹ trong quá trình thiết kế để mang lại sự thoải mái, dễ dàng bảo trì và cảm giác thư giãn giữa một môi trường đô thị dày đặc.
- Thiết kế: MM++ architects
- Năm: 2017
- Địa điểm: Q.7, TP.HCM
- Hình ảnh: Hiroyuki Oki






























Để lại đánh giá