Roof Gardens tọa lạc tại thành phố Nha Trang được xây dựng để đáp ứng mong muốn của gia chủ là nơi thư giãn cho cả gia đình, tiếp đón bạn bè đúng nghĩa.
Công trình được thiết kế nhằm thích ứng với khí hậu nhiệt đới, đồng thời gia tăng sự kết nối với con người và thiên nhiên thông qua các không gian sống, không gian thư giãn với các giải pháp kiến trúc. Đồng thời mang đến sự kết nối với ngôi nhà cũ thông qua thói quen, lối sống và văn hóa sử dụng hài hòa với quang cảnh “trồng rau nuôi cá” gần gũi với ngày xưa.
Mặt tiền là những tấm rèm xanh mướt cùng tông màu trầm ấm của gỗ dựa trên kết cấu sẵn có được phân khúc hợp lý, vừa để giảm bức xạ nhiệt vừa mang lại bóng mát và vẻ thơ mộng khi gia chủ trở về nhà sau một ngày làm việc dài.
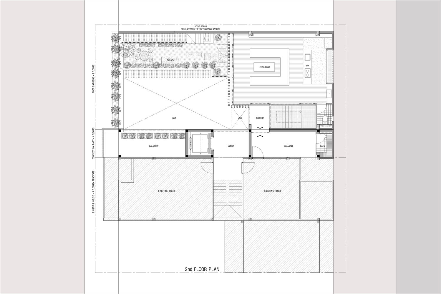
Thay vì có một khoảng sân rộng như những ngôi nhà trong làng, Ladesignstudio tạo ra nhiều khoảng sân ở các độ cao khác nhau, phù hợp với cơ cấu xây dựng theo chiều cao. Tầng lửng tạo ra một khoảng sân phía ngoài để kết nối với sân giữa của ngôi nhà.
Không gian nông nghiệp trên mái dần chuyển xuống sân trên tầng lửng tạo thành sân chơi kết hợp vườn rau nối từ mái xuống tầng trệt. Khu vườn cung cấp nhiều loại rau quả sạch, là nguồn thực phẩm chính của gia đình cũng như thi thoảng đem biếu bà con lối xóm, tạo nên mối quan hệ cộng đồng trong làng xóm.
- Thiết kế: Ladesignstudio
- Diện tích: 350 m²
- Địa điểm: Nha Trang
- Năm: 2019
- Hình ảnh: Quang Tran





















































Để lại đánh giá