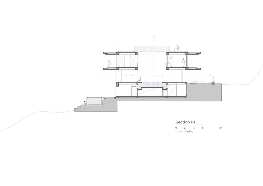
Ngôi nhà được thiết kế 3 tầng, thấp dần về phía thung lũng. Mặt trước nhà hướng Đông đón bình minh, mặt sau là sân golf hướng Tây ngắm hoàng hôn. Ngôi nhà có hình khối kiến trúc đơn giản với ba khối hộp vuông vắn đặt chồng lên nhau. Ô lớn nhất là tầng 2 với kích thước 22m x 22m x 3,3m. Các hộp tầng trệt và tầng hầm có kích thước 16m x 16m x 3,3m. Có một khoảng trống 6,5m x 6,5m ở giữa các hộp, nơi đặt ao cá ở tầng trệt.

Lối vào của ngôi nhà là từ chân núi, các kiến trúc sư đã thiết kế sảnh chính ở tầng trệt, phía trước và phía sau được mở rộng và liên thông với sân trong, giúp ngôi nhà không che mất cảnh quan thung lũng cho mọi người có thể nhìn từ đường chính.

Sân và ao cũng góp phần thông gió để đưa khí trời vào nhà. Sảnh được thiết kế mở, là nơi để ngồi uống trà, thư giãn và cảm nhận những khoảnh khắc thay đổi của thời tiết, cảnh vật, nắng mưa.

Tầng 1 là nơi tiếp khách và bếp chính liên thông với khu BBQ ngoài trời. Tầng hầm gồm 2 phòng ngủ có tầm nhìn ra thung lũng, khu vực quầy bar và hầm rượu, nơi mọi người có thể ngắm hoàng hôn và đàn cá bơi qua bể cá lớn. Tầng 2 bố trí phòng ngủ chính và 3 phòng ngủ khác.

Các ô trống và ô đặc được đan xen nhau để thông gió và lấy thêm ánh sáng tự nhiên vào mọi ngóc ngách trong nhà. Các góc nhìn được xuyên qua nhiều lớp khoảng trống tạo nên chiều sâu của không gian. Tầng thượng là khu vực cắm trại, nơi mọi người có thể trải nghiệm sương sớm đi bộ xuyên từ núi xuống thung lũng và quay trở lại.
- Thiết kế: Tropical Space
- Diện tích: 484 m²
- Địa điểm: Tam Đảo, Vĩnh Phúc
- Năm: 2020
- Hình ảnh: Trieu Chien
THAM GIA CHIA SẺ Ý KIẾN VỀ CHỦ ĐỀ NÀY CÙNG ARC VIBES



























































Để lại đánh giá