Tama House là một homestay tọa lạc tại trung tâm thành phố Tây Ninh. Chủ nhân là một cặp vợ chồng trẻ muốn đổi mảnh đất 91 mét vuông của mình thành một điểm dừng chân lý tưởng. Tây Ninh nổi tiếng là khu vực nhiều nắng nóng nên thách thức đặt ra cho KTS là khai thác các bối cảnh và điều kiện tự nhiên một cách hợp lý để tạo ra sự thông gió nhằm giảm thiểu nhiệt độ, đồng thời tối ưu hóa chi phí xây dựng.

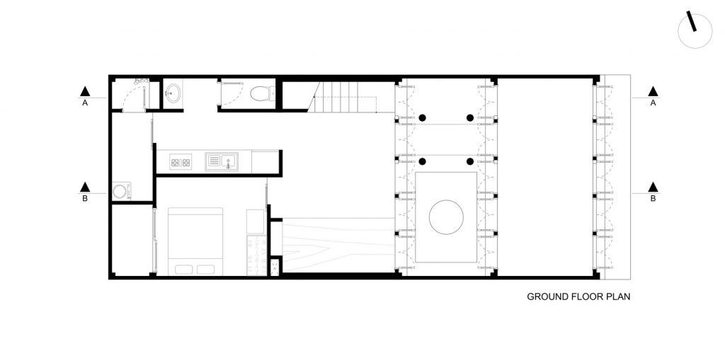
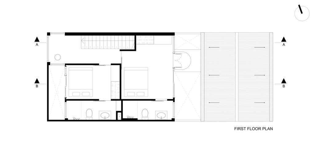
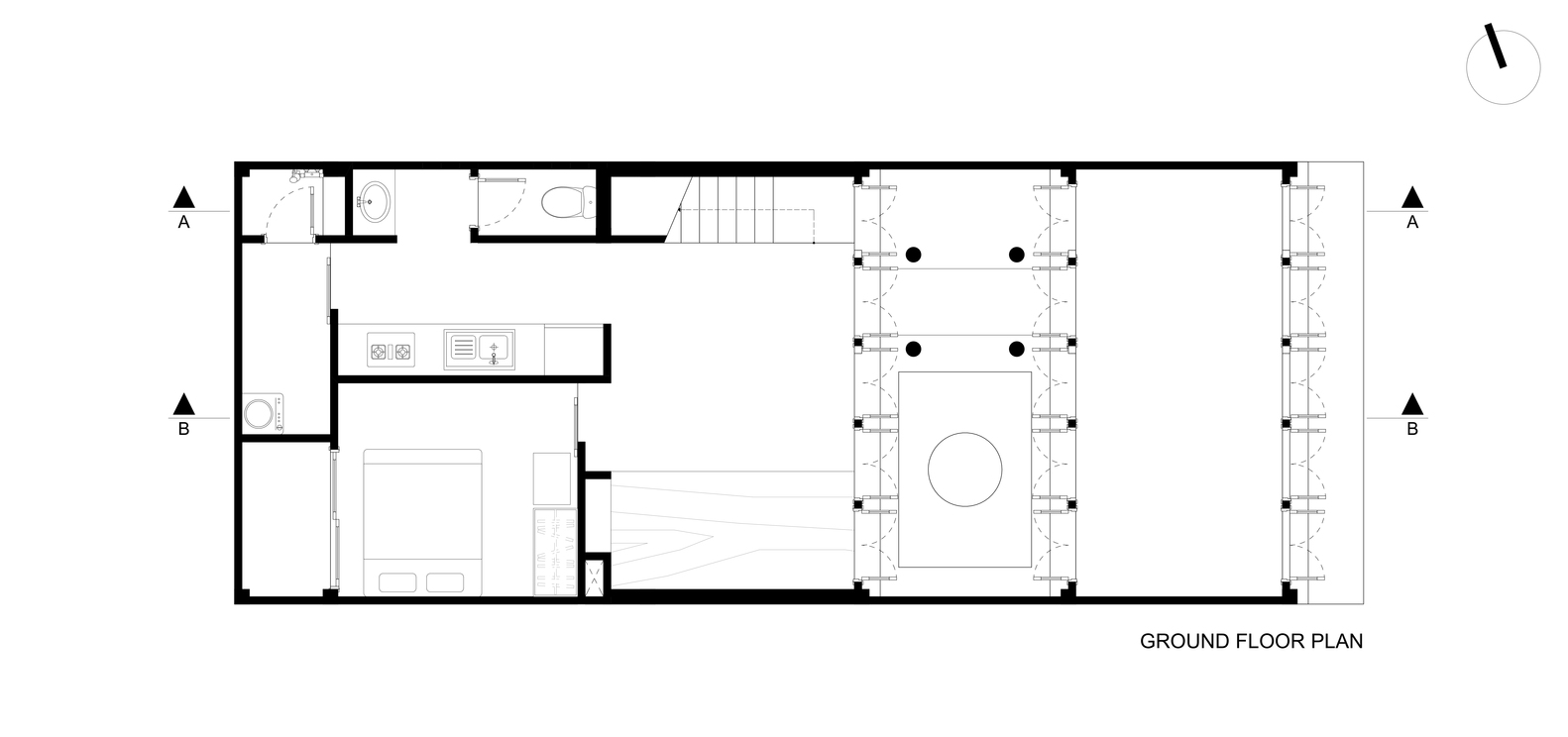
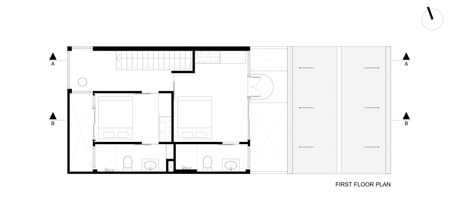
Chủ nhân của homestay có niềm đam mê với Trà đạo và văn hóa Nhật Bản nên họ mong muốn có sự kết hợp, kết nối giữa không gian Trà đạo với không gian sảnh và sân vườn với nhau. Các không gian đó phải tối giản và linh hoạt nên KTS quyết định tách công trình thành 2 phần riêng biệt, ở giữa là sân vườn. Phía trước là phòng khách và không gian Trà đạo ở phía sau. Tất cả đều được kết nối với sân vườn bằng hệ thống ô cửa lớn, giúp tạo ra một không gian linh hoạt, có thể thay đổi công năng dễ dàng tùy theo nhu cầu của người sử dụng.

Không gian sân vườn được bố trí ao nước và cây xanh tạo thành khoảng đệm ở giữa các khối nhà. Vừa là điểm nhấn cho công trình vừa là cách thông gió giúp đối lưu hiệu quả. Trong kết cấu kiến trúc, KTS sử dụng hệ thống mái hai lớp đặc trưng của nhà ở truyền thống, gồm ngói âm dương và tấm trần được làm từ khung gỗ bọc vải bố.

Giữa mái và trần có bầu không khí, hai bên tường là hệ thống thanh lam. Hệ thống mái này tạo ra sự đối lưu thụ động giữa mái và trần để cách nhiệt tốt hơn, đồng thời mang lại hiệu quả thị giác trong việc thể hiện phong cách kiến trúc truyền thống của Nhật Bản. Để tận dụng ánh sáng tự nhiên, KTS đã sử dụng toàn bộ cửa mở lớn cho các bức tường xung quanh. Những cánh cửa này được làm bằng kính mờ có cửa chớp, giúp ánh sáng được khuếch tán vào bên trong dễ dàng và tạo sự riêng tư cần thiết.
- Thiết kế: N architecture
- Diện tích: 91 m²
- Địa điểm: Thành phố Tây Ninh
- Năm: 2019
- Hình ảnh: Ben Huynh



















































Để lại đánh giá