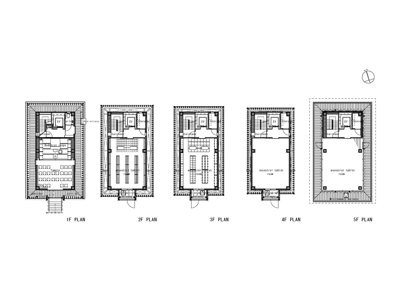
Văn phòng thiết kế Takashi Okuno vừa xây dựng 1 Ihaidō (thánh điện tưởng niệm Phật giáo) cho ngôi đền Korin Ji nằm trên dãy núi Tamagawa-chō, thành phố Imabari, Nhật Bản. Những bước đầu tiên trong chuỗi hoạt động tái thiết lại ngôi đền 1316 tuổi này chính là việc kiến tạo “1 thánh điện cho tương lai” sử dụng các nguyên vật liệu hiện đại.
Đối với thánh điện Ihaidō , Takashi Okuno đã lựa chọn những nguyên vật liệu phổ biến, được phân phối rộng rãi cùng với các phương thức xây dựng đơn giản để đảm bảo rằng các người thợ địa phương có thể thực hiện việc tu bổ dễ dàng trong nhiều năm sau. Kiến trúc được xây dựng với các nguyên vật liệu lợp mái dễ dàng thay thế nhưng có thể thể hiện được tinh thần của kinh Phật shogyō mujō – 1 học thuyết Phât giáo dạy con người rằng vạn vật chỉ là vô thường. Trong 1 khung sườn thép chuẩn, khoảng 800 cây xà bằng gỗ bách nối với nhau theo đường chéo, trông giống như 1 hakama (trang phục kiểu váy truyền thống của Nhật Bản), cấu trúc này cũng nhằm để bảo vệ cấu trúc thép chính của thánh điện trước những cơn mưa lớn và đợt gió mạnh của vùng này. 88 mảnh kính được lắp ngẫu hứng trên bề mặt cấu trúc, tượng trưng cho số ngôi đền linh thiêng được thăm viếng trên chặng đường hành hương Ohenro quanh đảo Shikoku. Không gian nội thất bên trong của thánh điện này vì thế cũng trở thành 1 hành lang ánh sáng và là nơi các con ngoan đạo tìm về. Ngoài ra, màu sắc của ánh sáng thay đổi liên tục trong năm, phụ thuộc vào điều kiện thiên nhiên và khí hậu xung quanh thánh điện.

Thông tin dự án:
Thi công dự án: Văn phòng thiết kế Takashi Okuno
Địa điểm: Ehime, Nhật Bản
Tổng diện tích xây dựng: 396.36 m2









































Để lại đánh giá