[Dẫn lời KTS]
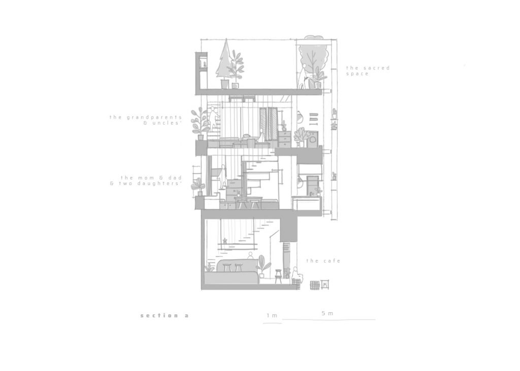
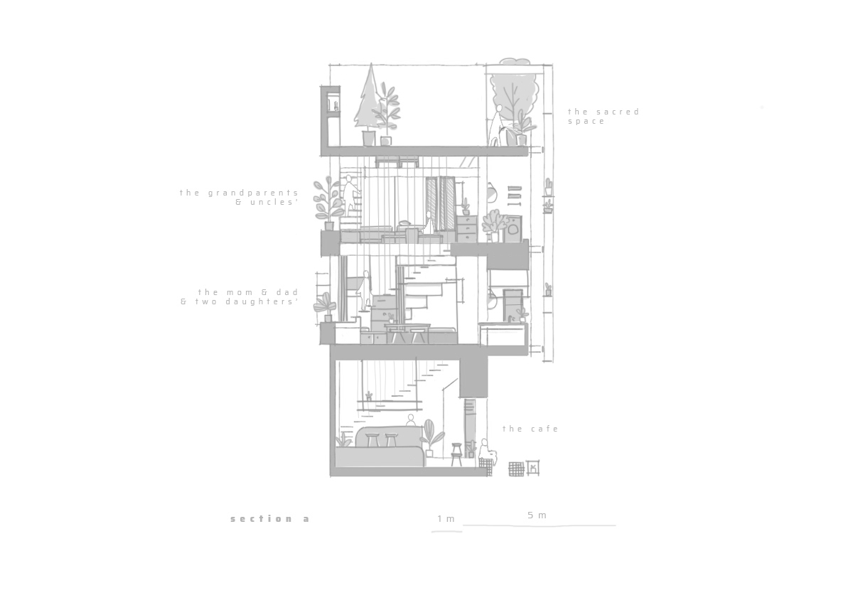
Nằm gần ngã tư đường ở trung tâm thành phố Huế, Tiam được cải tạo từ một ngôi nhà 18 năm tuổi với tình trạng thực sự xập xệ. Có tổng diện tích xây dựng chỉ 35m2, đây là không gian sống cho một gia đình ba thế hệ gồm bảy thành viên.
Sau khi dành thời gian nói chuyện và hiểu được nhu cầu thiết yếu của chủ sở hữu, Nguyen Khai Architects & Associates đã thiết kế Tiam theo cách nhằm cung cấp một cách sống tốt hơn cùng với những trải nghiệm có giá trị cho tất cả các thành viên của ngôi nhà.
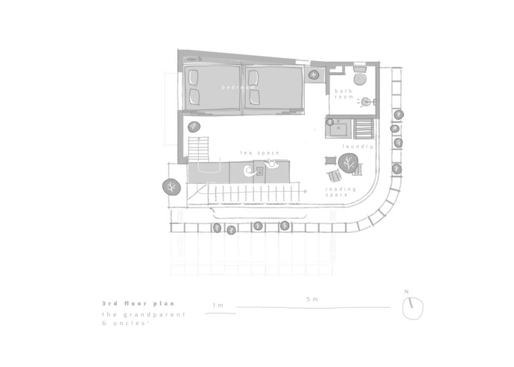
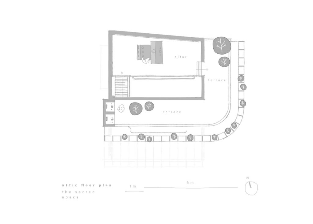
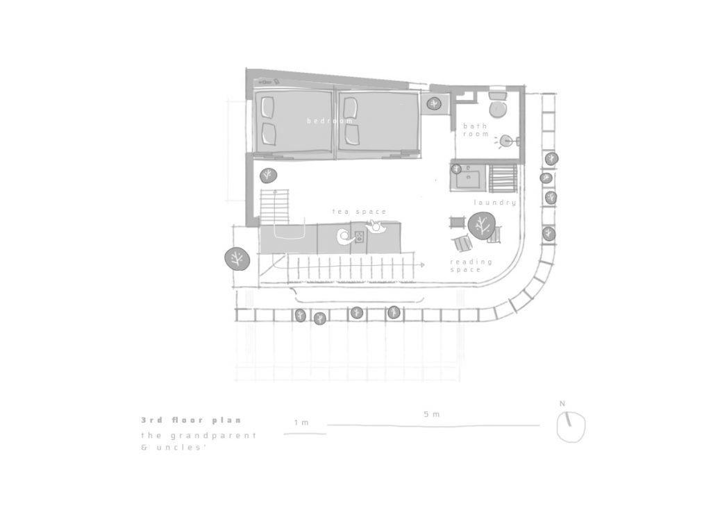
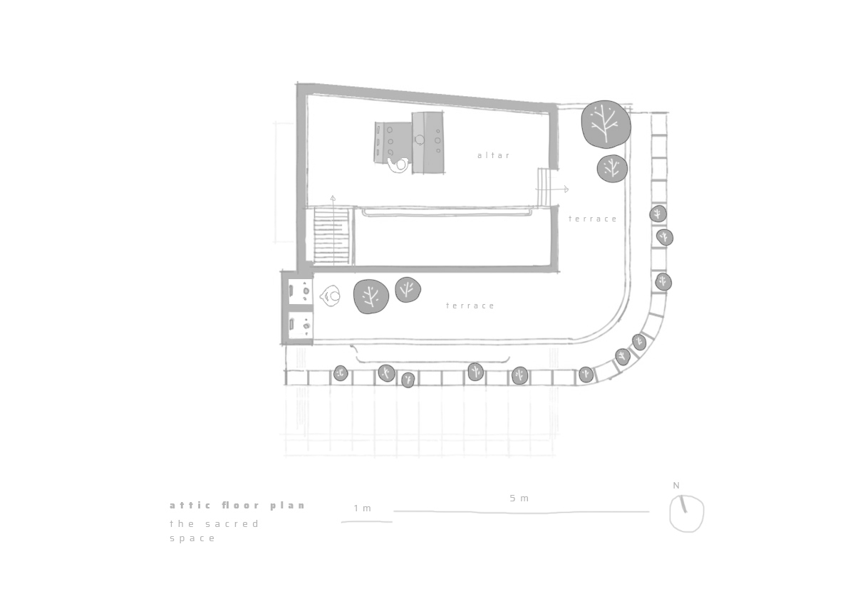
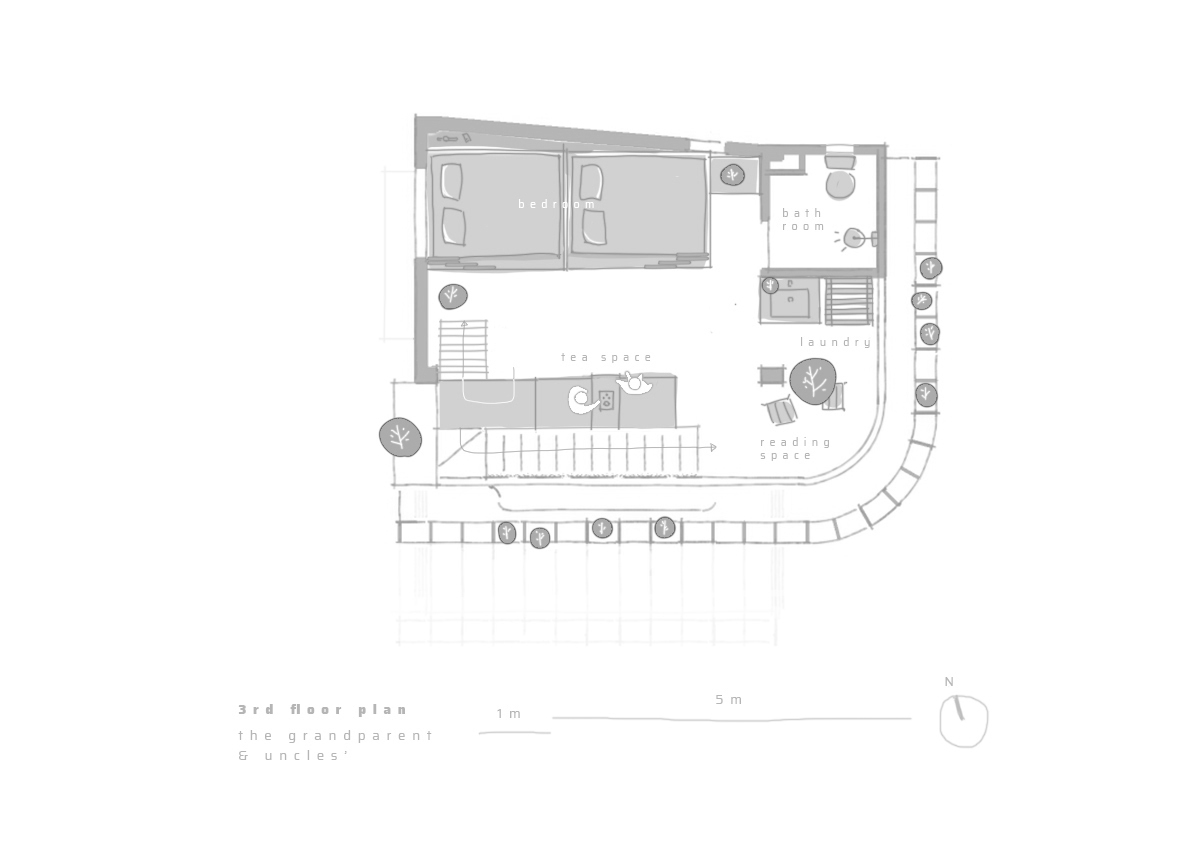
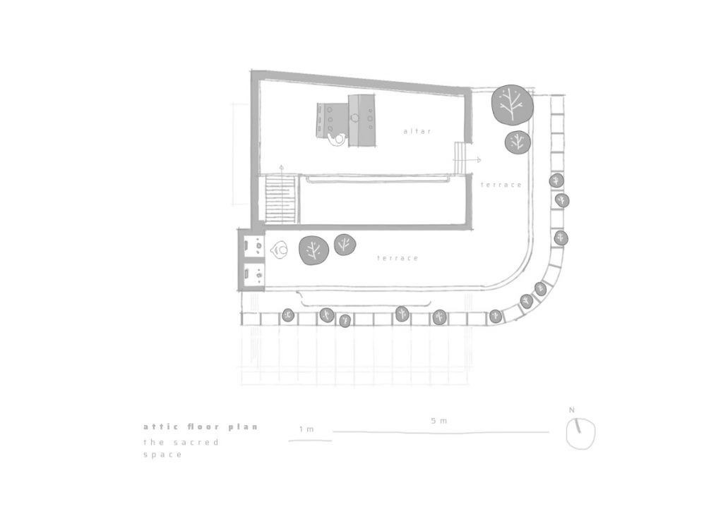
Tiam có ba tầng, một gác mái, ban công và sân thượng. Tầng đầu tiên dành cho quán cà phê, được điều hành bởi gia chủ, và phần còn lại của tòa nhà là để sống. Các cửa sổ dọc và tường thủy tinh bao phủ ngôi nhà giống như một phân vùng mơ hồ giữa “vào và ra”, đưa mọi người vào trong ngôi nhà gần gũi với thiên nhiên và ra với những người khác trên đường phố.
Các cửa gió không chỉ giúp giảm bức xạ nhiệt mà còn tạo hiệu ứng ánh sáng và nhịp điệu hình học, giúp tăng cường cảm xúc của mọi người mỗi khi nhìn vào, cả từ bên trong lẫn bên ngoài.
Giải pháp hiệu quả cho một khu vực xây dựng hạn chế chính là thiết kế nội thất càng tối giản càng tốt và tạo không gian liên tục và mở. Nhóm KTS tạo ra các khu chức năng và đặt đồ đạc ở đó để đưa các thành viên của gia đình gần nhau hơn, nhưng vẫn giữ được không gian riêng tư của họ khi cần thiết.
Cầu thang xoắn ốc cũ và không hiệu quả đã được thay thế bằng một cái khác thẳng hơn, giúp tối ưu hóa không gian và đạt được lưu thông tốt hơn. Nội thất trong nhà chủ yếu được làm bằng tre, là một vật liệu bền vững và thân thiện với môi trường. Tre cũng có một số đặc điểm nổi bật phù hợp để sử dụng ở vùng khí hậu khắc nghiệt tại Huế.
Quán cà phê ở tầng một được thiết kế với các yếu tố và vật liệu giống như phần còn lại của ngôi nhà. Bàn cong dài, ghế mỏng và trong suốt được đặt trong một không gian tối thiểu và đơn sắc như vậy làm cho tất cả các vật thể đầy màu sắc khác đáng chú ý. Hơn nữa, sự xuất hiện của những người khách uống nước và trò chuyện trong quán làm cho nó trở thành một khung cảnh sống động và tươi đẹp.
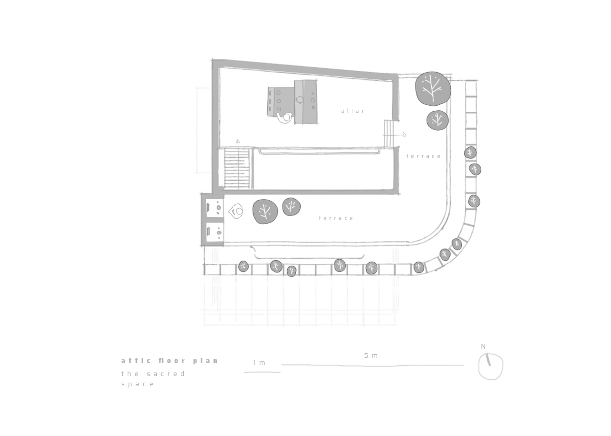
Các chậu cây có kích thước khác nhau có thể được tìm thấy ở mọi góc của tòa nhà. Cây trồng trên các cửa sổ, ban công, sân thượng và trong nhà tạo ra một bầu không khí yên bình và dễ chịu. Mặc dù Tiam nằm gần một ngã tư đông đúc, tất cả các thành viên trong gia đình vẫn cảm thấy gần gũi với thiên nhiên và có một không gian sống bình yên như vậy.
- Thiết kế: Nguyen Khai Architects & Associates
- Diện tích: 150m2
- Địa điểm: Huế
- Năm: 2020
- Hình ảnh: Quang Dam


































































Để lại đánh giá