[Dẫn lời KTS]
Vùng ven duyên hải Nam Trung Bộ từ lâu được định hình bởi những căn nhà trệt, mang dáng dấp tuy đơn giản nhưng có một sức hút đặc biệt.
Việc nhận lời cải tạo lại một không gian nhà thờ tổ có từ những năm 1960 là một thách thức lớn cho đội ngũ thiết kế của Sawadeesign Studio. Nhiệm vụ đặt ra là phải gìn giữ được nét truyền thống bên cạnh đó là sự kết hợp hài hòa yếu tố hiện đại vào trong công trình.
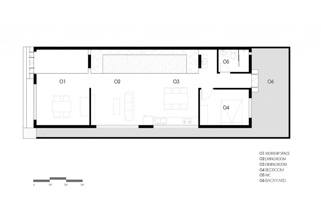
Được sự tin tưởng từ phía gia chủ, Sawadeesign Studio đã thực hiện một ý tưởng trong việc phân chia lại không gian cũng như đơn giản hóa công năng cho ngôi nhà. Không gian chính được chia theo tỉ lệ 1:3, giữa truyền thống và hiện đại. Ở không gian thờ phụng, gia chủ muốn tận dụng phần nội thất cũ của căn nhà. Bên trong không gian sinh hoạt, nhóm thiết kế phân chia bằng việc sử dụng nội thất cũng như kết hợp khoảng giếng trời, sân vườn, góp phần tạo nên không gian sống thoải mái nhất.
Việc thử nghiệm thủ pháp thiết kế mặt đứng cũng là một sự cân nhắc cho đội ngũ, góp phần đem lại một điều gì đó mới nhưng không quá tách biệt cho khu phố tạo bởi những dãy nhà trệt.
TP House là tiếng nói trong việc kết hợp yếu tố truyền thống bản địa và tính hiện đại trong việc thiết kế.
- Thiết kế: Sawadeesign Studio
- Diện tích: 96m2
- Địa điểm: Tuy Phong, Bình Thuận
- Năm: 2019
- Hình ảnh: Quang Dam






















































Để lại đánh giá