[Dẫn lời KTS]
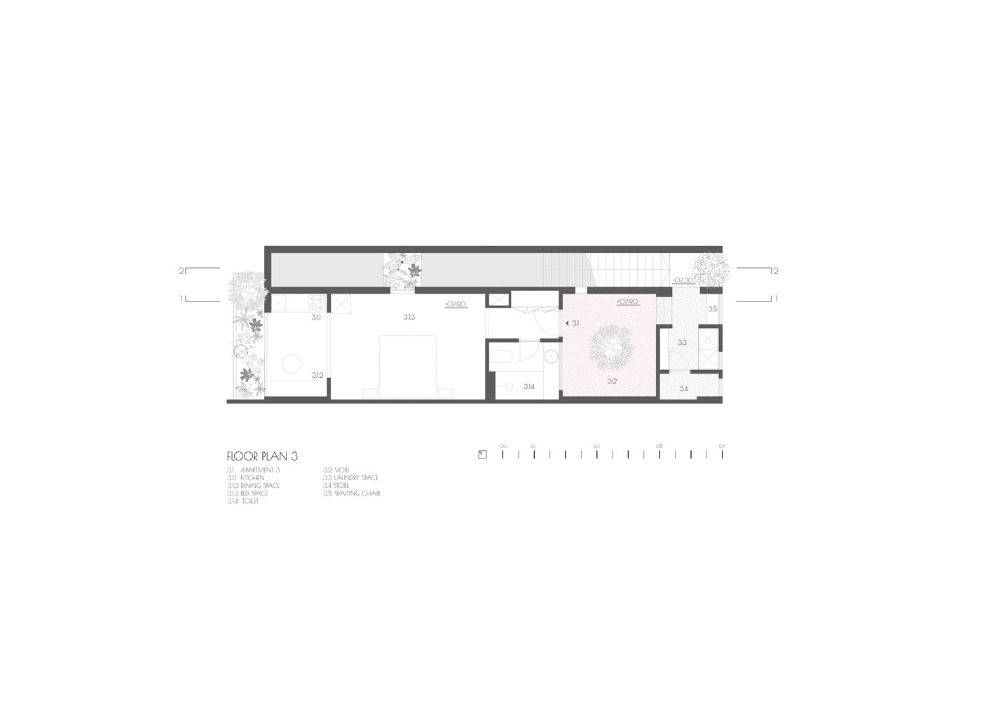
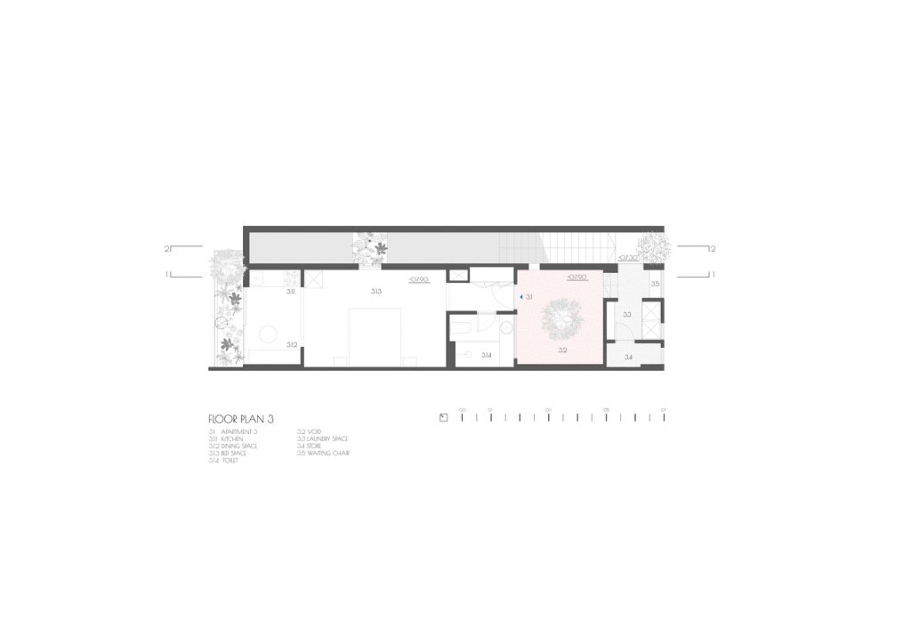
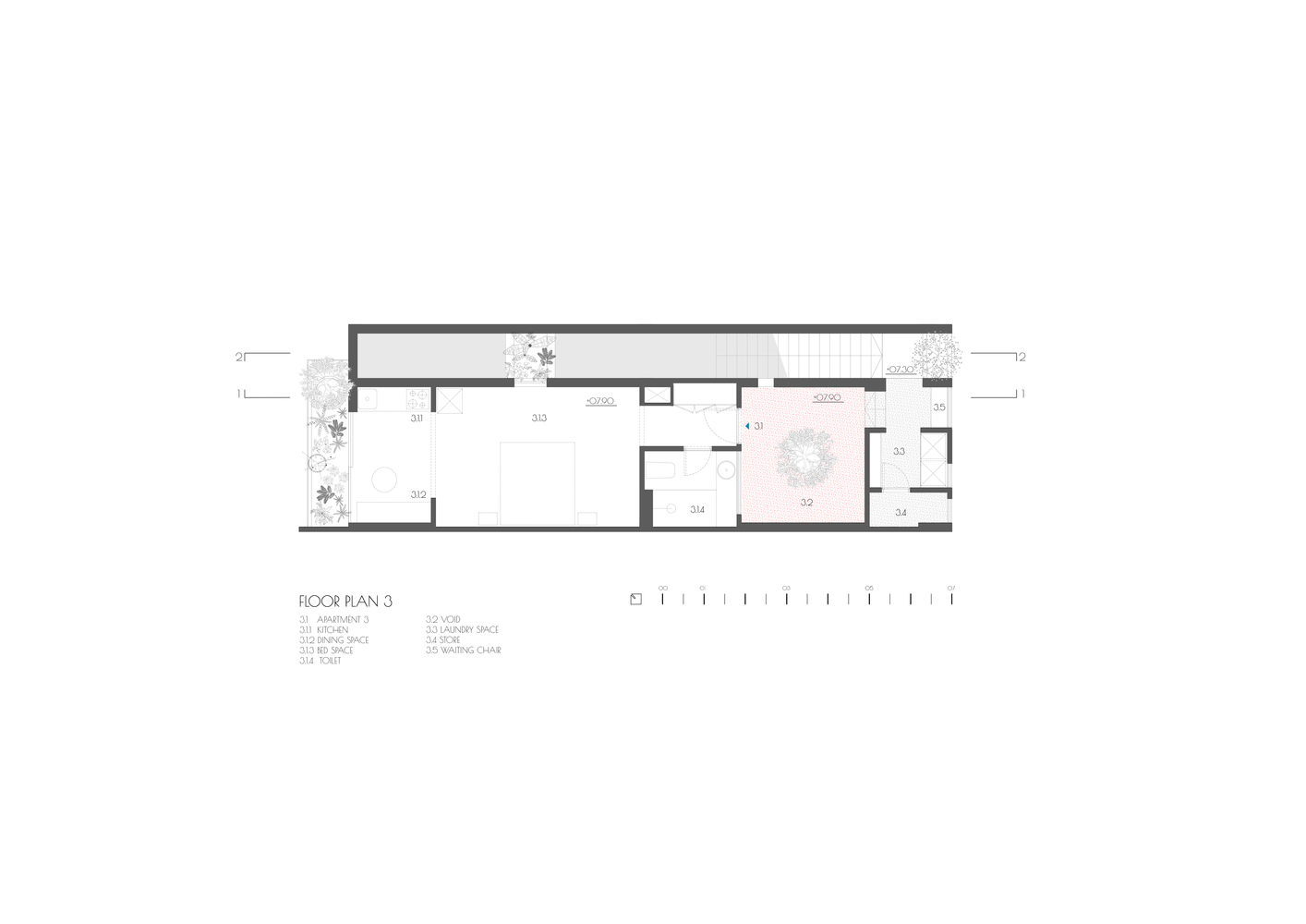
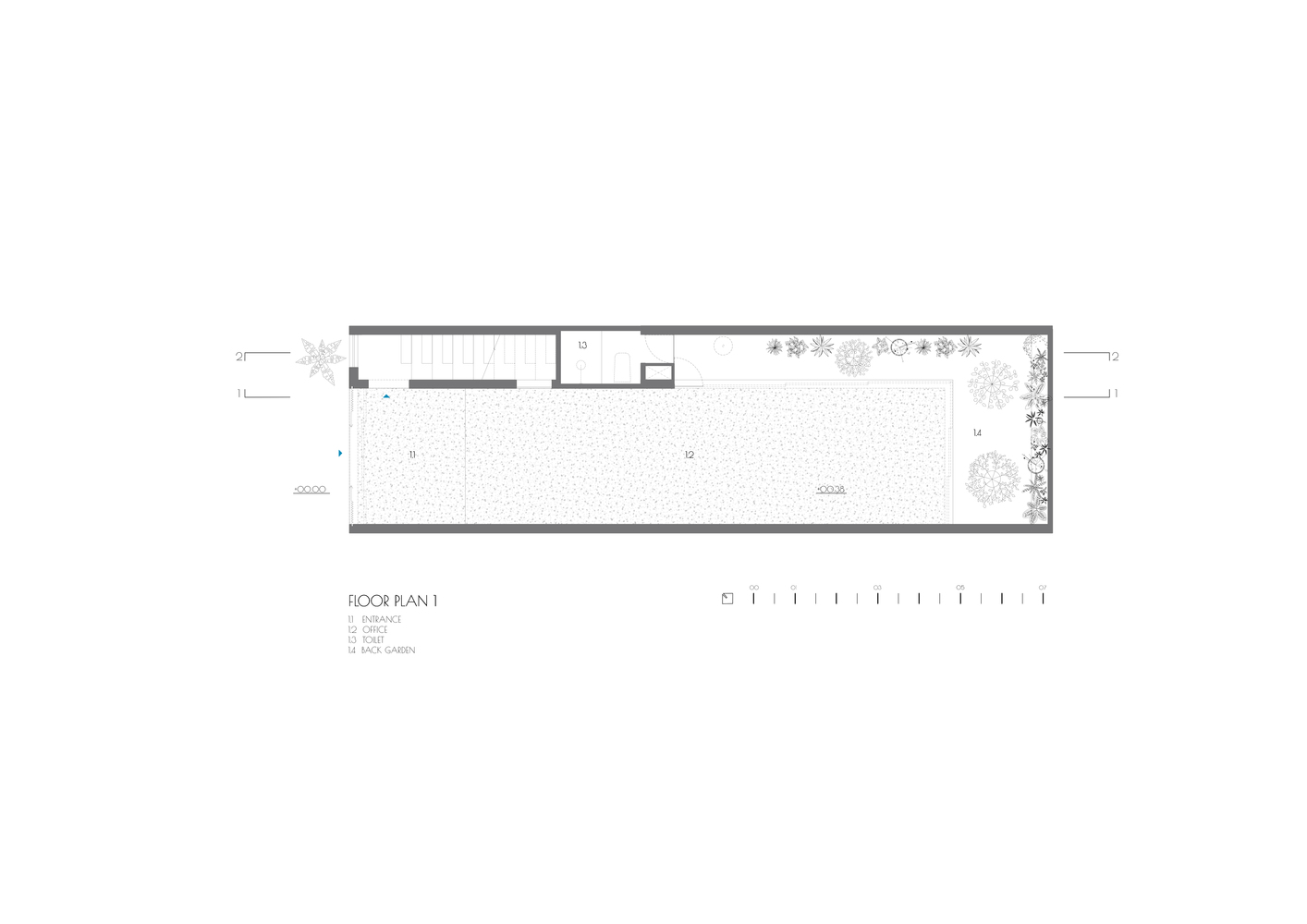
Ngôi nhà nằm trong khu đất 5m x 17m, giữa những dãy nhà quy hoạch với quy tắc xây dựng bắt buộc phải tuân theo như chiều cao, khoảng lùi, ban công, v.v… Mục đích là để cho thuê gồm văn phòng ở tầng trệt và 4 căn hộ.
Nhóm thiết kế muốn tạo ra một ngôi nhà được bao quanh bởi những khu vườn nhiệt đới. Kết cấu sàn lửng được sử dụng cho không gian tầng trệt để loại bỏ cột ở vị trí góc cạnh, từ đó tạo sự thông suốt kết nối giữa nhà và sân vườn.
Điểm gây ấn tượng đó chính là cầu thang có cấu trúc như những thanh gỗ được thiết kế dọc theo chiều dài của ngôi nhà. Cầu thang không chỉ là trục giao thông mà còn đóng vai trò thông gió cho tất cả các căn hộ trong ngôi nhà.
Do đón nhiệt lượng lớn từ hướng Tây nên giải pháp thiết kế trong mỗi căn hộ là các công năng phụ được đẩy ra ngoài, tạo tấm lọc nắng gồm 3 lớp: ban công sân vườn xanh mát, hệ thống rèm che, và khu vực nấu nướng ăn uống cũng như đọc sách để che nắng cho không gian sinh hoạt chính nhưng vẫn đảm bảo tầm nhìn ra sông.
- Thiết kế: H.a
- Diện tích: 85 m²
- Địa điểm: Q.7, TP.HCM
- Năm: 2020
- Hình ảnh: Quang Dam


































































nhà nhìn đẹp quá
Không gian rất đẹp thông thoáng