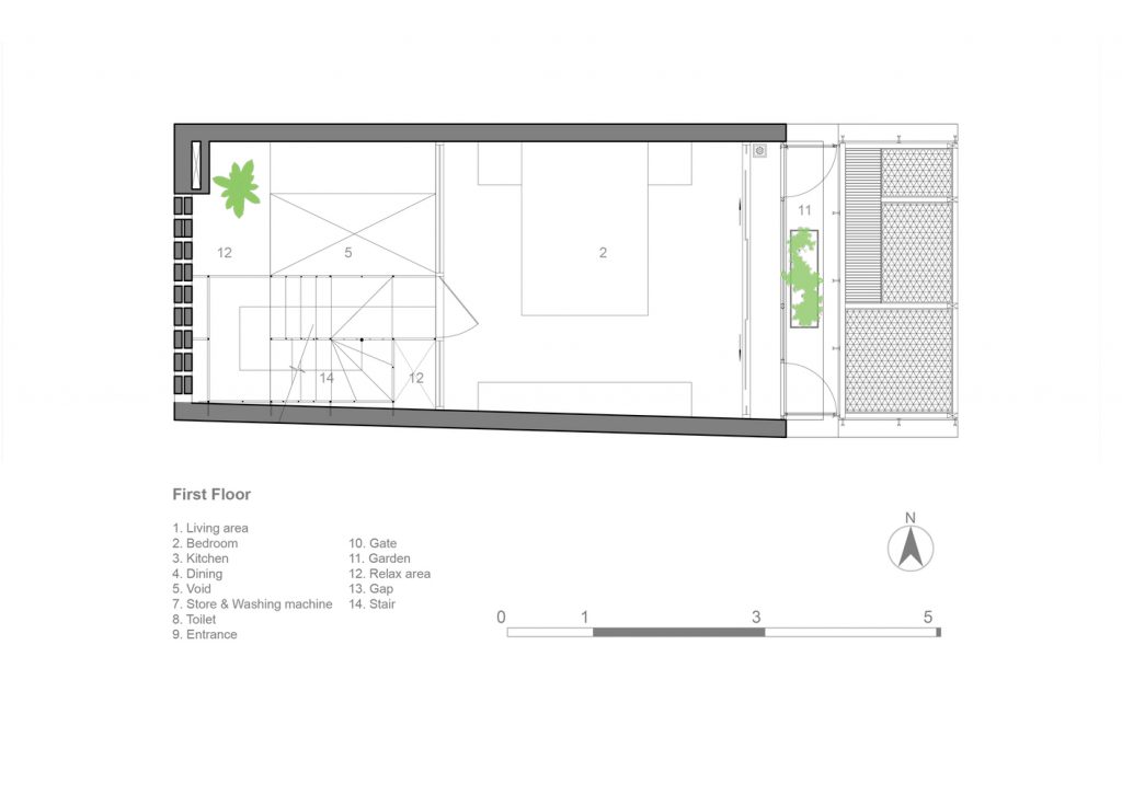
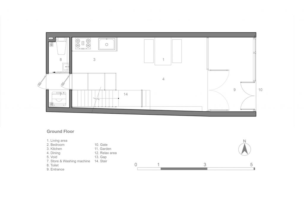
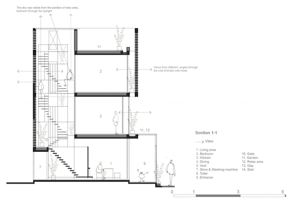
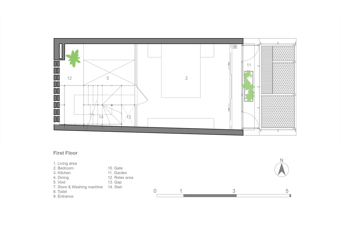
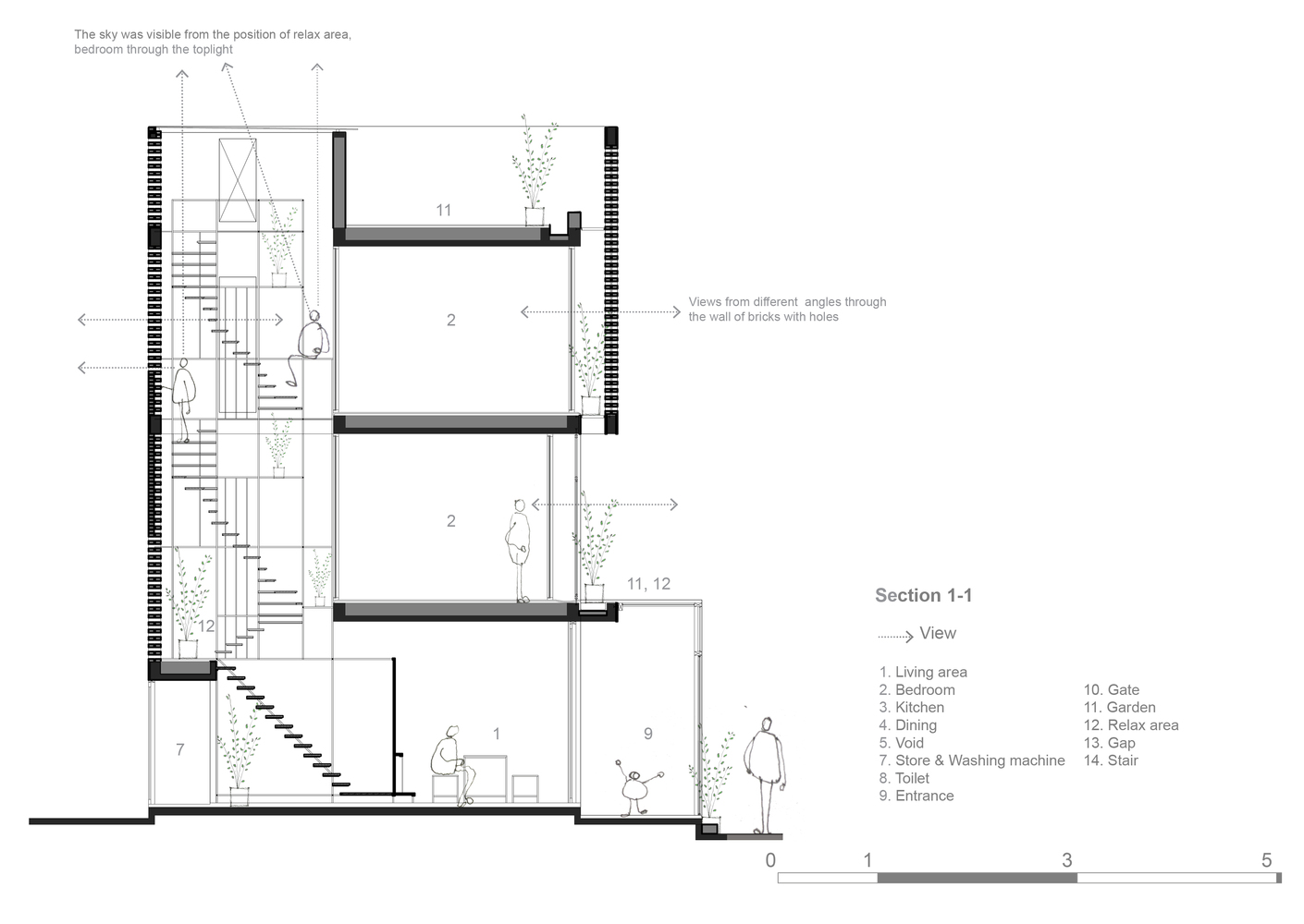
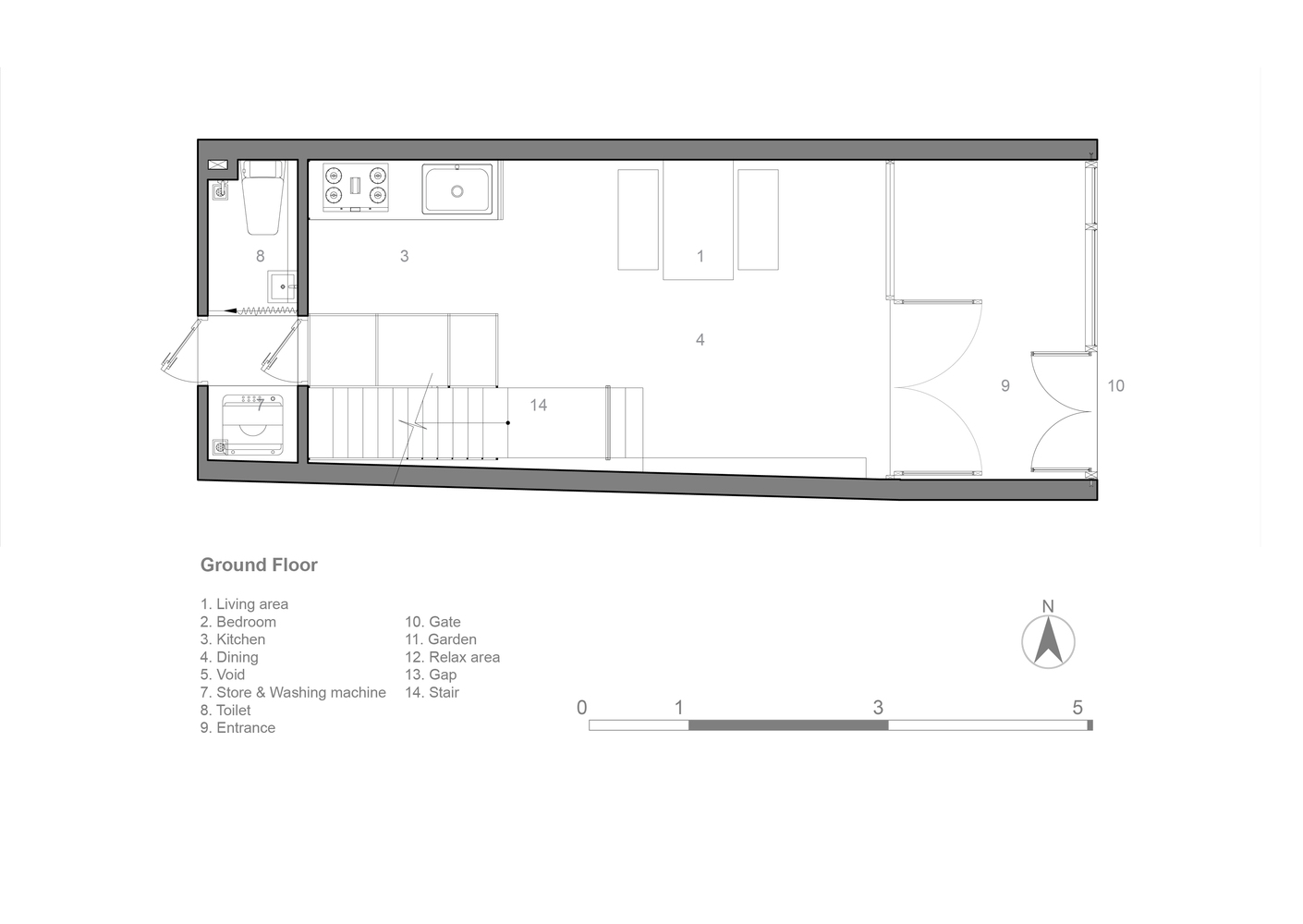
Wasp House là một ngôi nhà nhỏ có diện tích 3,5mx7m tại quận Bình Tân, TP.HCM. Căn nhà này xây cho 2 anh chị em với 2 tầng, mỗi tầng 1 phòng ngủ. Điểm nhấn của ngôi nhà chính là chiếc cầu thang độc đáo không chỉ được dùng làm cầu thang mà còn là góc trồng hoa, đọc sách hay đơn giản là ngồi thư giãn.
Ngôi nhà tràn ngập ánh nắng với lớp kính trên mái và bức tường gạch lỗ. Ánh nắng chan hòa với những viên gạch mộc mạc tạo nên một không gian sống gần gũi, nhiều cung bậc cảm xúc. Cổng và hàng rào được thiết kế đơn giản với lưới tản nhiệt bằng kim loại để trồng các loại cây dây leo. Những cây dây leo sau này sẽ che mặt tiền của ngôi nhà và giúp lọc bụi.
Để tiết kiệm chi phí, các kiến trúc sư đã đơn giản hóa các chi tiết, vật liệu và nội thất cũng như tối ưu hóa các không gian chức năng và giảm chiều cao của mỗi tầng. Đội ngũ thiết kế mong muốn mang đến một không gian sống tươi sáng và sinh động cho khu phố này, với quan niệm nhà đẹp không chỉ dành cho những người có thu nhập cao.
- Thiết kế: Tropical Space
- Diện tích: 3,5mx7m
- Địa điểm: Bình Tân, TP.HCM
- Năm: 2015
- Hình ảnh: Quang Dam





























































Để lại đánh giá