Trong ký ức của nhiều người, mái hiên không chỉ là không gian chuyển tiếp giữa trong và ngoài nhà, che nắng, che mưa, đón gió mát mà còn là nơi con cháu ngồi đợi bánh của bà ngoại khi đi chợ về, nơi mẹ nhặt rau hay cả gia đình quây quần gói bánh chưng đón Tết ở Việt Nam. Trong 2Hien House, ngoài hai mái hiên được bố trí ở phía trước và sau nhà, bên trong ngôi nhà còn có hai mái hiên khác, xung quanh là những viên ngói vảy cá cũ được tận dụng lại từ ngôi nhà cũ, tạo nên cảm xúc đặc biệt cho nơi này.

Đây là ngôi nhà dành cho hai thế hệ. Hai vợ chồng chủ nhân ngôi nhà có chung niềm đam mê thiên nhiên, yêu thích những gì mộc mạc, giản dị, đặc biệt ông xã cũng là người nghệ thuật và lãng mạn. Họ có hai cô con gái nhỏ rất đáng yêu, rất sợ ma và luôn muốn được gần bố mẹ. Bên cạnh đó, còn có nhiều ngói vảy cá cũ được gia đình cất giữ từ ngôi nhà cũ đã tháo dỡ.

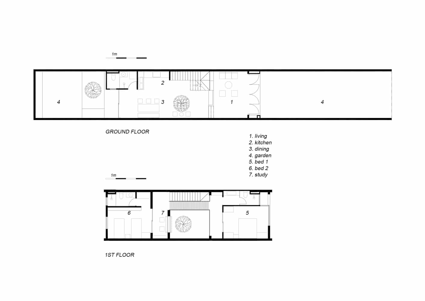
Ngôi nhà có hai tầng nhưng chỉ chiếm ít hơn một nửa diện tích đất. Phần đất còn lại làm vườn trước và sau nhà vừa là cảnh quan vừa là không gian tụ tập bạn bè, nơi chồng chăm cây, vợ trồng rau, con cái vui chơi. Khu vườn cung cấp gió và ánh sáng tự nhiên cho ngôi nhà trong khu đô thị, nơi các tòa nhà bê tông liên tục mọc lên.

Sự ngăn cách giữa các khối công trình đảm bảo sự thông thoáng, tận dụng tối đa ánh sáng tự nhiên cho mọi không gian, hạn chế tiêu thụ năng lượng cho việc chiếu sáng và làm mát. Không gian hai hiên bên trong ngôi nhà là nơi sinh hoạt chung của gia đình, gắn kết các thành viên, giúp mọi người có thể dễ dàng nhìn thấy nhau. Đây là nơi cả gia đình cùng nhau dùng bữa, nơi các con học bài, bố nằm võng, mẹ thư giãn, đọc sách hoặc nấu ăn. Mái hiên được hạ thấp, bao bọc lấy không gian học tập của hai bé, tạo nên một không gian vừa có cảm giác ấm áp, an toàn mà vẫn thoáng mát, uyển chuyển.

Về vật liệu, ngôi nhà được xây dựng chủ yếu bằng gạch đỏ thông thường và ngói vảy cá cũ, gần gũi với thiên nhiên, mang lại cảm giác riêng biệt và phù hợp với tinh thần của công trình. Gạch thô, không trát xi măng đã qua xử lý mang lại cảm giác ấm cúng, giản dị nhưng vẫn tạo được cảm xúc mạnh mẽ, đảm bảo mỹ quan và vệ sinh sử dụng.

Ngoài việc xác định đủ nhu cầu xây dựng, việc sử dụng tường gạch thô còn giúp giảm chi phí hoàn thiện tường hay chi phí bảo dưỡng chống nứt, sơn, sửa tường hàng năm. Ngói vảy cá cũ tái chế đã mang màu sắc của thời gian, cho ta cảm giác mộc mạc, gần gũi mà màu ngói mới khó có được. Hệ thống ngói vảy cá bao bọc bốn mái hiên trong và ngoài nhà tạo nên hình khối hài hòa với công năng sử dụng. Tất cả tạo nên một “hiên ngang bình yên” của riêng mình, một chốn bình yên lưu giữ mọi kỷ niệm của gia đình.
- Thiết kế: CTA | Creative Architects
- Diện tích: 75 m²
- Địa điểm: Tây Ninh
- Năm: 2020
- Hình ảnh: Hiroyuki Oki
THAM GIA CHIA SẺ Ý KIẾN VỀ CHỦ ĐỀ NÀY CÙNG ARC VIBES




















































Để lại đánh giá