Ngôi nhà là nơi ở của một gia đình bảy thành viên và là nơi để họ hàng gặp mặt. Ngoài công dụng ở, Bat Trang House còn có chức năng là cửa hàng, kinh doanh các sản phẩm gốm sứ truyền thống của phố gốm.
Ngoại thất ngôi nhà được lấy cảm hứng từ vẻ đẹp truyền thống của ngôi làng với mặt tiền thể hiện rõ nét văn hóa làm gốm sứ độc đáo. Nội thất bên trong đảm bảo sự tiện lợi và thoải mái cho cuộc sống hiện đại ngày nay.
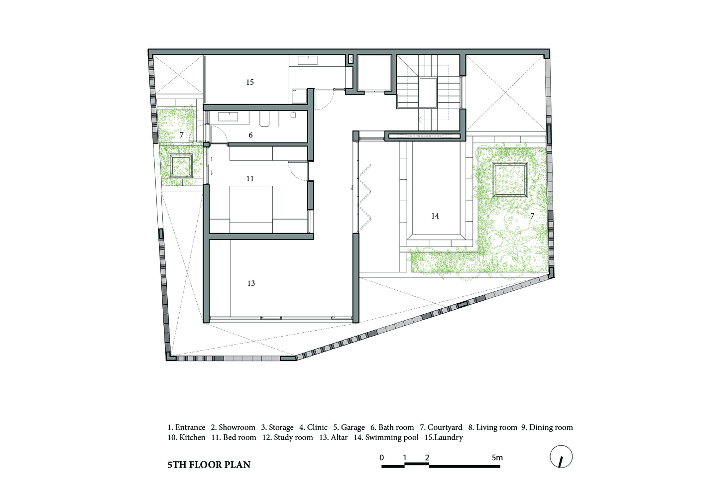
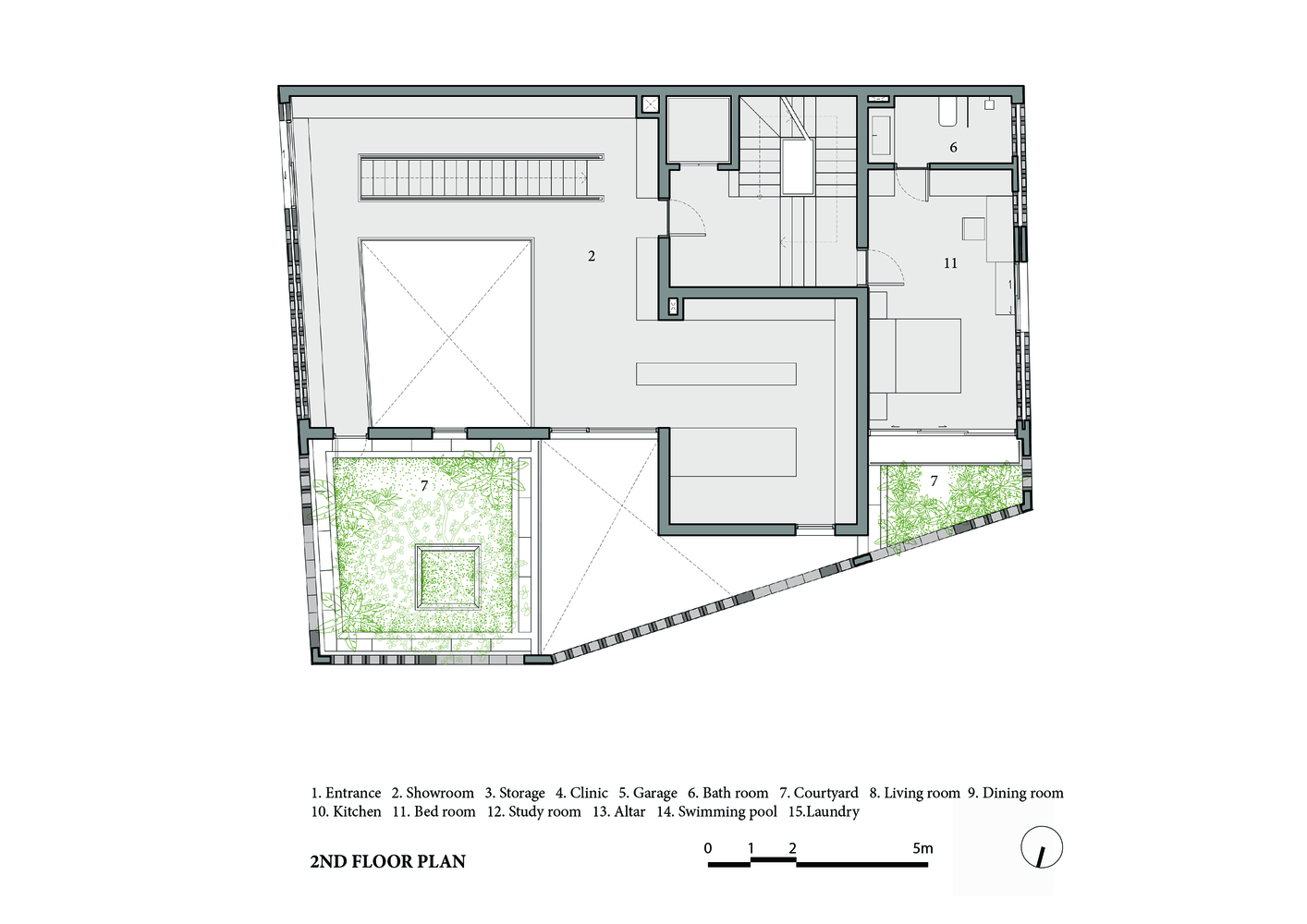
Sự sắp xếp không gian của ngôi nhà cũng dựa trên ngôi nhà lý tưởng của chủ nhân, nơi thiên nhiên đan xen với các chức năng khác của ngôi nhà.
- Thiết kế: VTN Architects
- Diện tích: 740 m²
- Địa điểm: Bát Tràng, Hà Nội
- Năm: 2020
- Hình ảnh: Hiroyuki Oki
THAM GIA CHIA SẺ Ý KIẾN VỀ CHỦ ĐỀ NÀY CÙNG ARC VIBES





























































Để lại đánh giá