Đoạt giải Building of The Year do tạp chí ArchDaily uy tín bình chọn, công trình đánh dấu sự kết hợp của 3 tên tuổi lớn trong ngành kiến trúc Việt Nam: Võ Trọng Nghĩa Architects, Nishizawa Architects, Sanuki Daisuke Architects.
Bình Thạnh House tọa lạc tại trung tâm Sài Gòn, được thiết kế dành cho một gia đình ba thế hệ gồm ông bà, cha mẹ và một người con. Khu đất có hai cá tính khác biệt, một mặt đối diện với con phố ồn ào và bụi bặm trong một khu vực đô thị hoá điển hình trong thành phố và một mặt đối diện kênh Nhiêu Lộc và phía bên kia là Sở thú Sài Gòn với nhiều cây xanh.
Trong bối cảnh có tính hai mặt này, khái niệm của ngôi nhà là phù hợp với hai lối sống khác nhau trong khí hậu nhiệt đới: một lối sống hiện đại và điều hòa với các thiết bị như máy lạnh và lối sống truyền thống sử dụng ánh sáng tự nhiên và thông gió bằng nước và cây xanh.
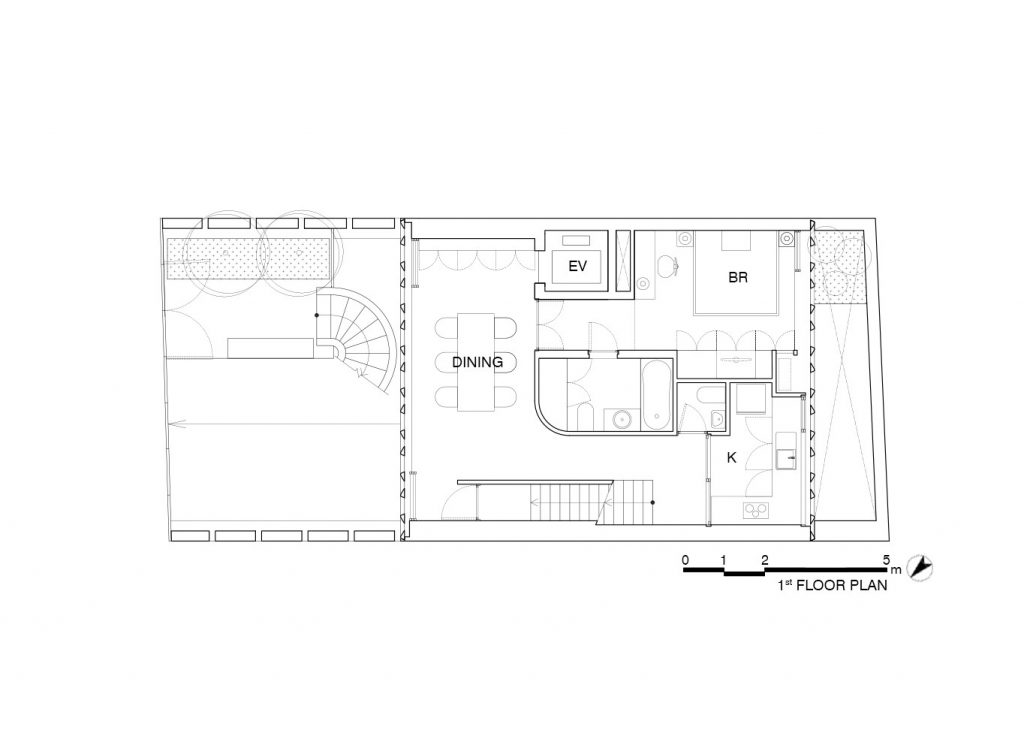
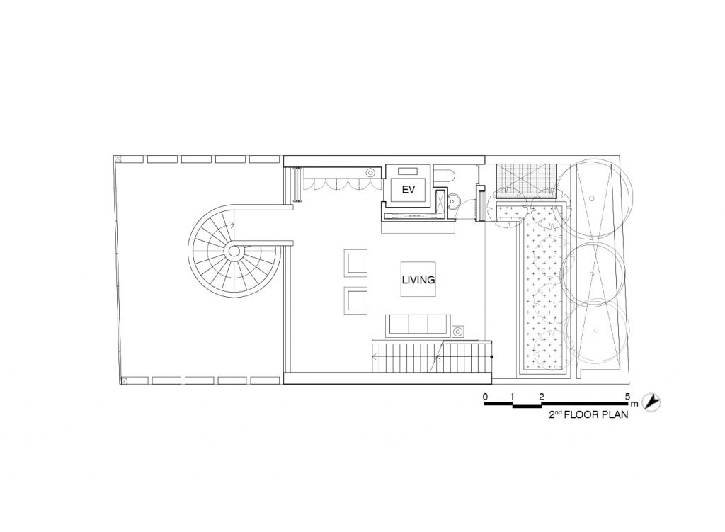
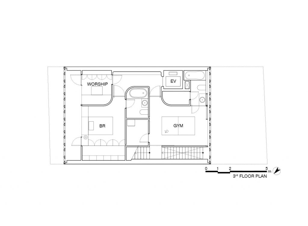
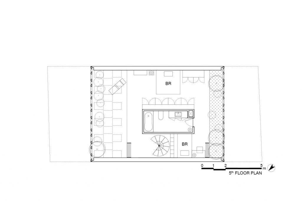
Ngôi nhà bao gồm hai không gian khác nhau được bố trí xen kẽ. Không gian cho phong cách sống hiện đại được phân bổ thành ba khối nổi được bao bọc bởi các khối hoa văn bê tông. Và không gian giữa ba khối này được mở rộng ra bên ngoài và được phân bổ cho phong cách sống tự nhiên, nơi cư dân tận hưởng gió, ánh sáng mặt trời, cây xanh và nước.
Ba khối tích được dịch chuyển qua lại để mang ánh sáng tự nhiên vào giữa các không gian, cũng như tạo ra những khu vườn nhỏ trên mỗi tầng. Các đáy của các khối tích này trở thành trần nhà cho các không gian ở giữa. Các bề mặt này được thiết kế với nhiều hình dạng cong khác nhau, cung cấp cho mỗi không gian các hiệu ứng ánh sáng khác nhau.
Phòng ngủ và các phòng nhỏ khác được chứa trong các khối nửa kín để tăng cường an ninh và sự riêng tư. Mặt khác, các không gian mở ở giữa được thiết kế để trở thành không gian sống độc lập cho các thế hệ trong gia đình.
Các khối hoa văn, từng là thiết bị che nắng phổ biến ở Việt Nam để lấy thông gió tự nhiên, được làm bằng bê tông đúc sẵn với chiều rộng 60cm và chiều cao 40cm. Nó không chỉ ngăn ánh nắng gay gắt và mưa lớn mà còn tăng cường sự riêng tư và an toàn.
Mặc dù Bình Thạnh House trông không giống với những ngôi nhà phố khuôn mẫu khác ở Thành phố Hồ Chí Minh, tất cả các giải pháp kiến trúc đều bắt nguồn từ lối sống và trí tuệ địa phương. Ngôi nhà cung cấp một giải pháp về lối sống sinh thái trong thành phố nhiệt đới hiện đại. Đó là nơi cuộc sống hiện đại và thiên nhiên tương thích với nhau.
- Thiết kế: Võ Trọng Nghĩa Architects, Nishizawa Architects, Sanuki Daisuke Architects
- Diện tích: 516 m²
- Địa điểm: Bình Thạnh, TP.HCM
- Năm: 2013
- Hình ảnh: Hiroyuki Oki




























































Để lại đánh giá