DT House là kiểu nhà nhỏ diện tích 5x20m khá quen thuộc ở Việt Nam. Được hình thành với ý tưởng về một ngôi nhà nhiệt đới, trong đó không gian và cách sử dụng vật liệu có thể chịu được khí hậu khắc nghiệt tại miền Trung nước ta.

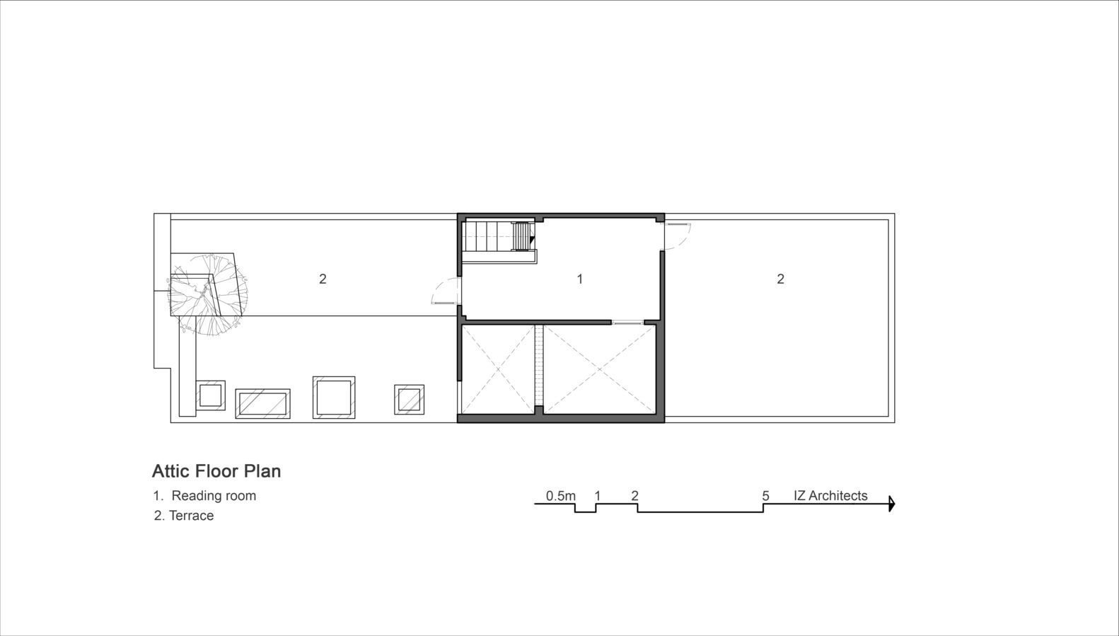
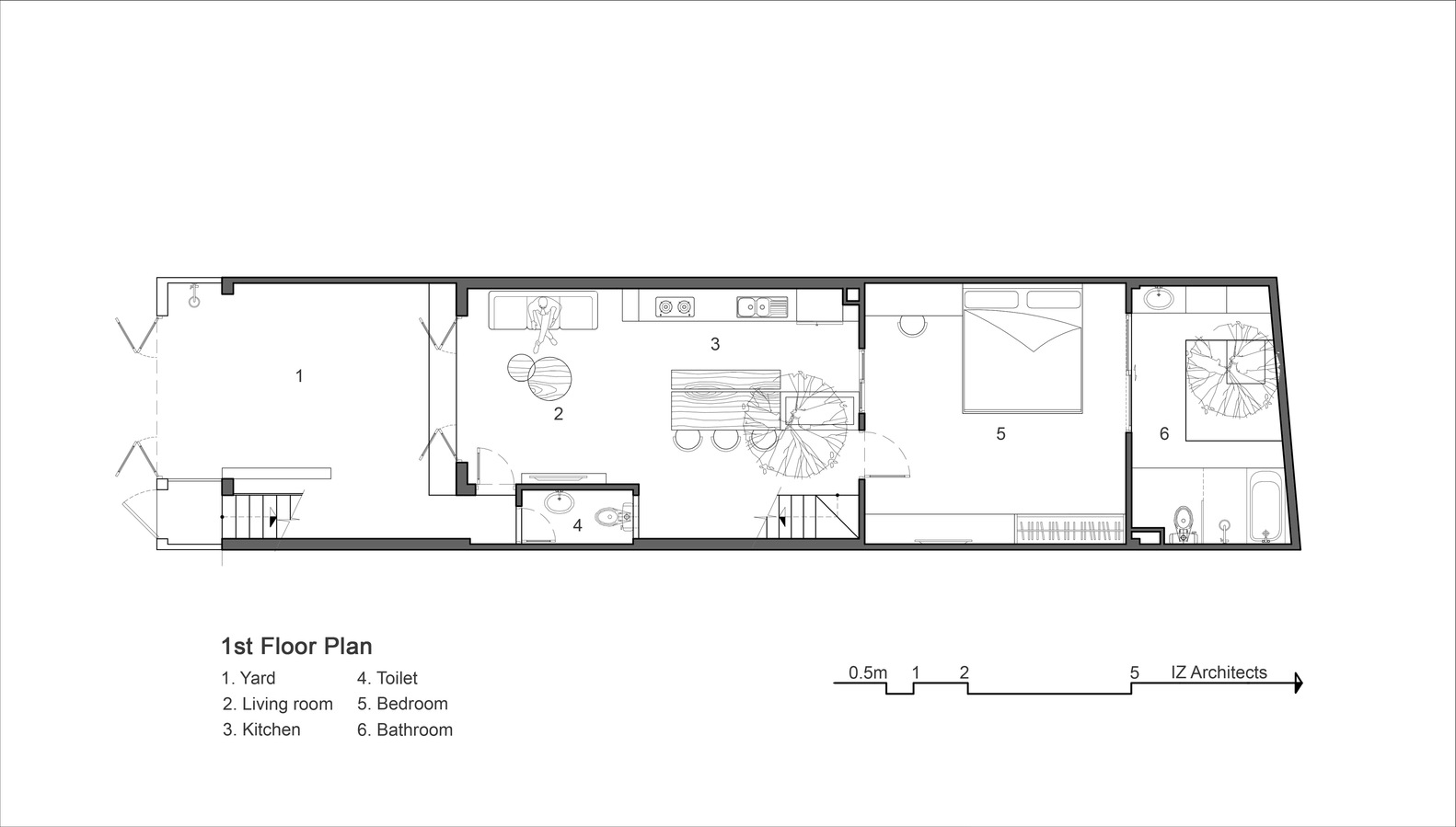
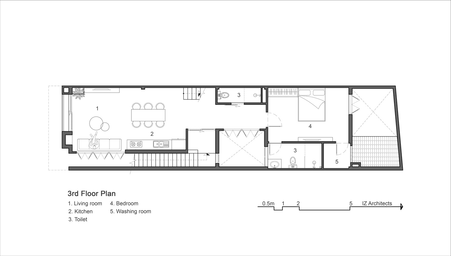
Ngôi nhà được thiết kế theo concept một ngôi nhà nhỏ bên trong ngôi nhà lớn hơn, nghĩa là hình khối lớn hơn sẽ bao bọc và bảo vệ các hình khối nhỏ hơn bên trong và chúng được liên kết với nhau bằng cầu thang và các khoảng thông tầng.

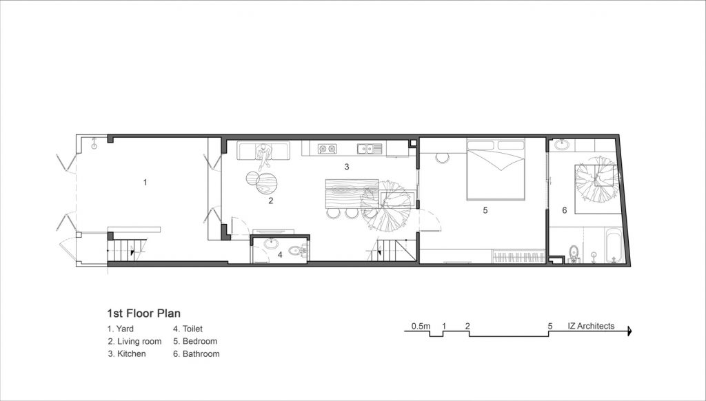
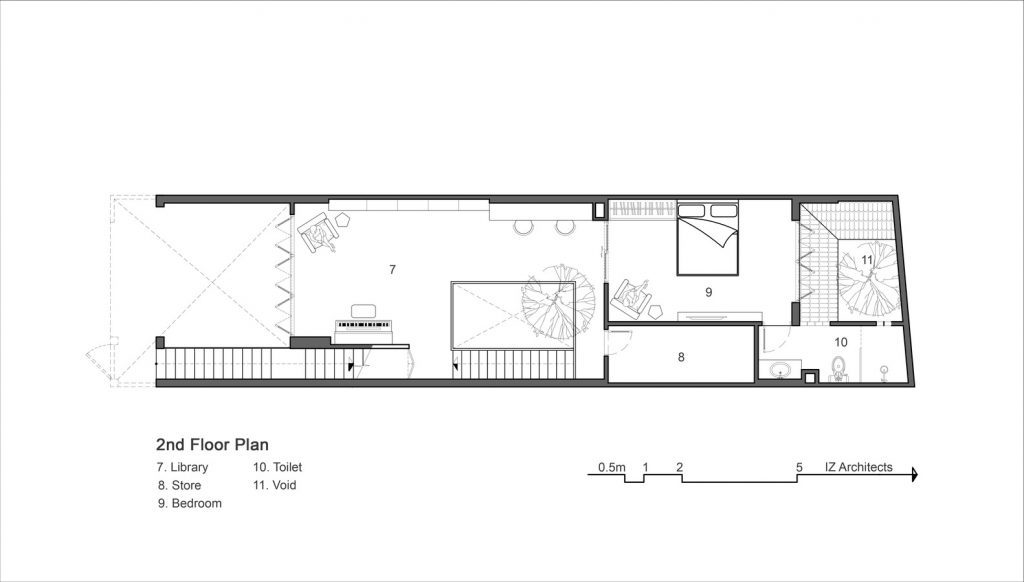
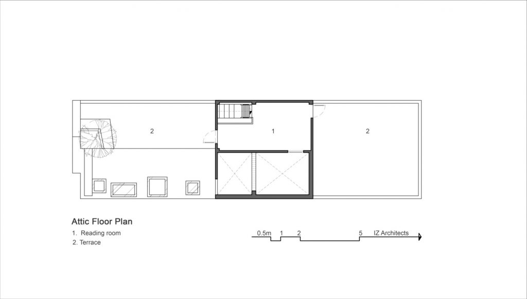
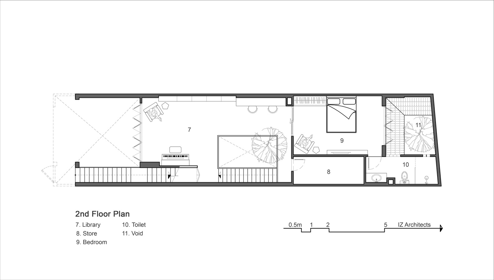
DT House được bố trí sân trước rộng với hai cầu thang liên kết hai tầng nhằm tạo ra khoảng thông thủy cực lớn bên trong ngôi nhà cũng như tạo nguồn ánh sáng và gió tự nhiên lý tưởng. Không khí bên trong ngôi nhà, nhờ đó, luôn được lưu thông như một lá phổi.

Cây xanh là một phần không thể thiếu trong ngôi nhà, được coi là điểm nhấn cho các khoảng thông tầng và giúp tạo cảm giác thư thái, thông thoáng trong ngôi nhà có diện tích nhỏ.

Ngôi nhà tạo cảm giác thoải mái khi ở với các vật liệu địa phương, thô sơ, thân thiện có màu sắc trung tính đồng thời giúp cải thiện nhiệt độ cho ngôi nhà.
- Thiết kế: IZ Architects
- Diện tích: 115 m²
- Địa điểm: Đà Nẵng
- Năm: 2019
- Hình ảnh: Quang Dam


















































Để lại đánh giá