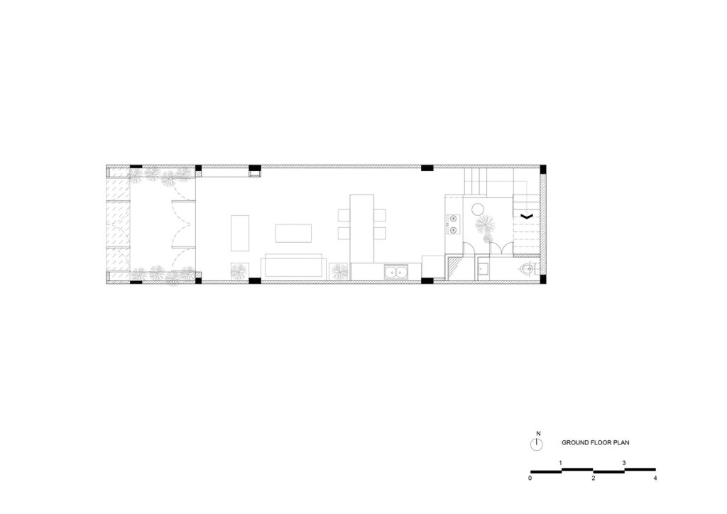
Floating Nest, cũng giống như nhiều ngôi nhà ống khác ở Sài Gòn, tọa lạc trên một lô đất hẹp (4x12m) trong khu dân cư đông đúc của thành phố, bị các công trình lân cận chắn 3 mặt, chỉ có một mặt hướng ra bên ngoài, về hướng Tây. Đến với NgNg, cô chủ đam mê làm vườn mong muốn hơn hết là một không gian thoáng đãng, thư thái sau một ngày làm việc mệt mỏi, với những mảng xanh dồi dào như ở vùng quê.
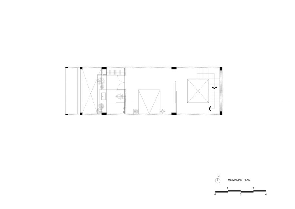
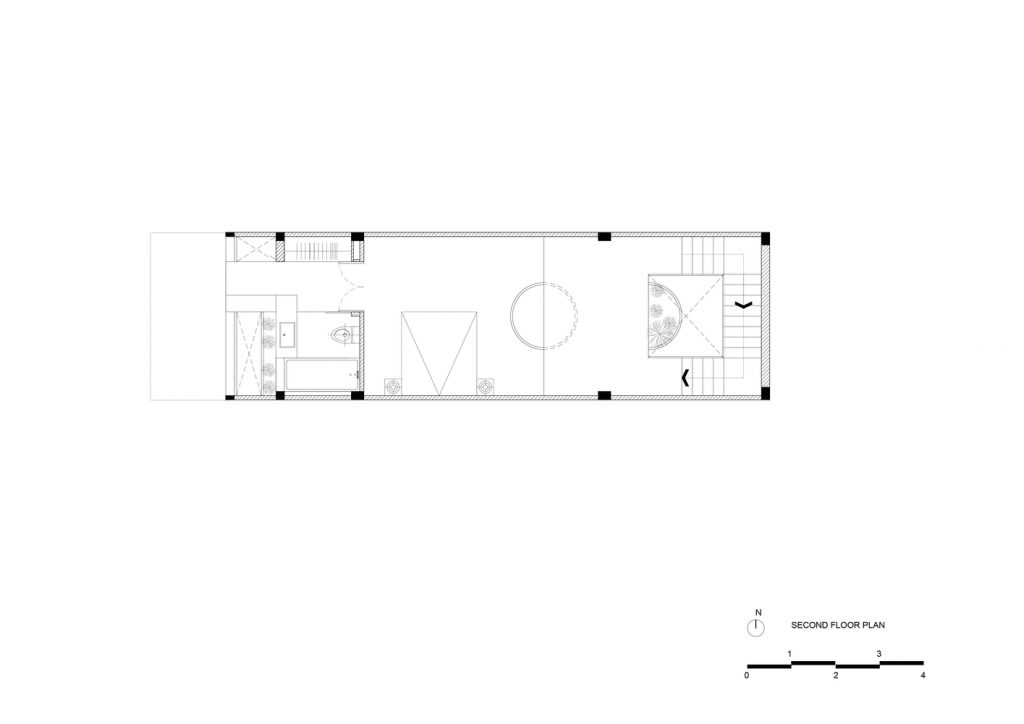
Để giải quyết những hạn chế nêu trên, đồng thời tăng cường ánh sáng và thông gió tự nhiên, nhóm KTS quyết định bỏ qua tường ngăn trong nhà, sử dụng “cây xanh” và “khoảng trống” để phân tách các không gian chức năng. Có ba khoảng trống lớn: vườn trước và vườn sau, trải dài cả ba tầng, ngăn cách giữa đường và nhà; giếng sáng trung tâm, xuyên suốt hai tầng trên, ngăn cách cơ quan gia chủ với khu nghỉ ngơi, sân vườn với nơi thờ tự.
Những khu vườn nhỏ được sử dụng tương tự để ngăn cách nội thất và ngoại thất; nhà vệ sinh và phòng ngủ hoặc nhà bếp; các phòng ngủ và cầu thang. Giải pháp này tạo ra sự chuyển đổi không gian suôn sẻ trong khi đảm bảo tất cả các không gian chức năng đều tiếp xúc với thiên nhiên.
Vật liệu được sử dụng là sự kết hợp giữa đương đại và truyền thống, gợi nhớ đến không gian làng quê Việt Nam: tre, gỗ, kết hợp kính, sắt. Tre là nguyên liệu tự nhiên rất dồi dào tại địa phương, vừa thân thiện với môi trường vừa mang lại hiệu quả kinh tế. Những bức bình phong tre chạy dọc theo chiều dài của mặt tiền – “bức tường mây” trong kiến trúc truyền thống ở nông thôn Việt Nam, bảo vệ toàn bộ ngôi nhà khỏi ánh nắng gay gắt hướng Tây và duy trì độ riêng tư cao.
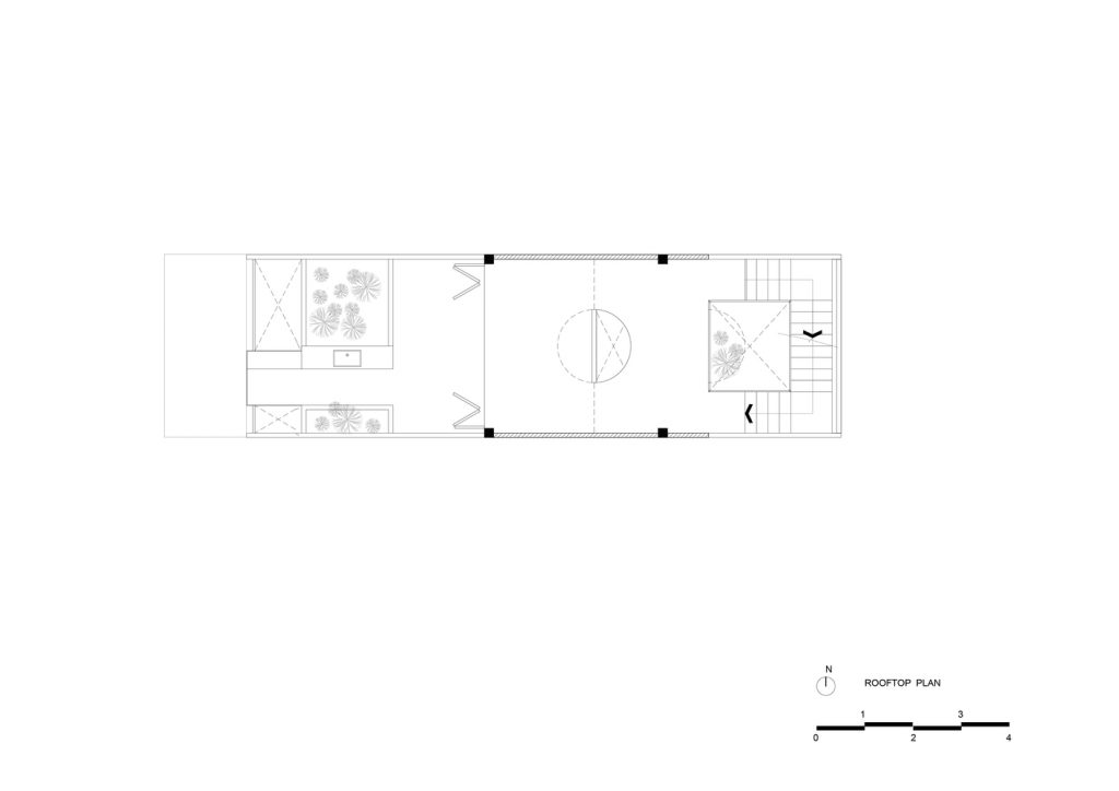
Bên cạnh đó, các nan tre đan cho phép thông gió tự nhiên. Tấm mành tre này cuộn lại để che nắng cho sân thượng. Thanh chắn gió bằng sắt CNC với những hình cắt lá, một phiên bản cách điệu của tấm chắn gió truyền thống (bình phong), có chức năng như một thiết bị đối lưu ánh sáng và không khí. Sắt CNC còn được dùng làm lam che nắng ban công, cửa cổng ra vào. Chúng hoàn toàn tạo ra cảm giác ngôi nhà như một tổng thể mở, kết nối. Trần tre ở giếng trời sân sau, ngay cầu thang, được tạo nên từ những thanh tre thẳng đứng. Điều này cho phép kết nối trực quan với mặt tiền đồng thời đóng vai trò che nắng. Nó cũng cho phép ánh sáng đi qua, tạo ra không chỉ những mảng tối thú vị mà còn tạo ra những âm thanh vui tai như chuông gió treo trong vườn.
Sắt tấm mỏng được sử dụng cho các thành phần kiến trúc thường được xây bằng bê tông như cầu thang, chậu cây, ban công, lam che nắng nhằm giảm trọng lượng kết cấu. Hơn nữa, chúng được thiết kế để trông giống như được treo tự do trên không trung. Vật liệu này cũng được sử dụng làm phông nền cho khu vực thờ cúng – không gian quan trọng nhất của ngôi nhà, kéo dài xuống tầng dưới và trở thành không gian thiền định.
Những chiến lược khác biệt này khiến toàn bộ ngôi nhà có cảm giác nhẹ nhàng, như đang lơ lửng trong không gian xanh rộng lớn và ngập tràn ánh sáng. Vào lúc hoàng hôn, khi mặt trời lặn, ánh sáng từ trong nhà chiếu qua những khe hở giữa những lũy tre và những vết cắt trên vách sắt khiến ngôi nhà như một chiếc đèn lồng giữa xóm.
- Thiết kế: atelier NgNg
- Diện tích: 192 m²
- Địa điểm: TP.HCM
- Năm: 2020
- Hình ảnh: Quang Dam
THAM GIA CHIA SẺ Ý KIẾN VỀ CHỦ ĐỀ NÀY CÙNG ARC VIBES































































Để lại đánh giá