[Dẫn lời KTS]
Nằm gần bờ biển với tầm nhìn ra thẳng Vịnh Hạ Long, VTN Architects đã thiết kế một ngôi nhà bền vững, hài hòa với môi trường xung quanh và trở thành một phần của cảnh quan.
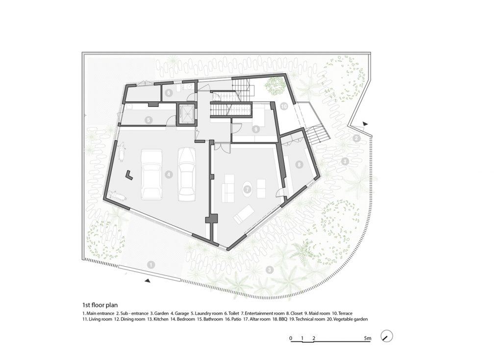
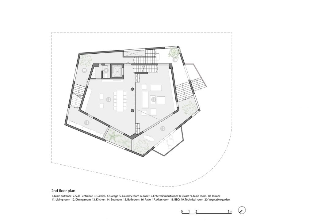
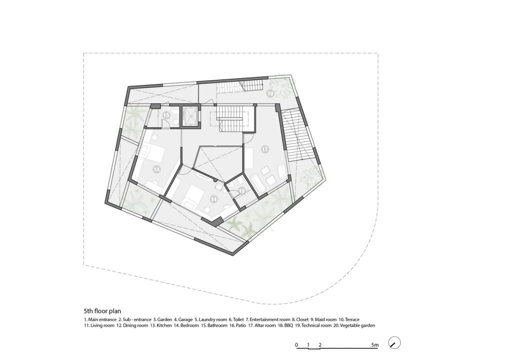
Concept chính của Hạ Long Villa là tạo ra không gian cho mọi người có cảm giác như đang sống và được bao bọc bởi rừng xanh. Được kết hợp bởi một hình ngũ giác nhỏ nằm bên trong một hình ngũ giác khác to hơn, cộng với thiết lập các lớp của không gian bên trong và bên ngoài phủ đầy cây cối, nên ngôi nhà có chức năng chống lại khí hậu nóng và tiếng ồn.
Mọi không gian bán ngoại thất trong ngôi nhà đều được kết nối với cầu thang xoắn ốc chính. Có một chuỗi không gian từ bên ngoài vào bên trong, từ mặt đất đến mái nhà, và thông qua không gian bán ngoại thất với một cửa sổ lớn và nhiều cây xanh để cảm nhận cảnh quan thiên nhiên phong phú và cảnh quan thành phố từ các góc độ khác nhau.
- Thiết kế: VTN Architects
- Diện tích: 1190 m²
- Địa điểm: Hạ Long, Quảng Ninh
- Năm: 2020
- Hình ảnh: Hiroyuki Oki























































Để lại đánh giá