Thiết kế bởi HAO Design, dự án này là một không gian đa năng kết hợp giữa một studio và không gian triển lãm đồ nội thất để bán. Mảnh đất này là một đơn vị trong một dãy nhà phố cũ, nằm ở quận Tả Doanh của thành phố Cao Hùng. Ngôi nhà 36 tuổi có bề ngoài cổ điển, ấm áp và lôi cuốn và vẫn giữ nguyên kế hoạch chia tầng phổ biến vào những năm 1960. Những người cư ngụ trong quá khứ đã thêm thắt cho căn nhà dựa vào nhu cầu của họ, bao gồm một lán kim loại và cửa sổ bằng lưới sắt.
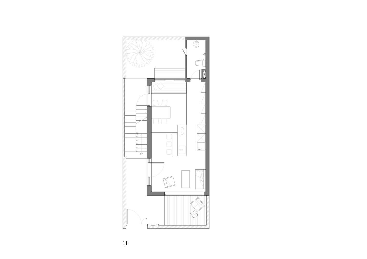
Tầng đầu tiên của tòa nhà là có diện tích khoảng 36 mét vuông. Với mặt tiền hẹp, bên trong không cho nhiều ánh sáng, che khuất vẻ ngoài đẹp đẽ của tòa nhà. Kiến trúc sư đã cho tháo cầu thang bên trong, các cửa sổ bằng sắt đối diện với đường phố và lán kim loại (là một nhà bếp) được thêm vào phía sau của tầng một. Họ đã tạo ra không gian bằng cách thêm cầu thang bên ngoài và một khoảng sân, để cho ngôi nhà cũ lấy lại phong cách và nét duyên dáng ban đầu.
Không gian ban đầu được chỉ định là một phòng thu và không gian triển lãm cho đồ nội thất Nhật Bản, nhưng do sơ đồ tầng, ba phòng của tòa nhà được ngăn cách bởi các bức tường vững chắc và bị chặn bởi cầu thang. Toàn bộ không gian bị phân mảnh và không mạch lạc. Vì vậy, họ loại bỏ các bức tường ngăn cách các tầng so le và di chuyển cầu thang ra bên ngoài để mở rộng không gian bên trong của cấu trúc để ánh sáng từ sân có thể đi vào.
Sau đó, nhóm thiết kế đã mở rộng không gian bằng cách sử dụng kính cho phép ánh sáng xuyên qua tự do, do đó cải thiện khả năng tương tác. Để làm nổi bật các đặc điểm đẹp của nhà phố, chẳng hạn như vát tròn của cửa sổ, họ sử dụng màu trắng để tạo ra một không gian sạch sẽ, không lộn xộn để trưng bày đồ nội thất.
Đối với cầu thang, bây giờ chúng là thứ duy nhất kết nối các tầng riêng lẻ với nhau. Để thêm một cái gì đó mới cho việc leo lên và xuống cầu thang, họ thêm một góc nghiêng cho các cửa sổ phong cách Pháp trên tầng hai để mọi người sẽ bước lên một nền tảng hình tam giác khi di chuyển ra ngoài qua cầu thang bên ngoài. Điều này cũng tạo ra một mặt tiền sống động hơn. Con đường xuyên qua ngôi nhà được nối với nhau bằng cầu thang bên ngoài để người dân và du khách ra vào dễ dàng, tận hưởng sự thú vị khi khám phá tất cả các không gian khác nhau.
- Thiết kế: HAO Design
- Diện tích: 36 m²
- Địa điểm: Zuoying, Kaohsiung, Taiwan
- Năm: 2016
- Hình ảnh: Hey! Cheese




























































Để lại đánh giá