Được thiết kế dành cho một cặp vợ chồng trẻ và hai con nhỏ của họ, mục tiêu của KTS là tạo ra ngôi nhà thân thiện nhất với môi trường. Ngôi nhà này tận dụng các nguồn năng lượng tự nhiên để hạn chế sử dụng năng lượng hóa thạch, cũng như giảm tiêu thụ nguồn tài nguyên nước.
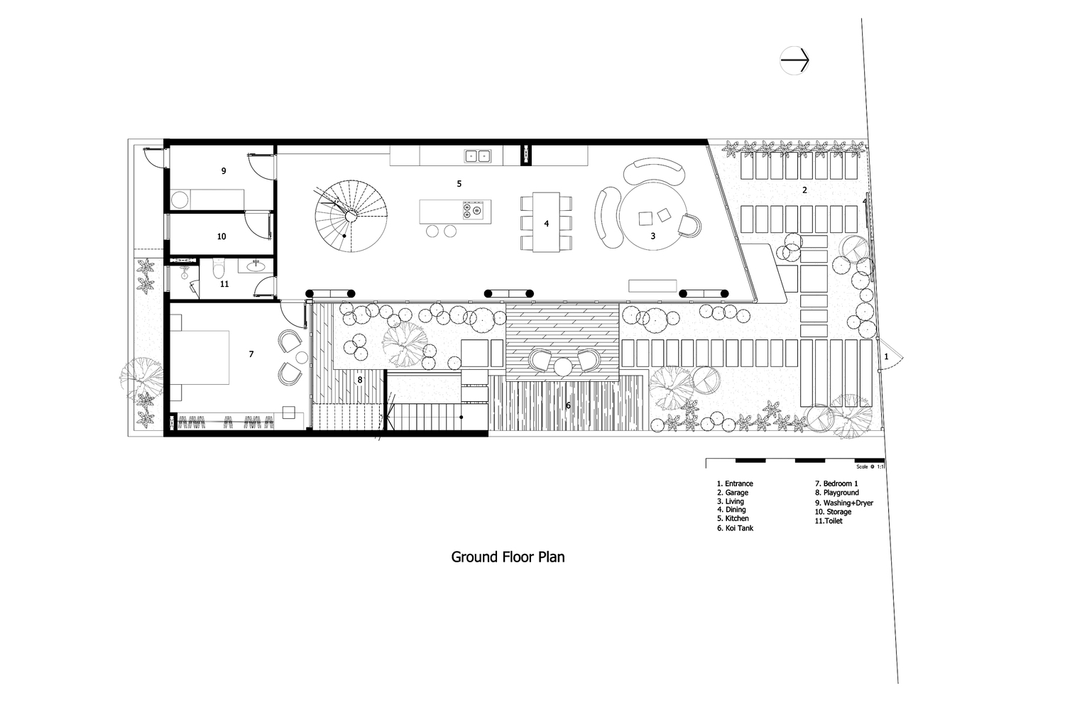
Tầng trệt có một phòng khách, một bếp, một phòng ngủ cho khách, một kho và một phòng giặt đồ. Phòng bếp và phòng khách liên thông với nhau nhằm tạo ra không gian rộng và linh hoạt cũng như giảm diện tích xây dựng, dành nhiều không gian cho sân vườn. Tất cả các phòng đều hướng ra vườn thông qua cửa sổ trượt lớn trong suốt, giúp tạo sự thông thoáng tốt nhất cho ngôi nhà.
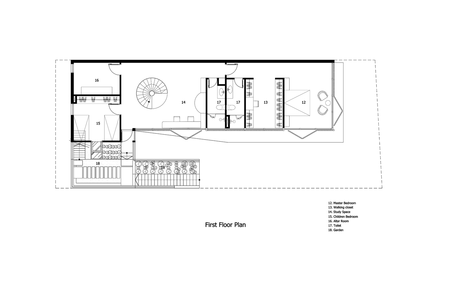
Phòng thờ, phòng làm việc và hai phòng ngủ nữa nằm ở tầng 1 và hướng ra vườn. Chúng cũng được trang bị cửa sổ trượt để tối đa hóa luồng không khí, đặc biệt là không khí từ biển gần đó. Sự khác biệt giữa tầng một và tầng trệt là, tầng một được trang bị cửa sổ chớp. Điều này giúp giảm bớt ánh nắng khi cần thiết.
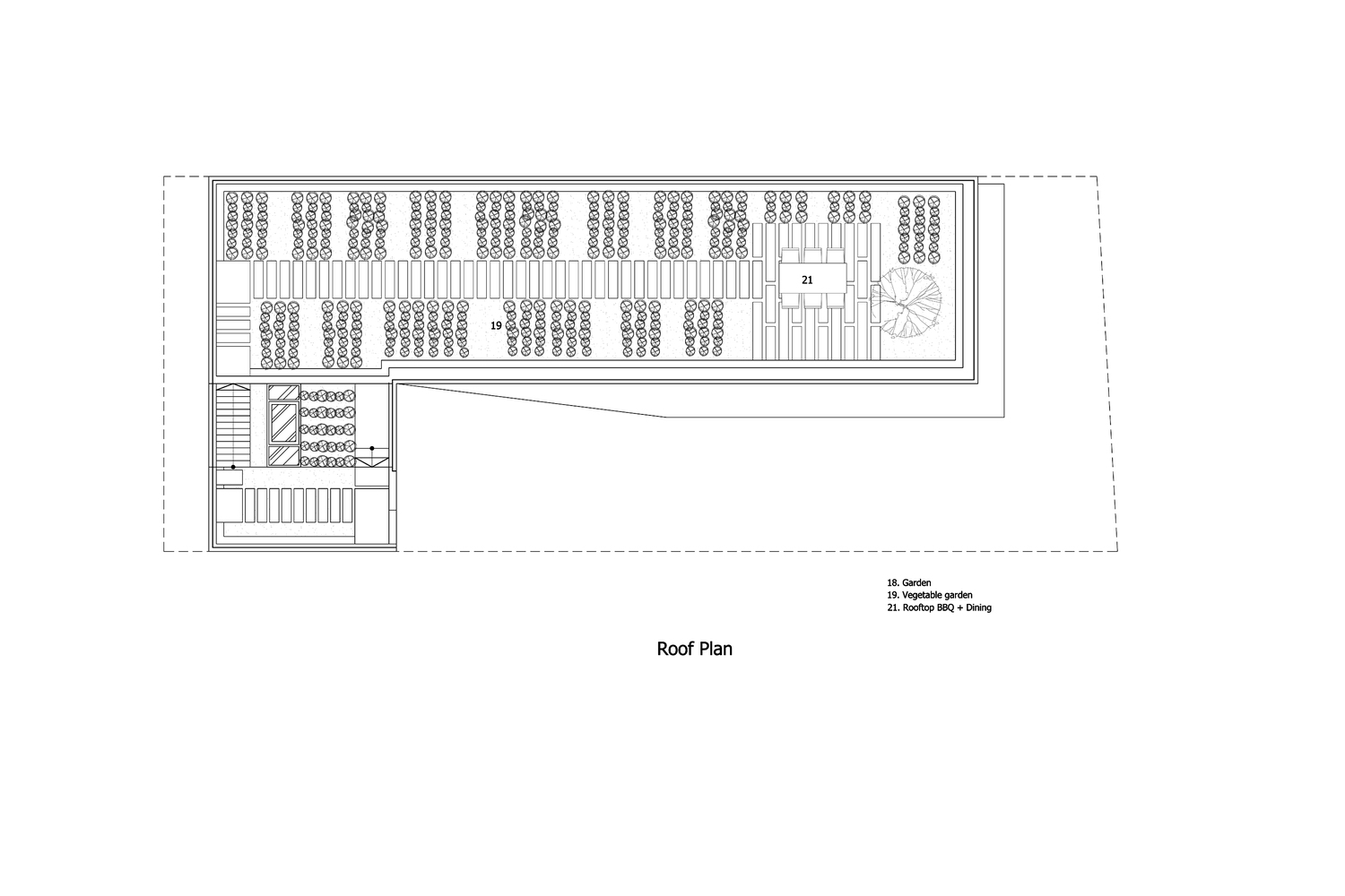
Trên tầng thượng, có một sân chơi nhỏ và một vườn rau nhỏ đủ cho nhu cầu hàng ngày. Vườn rau sử dụng hóa chất không độc hại, an toàn cho người và vật nuôi; nó cũng sử dụng một hệ thống tưới nước tuần hoàn tự động kiểm soát nhiệt độ và độ ẩm; dự trữ và phân phối lại nước từ nguồn nước mưa.
Sau bốn năm thực hiện nhiều dự án, nhóm thiết kế nhận thấy rằng trên cùng một nền bê tông, khu vực trồng cây sẽ có điều kiện tốt hơn các khu vực khác. Khu vực không trồng cây sẽ xuất hiện vết nứt trên bề mặt dẫn đến rò rỉ nước. Vì vậy, nhóm thiết kế khuyến khích mọi người nên trồng cây trên sân thượng của mình. Nó không chỉ tốt hơn cho môi trường mà còn bảo vệ công trình xây dựng của bạn.
Theo tính toán, bằng cách tận dụng ánh sáng tự nhiên, trồng cây để giảm bức xạ nhiệt và sử dụng hệ thống tưới nước tuần hoàn tự động, House of One Piece đã giảm 30% năng lượng sử dụng cho chiếu sáng và điều hòa không khí. Các giải pháp này không chỉ tiết kiệm năng lượng mà còn bảo vệ công trình khỏi các tác nhân có hại của môi trường.
- Thiết kế: 85 Design
- Diện tích: 250 m²
- Địa điểm: Đà Nẵng
- Năm: 2020
- Hình ảnh: To Huu Dung
THAM GIA CHIA SẺ Ý KIẾN VỀ CHỦ ĐỀ NÀY CÙNG ARC VIBES





































































Để lại đánh giá