Jasmine House nằm trong một con ngõ nhỏ ở quận Ba Đình, Hà Nội, xưa thuộc làng hoa Ngọc Hà. Cũng như nhiều khu vực khác xung quanh nội thành, quá trình đô thị hóa đã diễn ra mạnh mẽ ở đây. Tuy nhiên, nhờ đặc điểm là nằm gần trung tâm thành phố và các trụ sở ngoại giao, khu vực này dần trở thành khu dân cư của cộng đồng người nước ngoài sinh sống và làm việc tại Việt Nam. Điều này đã và đang tạo ra sự thay đổi lớn đối với diện mạo và tính chất của các công trình tại đây. Không chỉ có những ngôi nhà nhỏ dành cho các hộ gia đình, mà còn xen kẽ những tòa nhà lớn hơn để chào đón những người mới đến. Đó là lý do tại sao các căn hộ cho thuê đang rất thịnh hành ở đây.
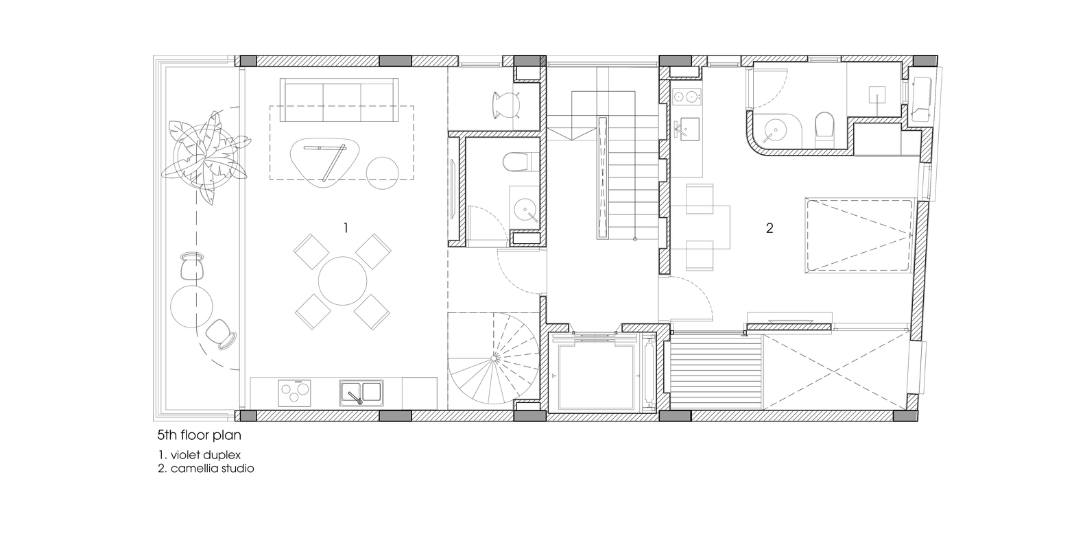
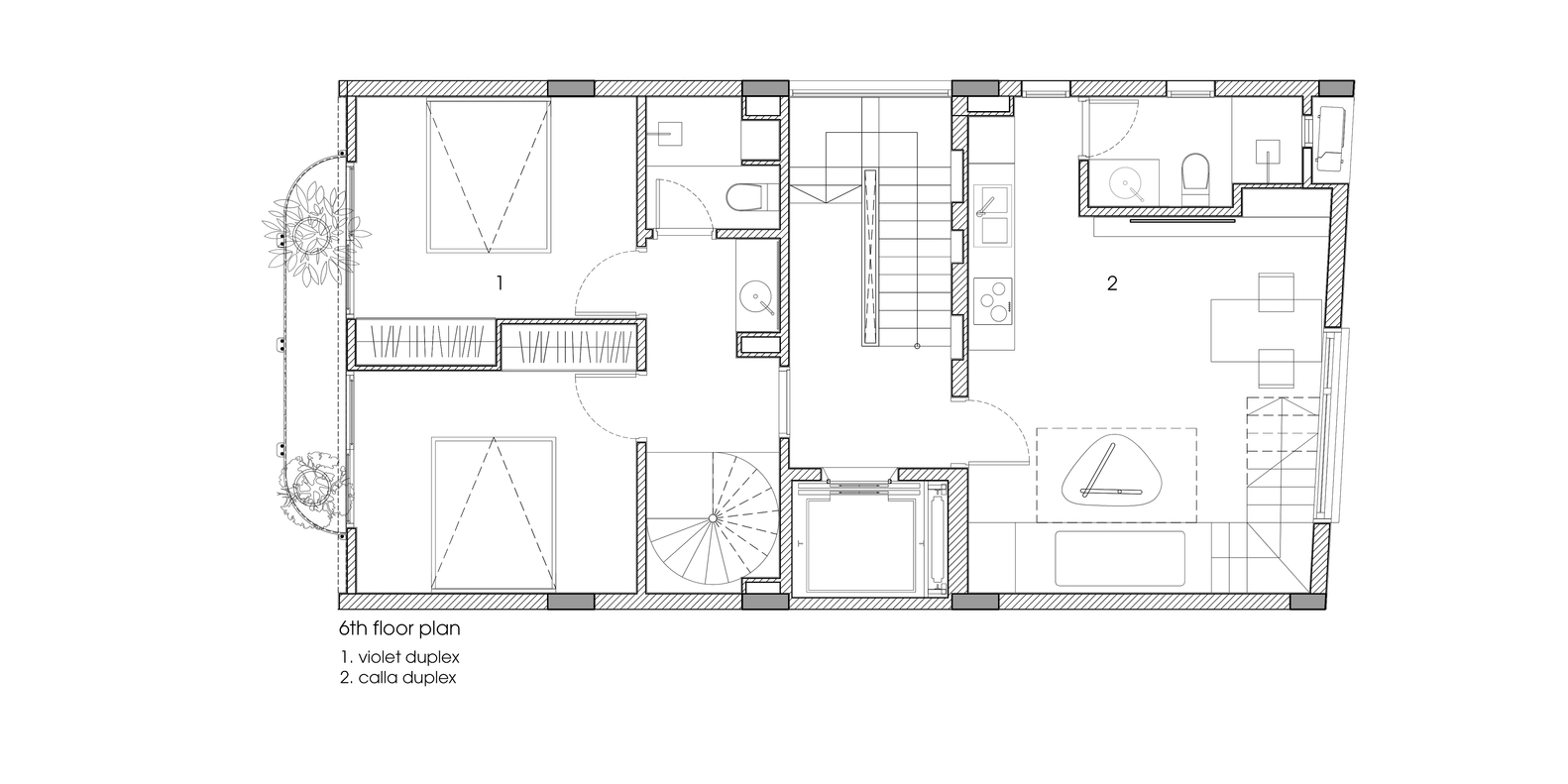
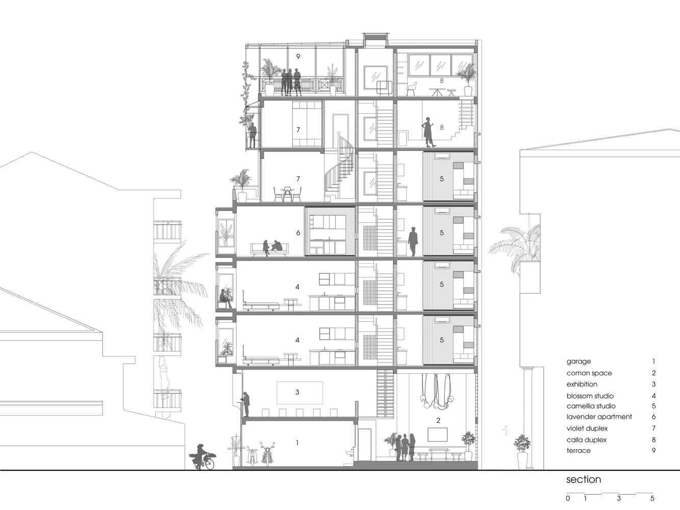
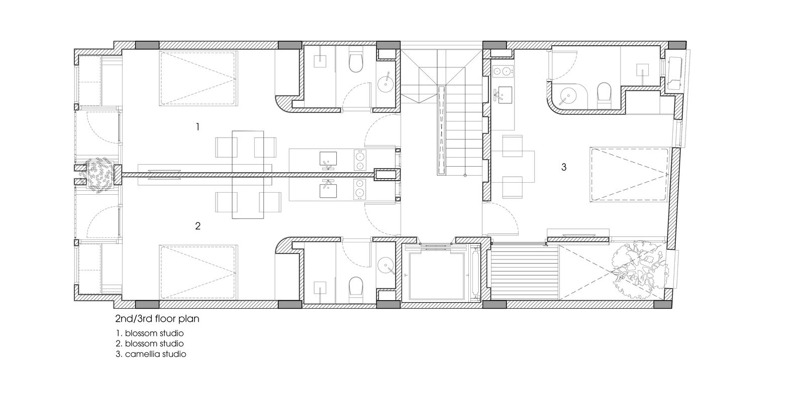
Với cấu trúc mạch lạc, KTS tổ chức các lớp không gian khác nhau cho ngôi nhà, từ không gian công cộng, không gian bán công cộng và không gian riêng tư. Phần đế của công trình bao gồm tầng 1 và tầng lửng được thiết kế dành cho không gian sinh hoạt chung của cả tòa nhà. Từ tầng 2 đến tầng 7 có các loại căn hộ khác nhau. Trên tầng 2 và tầng 3 có các studio cỡ nhỏ. Trên tầng 4 có một studio cỡ lớn và trên các tầng 5, 6 và 7 là các căn duplex. Đa dạng các loại hình căn hộ giúp người thuê dễ dàng lựa chọn cho mình một không gian phù hợp nhất. Mỗi căn hộ đều được thiết kế với đầy đủ tiện nghi, ánh sáng và thông gió tự nhiên.

Ngoài các không gian cơ bản như bếp, phòng ăn, phòng khách, phòng ngủ và phòng vệ sinh, mỗi căn hộ còn được thiết kế ban công. Ban công là sự kết hợp giữa không gian bên trong và bên ngoài; nó có thể là không gian thư giãn hoặc không gian đọc sách. Nếu ban công căn hộ phía trước được thiết kế mở rộng không gian thì ban công căn hộ phía sau lại được thiết kế nổi trên giếng trời của tòa nhà. Đây cũng là những không gian “bán công cộng” – được thiết kế riêng cho từng căn hộ nhưng những người sống trong các căn hộ liền kề vẫn có thể tiếp xúc với nhau. Các ban công này cũng đóng vai trò là lớp đệm, bảo vệ không gian chính trong căn hộ khỏi tác động trực tiếp của ánh nắng từ hướng Tây.

Những hoài niệm về một làng hoa truyền thống của Hà Nội được KTS đưa vào công trình một cách tinh tế. Không gian xanh được tận dụng tối đa trong toàn bộ tòa nhà, từ hiên ra vào đến sân trong, từ ban công các căn hộ đến khu vườn trên sân thượng, và ngay cả màu sắc hay tên gọi của từng căn hộ cũng thể hiện nỗi nhớ về vùng đất xưa này.
- Thiết kế: VUUV Architecture and Interior Design
- Diện tích: 800 m²
- Địa điểm: Đội Cấn, Ba Đình, Hà Nội
- Năm: 2019
- Hình ảnh: Tường Huy, Vũ Hoàng

























































Để lại đánh giá