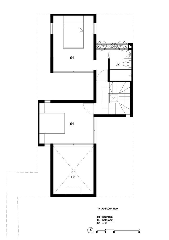
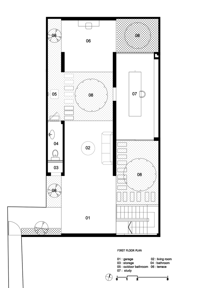
Lấy cảm hứng từ ngôi nhà sân vườn truyền thống, trong dự án này, các không gian và thể tích được cấu hình lại để xếp chồng lên nhau theo chiều dọc trong ba khối và sau đó bù đắp theo chiều ngang để tạo ra những khoảng trống cho không gian mở giữa các khối không gian kín.
Kết quả là ngôi nhà có “sân” xoay quanh không gian sống, trái ngược với ngôi nhà truyền thống thường bao quanh sân.
- Thiết kế: H-H Studio
- Diện tích: 200 m²
- Địa điểm: Hòa Thuận Đông, Đà Nẵng
- Năm: 2019
- Hình ảnh: Hoang Le
THAM GIA CHIA SẺ Ý KIẾN VỀ CHỦ ĐỀ NÀY CÙNG ARC VIBES


























































Để lại đánh giá