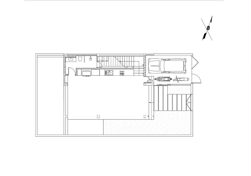
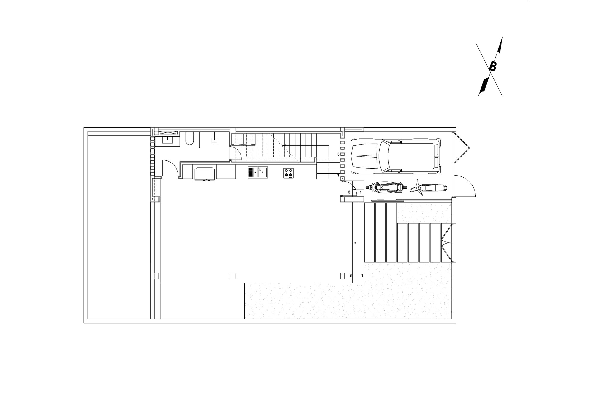
Căn nhà được xây dựng trên một khu đất rộng 10m và sâu 20m ở một khu dân cư ngoại thành Sài Gòn. Tầng trệt được nâng lên với nhà bếp, phòng ăn và khu vực sảnh thành một không gian duy nhất, mở hoàn toàn về ba phía từ sân trước, vườn đến hồ bơi ở phía sau. Tường rào cao tạo sự riêng tư và ngăn ánh nắng trực tiếp.

Cảnh quan xung quanh nhà là sự kết hợp của các loại cây cao và vừa, cũng như các loại cây trồng trên tường bao quanh nhà. Bên cạnh đó, hồ bơi giúp làm mát luồng không khí. Trong trường hợp mưa lớn, đã có các tấm chắn tre ngăn nước. Vào ban đêm, khu vực này được bảo vệ bằng một cửa chớp tự động dọc theo nhà bếp.

Ở tầng một, phòng khách và cầu thang được thông gió xuyên suốt nhờ các bức tường gạch tái chế. Cửa sổ kính từ trần đến sàn mang lại tầm nhìn tối đa ra xung quanh. Các bức tường gạch đôi ở cao độ phía nam và phía tây giúp không gian bên trong luôn mát mẻ.

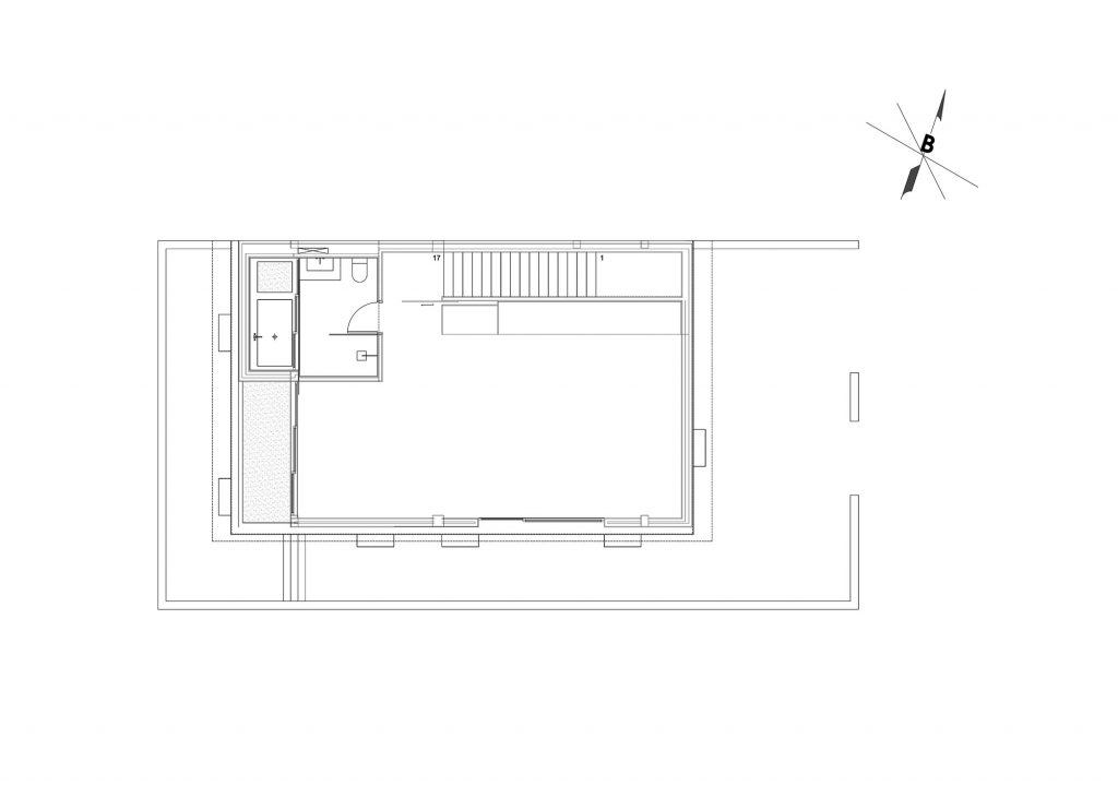
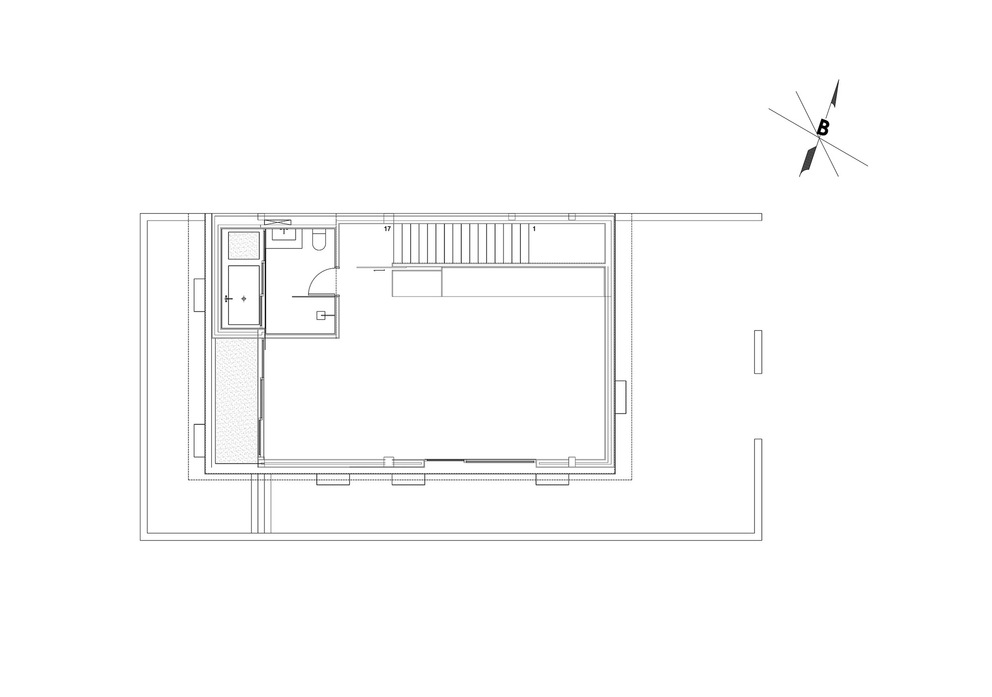
Không gian tầng áp mái được chuyển thành phòng ngủ lớn. Sự cởi mở thông thoáng được ưu tiên ở đây với cửa sổ trượt lớn và phòng tắm ngoài trời. Ánh sáng mặt trời trực tiếp được lọc qua màn chắn gỗ và thảm thực vật trong các chậu trồng cây lớn.
- Thiết kế: MM++ architects
- Diện tích: 280 m²
- Địa điểm: Nhà Bè, TP.HCM
- Năm: 2014
- Hình ảnh: Hiroyuki Oki




















































Để lại đánh giá