[Dẫn lời KTS]
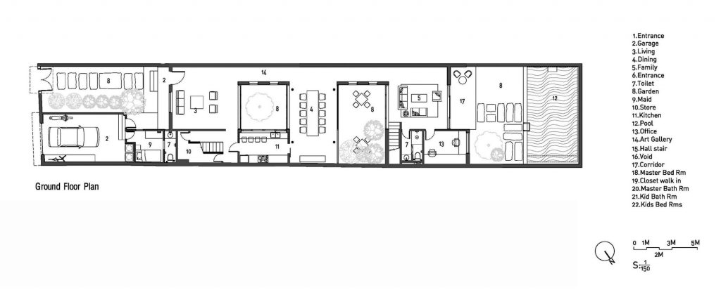
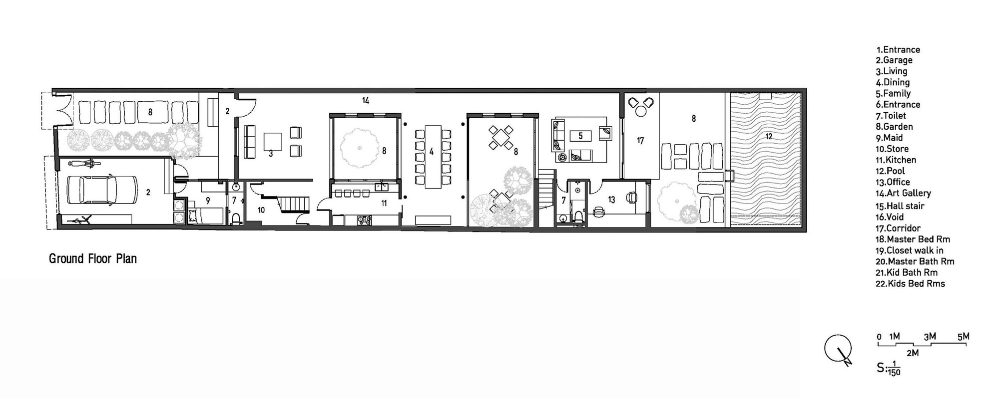
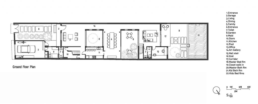
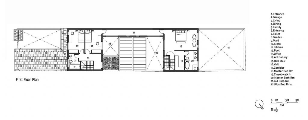
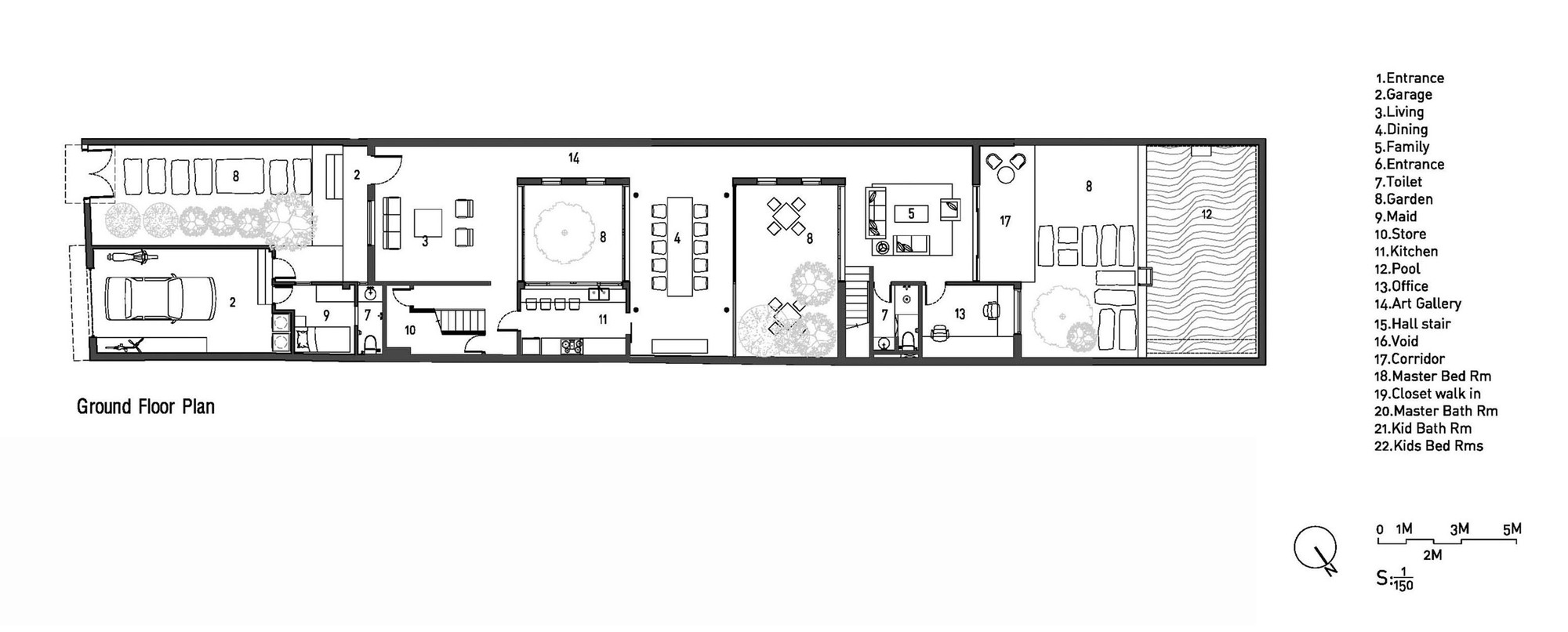
Modern Tube House được mô phỏng theo kiểu nhà ống truyền thống của Hà Nội. Những ngôi nhà này dài và sâu đến mức chúng thường có sân trong để cung cấp ánh sáng và thông gió tự nhiên tại các vị trí giữa các khối nhà. Lối đi qua nhà là sự chuyển động giữa bên trong và bên ngoài, giữa không gian bên ngoài và không gian bên trong.
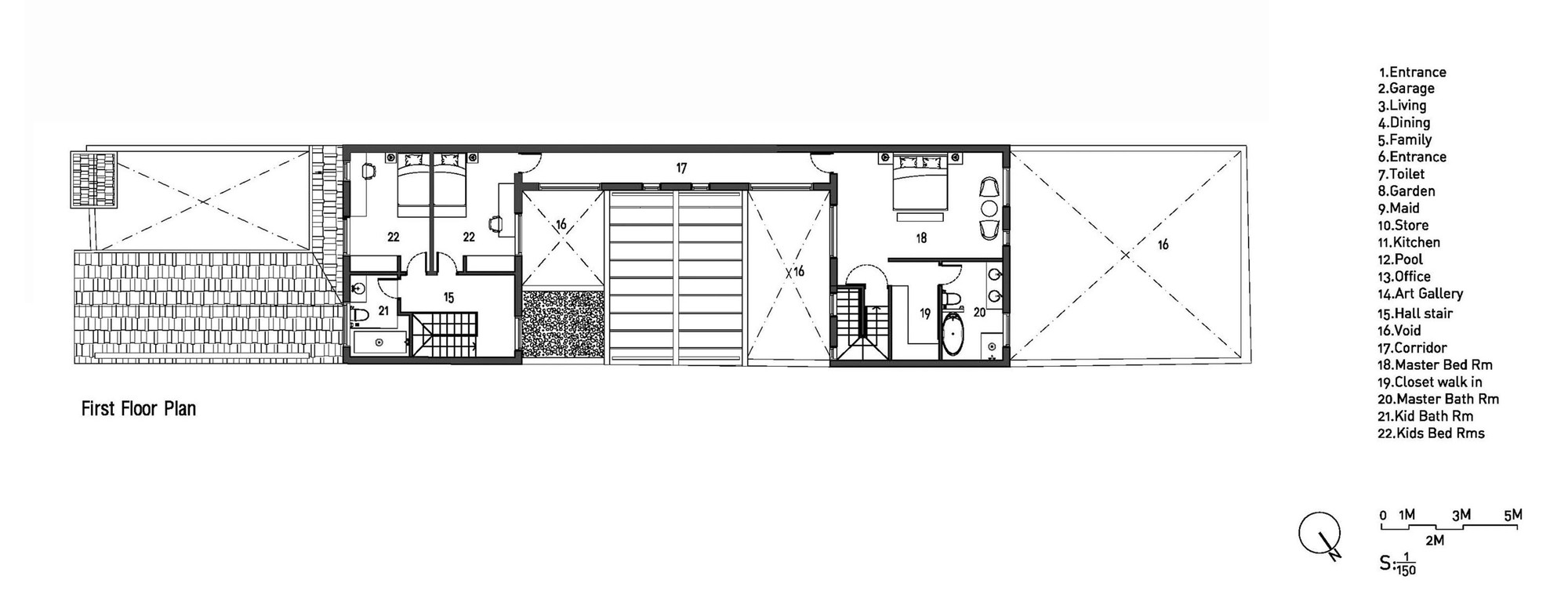
Nhóm KTS đã lấy mô hình bản ngữ này và cập nhật nó. Không chỉ theo phương pháp truyền thống, một người còn có thể đi lại trong nhà qua các bức tường có thể di chuyển, một phong cách điển hình của Nhật Bản.
Không gian xã hội của ngôi nhà là phòng ăn gia đình. Căn phòng này nằm ở vị trí trung tâm của ngôi nhà giữa hai sân trong và ngôi nhà gạch.
Để làm nổi bật cảm giác về một trung tâm mở trong nhà, hệ thống kết cấu của ngôi nhà kính là thép, không giống như phần còn lại của ngôi nhà là bê tông. Bằng cách này, hệ thống kết cấu của dự án đáp ứng các sắc thái trong khái niệm của kiến trúc.
- Thiết kế: MimANYstudio, REAL
- Diện tích: 250 m²
- Địa điểm: Thuận An, Bình Dương
- Hình ảnh: MimANYSTUDIO






















































Để lại đánh giá