Mặt tiền ngôi nhà lấy cảm hứng từ dòng nước chảy len lỏi qua từng phiến đá, bụi cây. Công trình mang đến một làn gió mới, một dòng nước mát cho khu phố xung quanh với những ngôi nhà có kiến trúc tự phát, theo lối mòn và lặp đi lặp lại.

Gia chủ là những người trẻ tuổi, họ mong muốn một ngôi nhà đơn giản, không phô trương, cầu kỳ. Một ngôi nhà thoáng mát, gần gũi với thiên nhiên. Nơi họ được là chính mình, tránh xa nhịp sống hiện đại hối hả. Mỗi giây phút ở nhà là những giây phút yên tĩnh nhất, là chốn bình yên và lấy lại năng lượng sau những giờ làm việc căng thẳng.

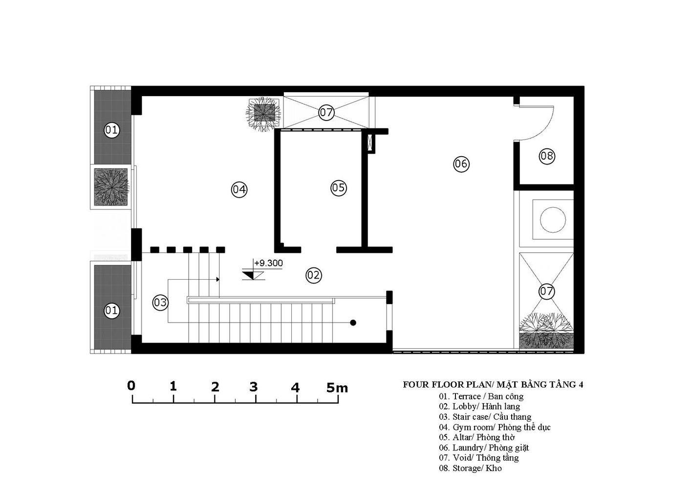
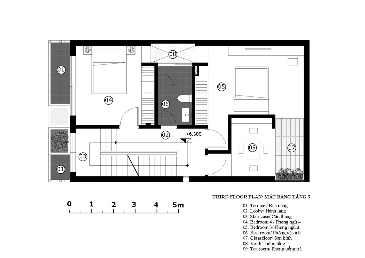
Lô đất có diện tích không lớn lắm. Kiến trúc sư phải cân đối giữa mong muốn của gia chủ, công năng sử dụng và tiêu chí đưa ra: tất cả các không gian đều phải tiếp xúc với ánh sáng tự nhiên và thông thoáng. Phương án đưa ra là tạo hàng chục giếng trời theo phương thẳng đứng để tạo không gian xanh cho các chức năng xung quanh các phòng chức năng.

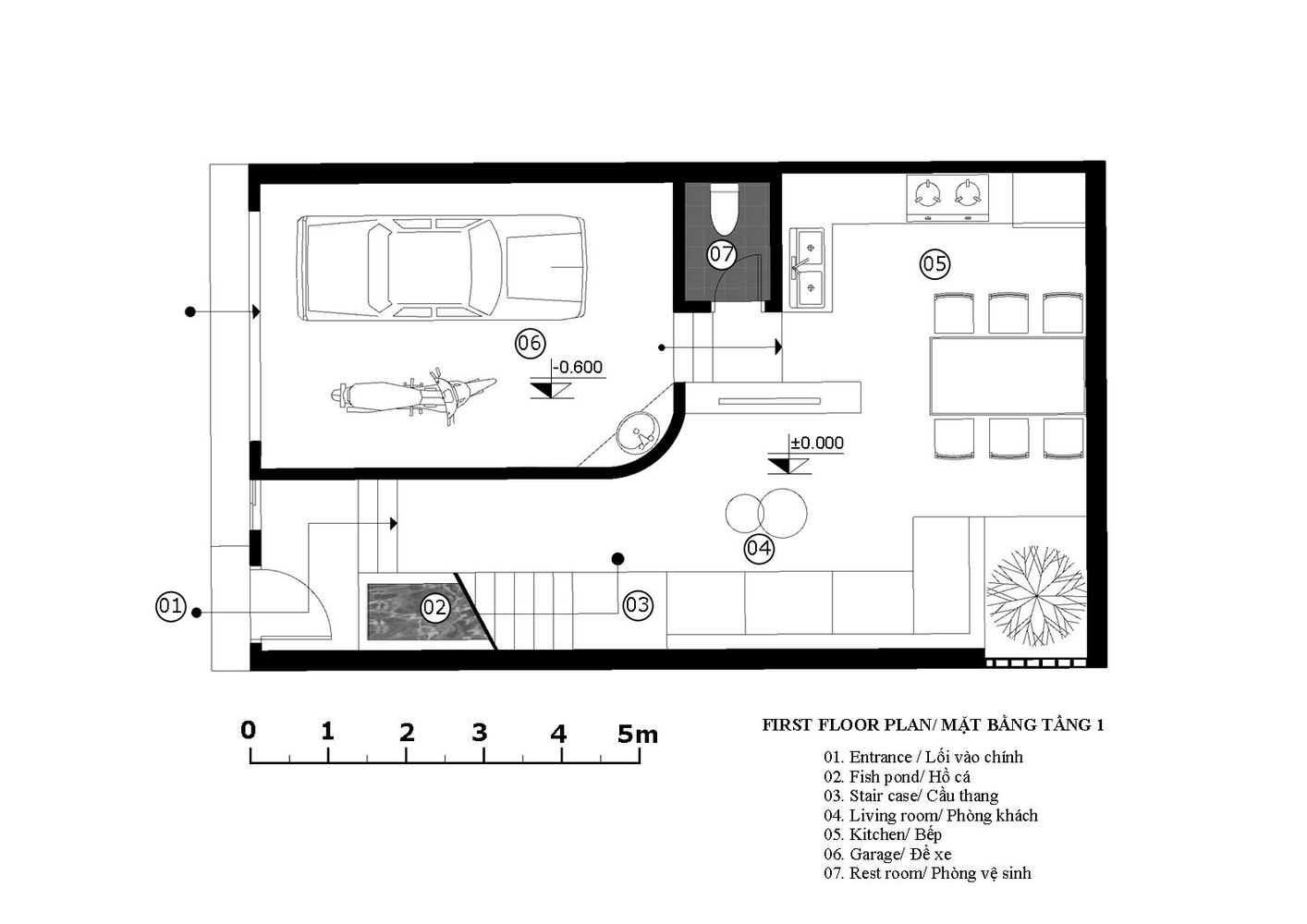
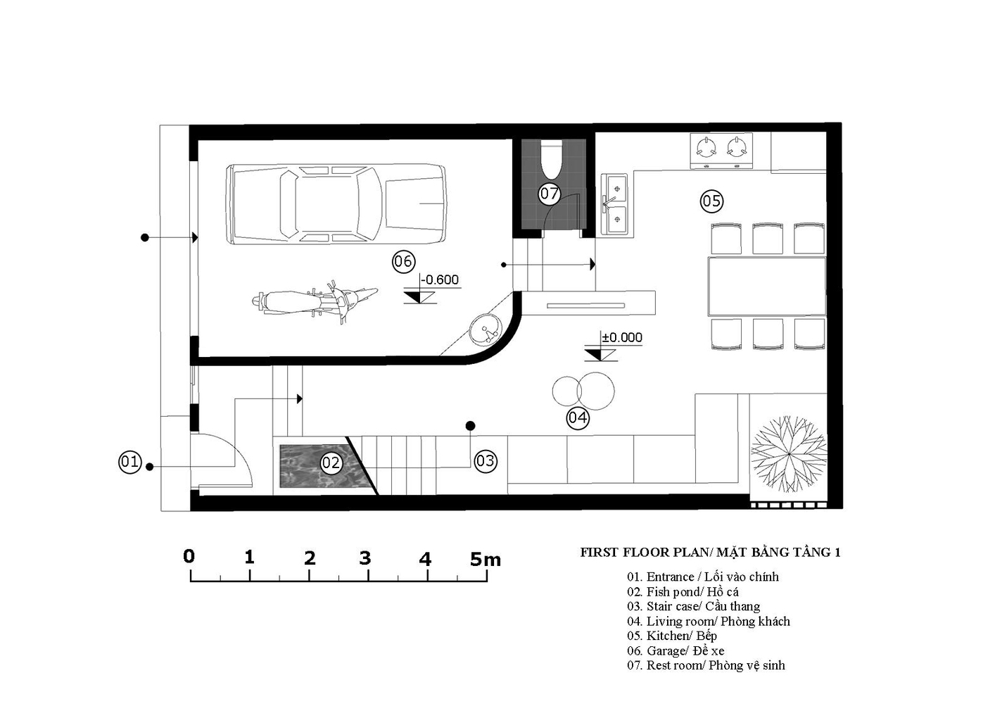
Tầng trệt với gara, phòng khách, bếp và phòng ăn. Không gian nội thất đơn giản và tinh tế. Không hào nhoáng. Điểm nhấn chính của không gian tầng 1 là những hàng cây xanh mát dưới bầu trời. Một điểm nhấn đáng quý nơi phố thị chật hẹp. Cầu thang là không gian kết nối các tầng trong nhà chứ không được bố trí ở giữa nhà như các thiết kế thường thấy ở nhà phố.

Bài toán đặt ra cho người thiết kế là làm sao để di chuyển lên xuống không bị mỏi và chán. Giải pháp đưa cầu thang ra trước nhà, lấy sáng từ mặt tiền là một điểm cộng của Waterfall House. Cầu thang được thiết kế mở, giúp ánh sáng lan tỏa khắp không gian. Với thiết kế này, thiên nhiên được đưa vào bên trong ngôi nhà, những tia nắng mặt trời nhảy múa theo nhịp điệu của từng khoảnh khắc thời gian. Không gian thay đổi theo từng giờ, từng ngày, từng mùa trong năm.
- Thiết kế: V+studio
- Diện tích: 72 m²
- Địa điểm: Hải Dương
- Năm: 2019
- Hình ảnh: Trieu Chien




















































Để lại đánh giá