[Dẫn lời KTS]
Công trình lần đầu được xây dựng vào những năm 1980, đã trải qua vài lần cải tạo và cơi nới. Đến nay, do sự phát triển của gia đình thành gia đình ba thế hệ gồm bảy người nên có nhu cầu tạo ra một không gian đáp ứng cuộc sống hiện tại và gắn kết các thành viên trong gia đình.
Mong muốn tạo ra một không gian yên tĩnh và thân mật, phù hợp với điều kiện khí hậu nhiệt đới nóng ẩm của địa phương, đảm bảo tiện nghi và riêng tư cho việc nghỉ ngơi, sinh hoạt của gia đình trong bối cảnh đông đúc của khu vực.
Dựa trên việc nghiên cứu kĩ càng về cấu trúc hiện trạng, về các thành phần có thể loại bỏ và các thành phần buộc phải giữ lại trong quá trình cải tạo. Tuy nhiên có một số bộ phận kết cấu không thể chắc chắn được nếu không tháo dỡ trong quá trình sửa chữa. Vì vậy, kiến trúc sư quyết định đưa ra một kế hoạch cho phép thiết kế ngẫu hứng và tùy biến xây dựng các thành phần không chắc chắn trên công trường.
Giải pháp cấu trúc mới tạo ra một sự liên kết liên tục giữa các không gian sử dụng, sự kết nối giữa trong và ngoài, sự kết nối giữa con người và thiên nhiên, tránh việc con người bị chia cách hoàn toàn với thiên nhiên bởi công trình kiến trúc nhưng vẫn đảm bảo được tính riêng tư.
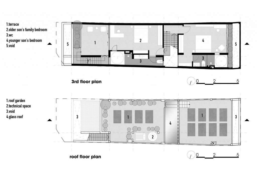
Không gian sinh hoạt gia đình và bếp được đặt ở vị trí trung tâm của nhà, đồng thời là vị trí có khối tích không gian lớn nhất có thể được tạo thành, là nơi mọi người trong gia đình dành hầu hết thời gian sử dụng trong ngày, từ không gian sinh hoạt gia đình có thể liên kết với tất cả các không gian khác.
Các không gian phục vụ được nép về một phía dựa trên hệ kết cấu cũ, đảm bảo nhu cầu sử dụng cho các thành viên trong gia đình. Tránh gây ảnh hưởng đến các không gian chính.
Với tiêu chí khắc phục những hạn chế về thông gió và chiếu sáng tự nhiên của cấu trúc cũ, cấu trúc mới tận dụng tối đa việc chiếu sáng và thông gió tự nhiên cho toàn nhà, giảm thiểu việc sử dụng năng lượng trong quá trình vận hành.
Tất cả các phòng đều được bố trí cửa sổ thông gió ở 2 đầu, đảm bảo việc thông gió xuyên phòng từ trước ra sau nhà. Dựa trên hệ kết cấu cũ, KTS đề xuất mở 3 vị trí thông tầng để đảm bảo việc thông gió trục đứng đạt được hiệu quả tốt nhất, cùng việc tạo ra khoảng không gian đệm phía trước nhà, phối hợp với cây xanh để ngăn việc bức xạ nhiệt trực tiếp vào công trình.
Ngoài ra việc bố trí yếu tố mặt nước ở tầng trệt nhằm cân bằng độ ẩm và tạo chênh lệch áp suất giúp cho việc thông gió hiệu quả hơn.
Màu đỏ của ngôi nhà được phát triển từ phần cầu thang đá mài tầng trệt được giữ lại nguyên trạng trong quá trình sửa chữa, đồng thời cùng việc tái sử dụng lại các món đồ nội thất cũ của gia đình trong thiết kế sẽ giúp gợi lại những kí ức gắn liền với ngôi nhà trong mỗi người.
- Thiết kế: dmarchitects
- Diện tích: 270 m²
- Địa điểm: Q.5, TP.HCM
- Năm: 2021
- Hình ảnh: Paul Phan



































































Để lại đánh giá