NT’s Habitat là dự án cải tạo một nhà kho cũ nhỏ ở Phan Thiết với thời tiết khô nóng quanh năm trở thành một ngôi nhà thân yêu cho một gia đình bốn người.
Ngôi nhà bao gồm các khu vực mở để kết nối và các khu vực khép kín để tạo sự riêng tư. Khu vực khép kín bao gồm phòng ngủ và phòng tắm trong khi khu vực mở bao gồm không gian làm việc, nhà bếp và sân chơi cho trẻ em. Tất cả đều kết nối với một giếng trời ở giữa nhà. Sự hiện diện của giếng trời phục vụ nhiều mục đích. Thứ nhất, nó tăng cường thông gió để giảm nhiệt do thời tiết địa phương. Thứ hai, nó cung cấp ánh sáng tự nhiên vào ban ngày để giảm thiểu điện năng tiêu thụ.
Kỹ thuật bê tông cốt thép thông thường được sử dụng để tạo khung cho công trình, nhưng có độ cao cao hơn bình thường để giữ được nhiều không khí mát mẻ nhất có thể. Mặt tiền được xây bằng gạch nung sẵn có tại địa phương và được lắp đặt cẩn thận, làm tăng vẻ đẹp của toàn bộ công trình, tạo kênh dẫn luồng không khí từ ngoài vào trong và tạo tầm nhìn cho người trong gia đình. Bên cạnh đó, bức tường trắng phun sa thạch được sử dụng để giảm sự hấp thụ ánh sáng mặt trời.
Tầng một là nơi gia đình quây quần bên nhau nhiều nhất. Vì là nơi làm việc của bố mẹ nên khu vực làm việc được thiết kế trong không gian có tầm nhìn thoáng và dễ dàng chăm sóc con cái. Một thư viện nhỏ bên dưới cầu thang, nơi bọn trẻ có thể đọc sách hoặc ngủ trưa. Khu vực sân chơi cũng được thiết kế như trung tâm của ngôi nhà khi được hạ xuống vài bậc thang so với mặt sàn. Bình thường thì nơi đây sẽ là nơi vui chơi ăn uống hàng ngày, nhưng khi cần thì sẽ chuyển thành một nơi tụ họp của tất cả các thành viên trong gia đình trong những ngày nghỉ, đặc biệt là dịp Tết.
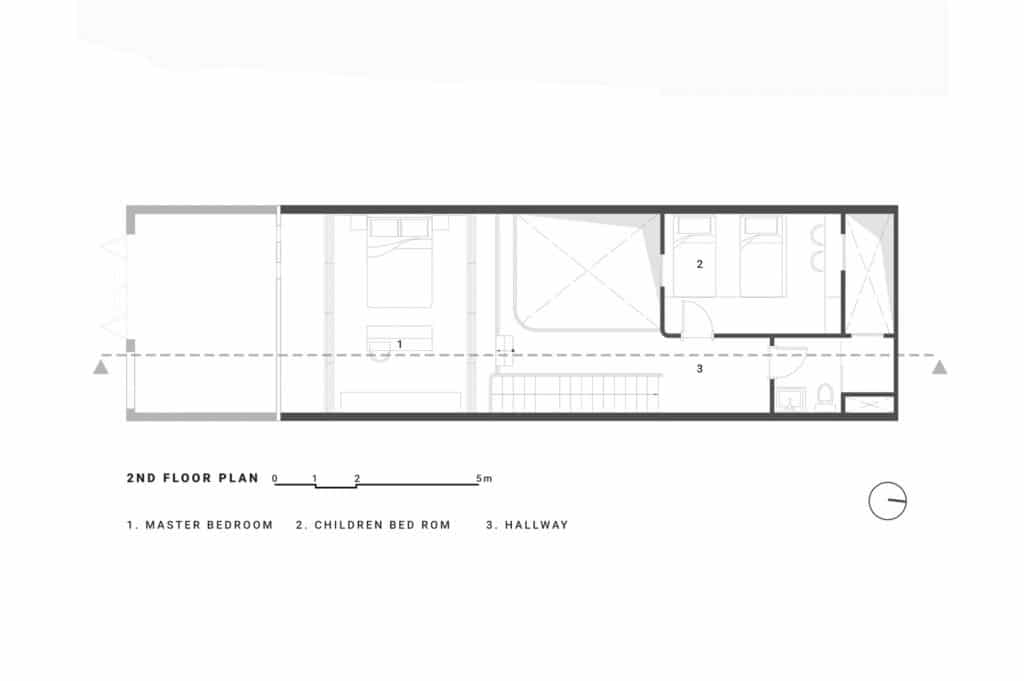
Tầng 2 được thiết kế với nguyên tắc sáng – tối tạo cảm giác ấm cúng khi nghỉ ngơi trong phòng ngủ và tiếp thêm năng lượng vào buổi sáng. Gạch xám kết hợp với khảm xanh trong phòng tắm giúp tạo cảm giác nhẹ nhàng cho người dùng. Phòng ngủ chính được nâng cao khiến nó trở nên khác biệt với xung quanh. Cửa trượt được sử dụng ở cả hai bên của căn phòng, làm cho nó thoáng khí hơn.
- Thiết kế: Flex.atelier
- Diện tích: 190 m²
- Địa điểm: Phan Thiết
- Năm: 2020
- Hình ảnh: Minq Bui
THAM GIA CHIA SẺ Ý KIẾN VỀ CHỦ ĐỀ NÀY CÙNG ARC VIBES


































Để lại đánh giá