Ngôi nhà hiện đại này có một số gợi nhớ về kiến trúc truyền thống, giúp nó trông vừa tươi mới vừa hài hòa với cảnh quan. Nhìn từ trên cao, ngôi nhà như hai khối nhỏ màu trắng tinh tương phản với lớp vỏ gạch riêng biệt. Đó là phép ẩn dụ của KTS về mối quan hệ giữa cái cũ và cái mới, cái riêng và cái chung, và các thế hệ trong gia đình.

Trước khi lên kế hoạch cho ngôi nhà, nhóm KTS đã nghĩ tới việc ngôi nhà mới sẽ tương tác và hài hòa với môi trường xung quanh như thế nào, đặc biệt là các tòa nhà gần đó, để chúng có thể tạo thành một sự kết hợp hài hòa mà không làm mờ đi tinh thần và cá tính của chính ngôi nhà.

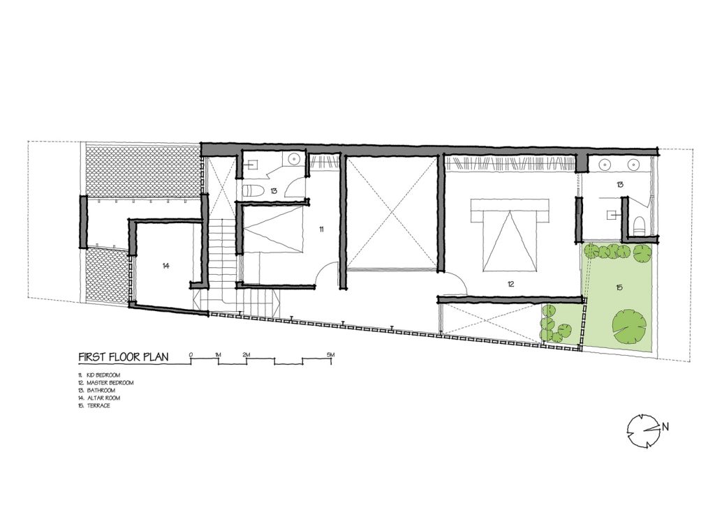
Gạch tạo thành một lớp bao ngoài cùng để bảo vệ toàn bộ ngôi nhà. Ngoài ra, chúng còn lọc vi khí hậu bên trong. Các khoảng đệm như hành lang, hiên và khoảng trống được bố trí hợp lý để lưu thông không khí trong lành. Sơ đồ mặt bằng lấy cảm hứng từ những ngôi nhà nông thôn ba gian truyền thống, bao gồm ba khu vực chính ở trung tâm và hai phòng ngủ ở hai bên. Các khu vực này nằm song song với khu đất trống liền kề nhằm đón gió và ánh sáng tự nhiên.
- Thiết kế: Block Architects
- Diện tích: 148 m²
- Địa điểm: Trà Vinh
- Năm: 2018
- Hình ảnh: Quang Dam






















































Để lại đánh giá