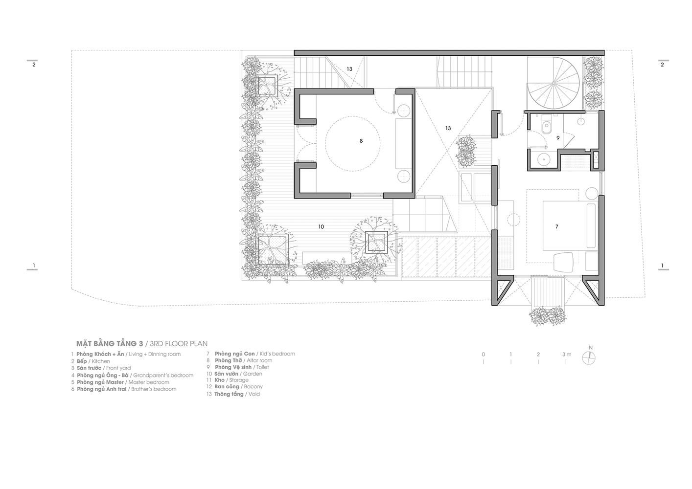
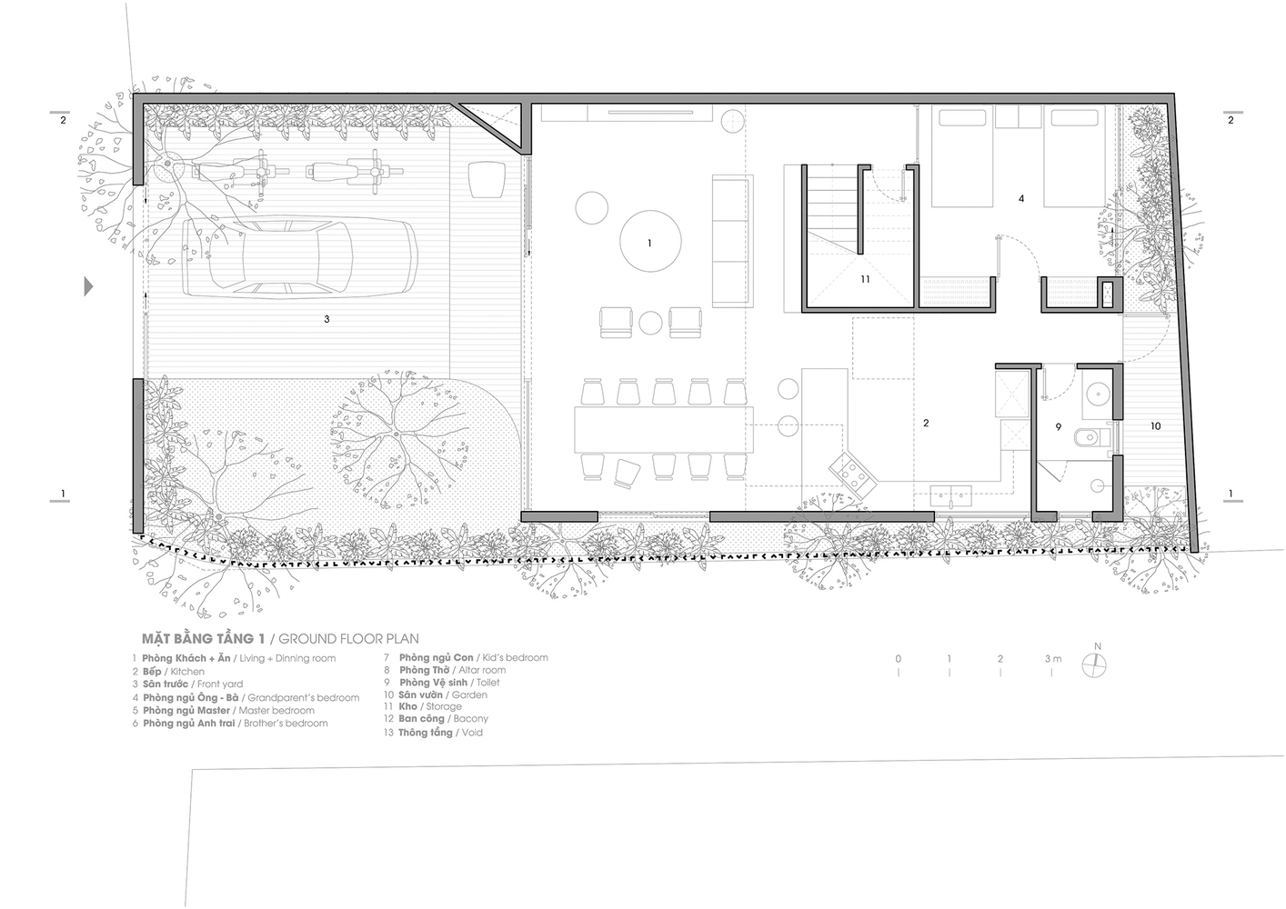
Ngôi nhà được thiết kế dựa trên nguyện vọng của chủ sở hữu: vừa là nơi thanh bình để thư giãn cuối tuần, vừa là khuôn viên ngập tràn cây xanh, ánh sáng và sự riêng tư tuyệt đối. Do đó, nhóm thiết kế đã quyết định tách ngôi nhà thành 2 phần với cách sắp xếp lệch tầng uốn lượn nhằm tạo sự riêng tư và tối ưu hóa không gian mặt tiền bên trong. Vì khu vực này được sử dụng cho nhiều hoạt động di chuyển, mỗi ban công và bộ cầu thang được tùy chỉnh đặc biệt và thay đổi theo từng tầng để tránh lặp lại trong di chuyển và tối đa hóa công năng sử dụng.
Nhận thấy việc sử dụng không hiệu quả mái nhà ở các thành phố đang phát triển nhanh, cũng như rào cản khoảng cách giữa ngôi nhà và công viên công cộng, nhóm thiết kế đã nảy ra ý tưởng kết hợp một “công viên trên sân thượng” cho ngôi nhà. Các thành viên trong gia đình có thể ở trong nhà và trải nghiệm các hoạt động sáng sớm như tập thể dục hoặc thư giãn dưới bóng cây ngay trên nóc nhà của mình. Vì có rất nhiều không gian trống, công viên sân thượng cũng có thể biến thành một vườn bách thảo, nơi trồng rau và cây trái để dùng.
Các ngăn ban công được nhấn bằng gạch đỏ giống các thùng đựng thực vật lớn nhỏ. Chúng được sắp xếp theo một trật tự không định hướng và diễn ra ở nhiều nơi trong nhà cho các hoạt động trồng cây thiết thực. Bằng cách này, ngôi nhà luôn được bao phủ bởi màu xanh lá cây mang lại cảm giác thư thái, giảm stress cho gia đình.
- Thiết kế: MDA Architecture
- Diện tích: 450 m²
- Địa điểm: Tân Thới Nhất, Q.12, TP.HCM
- Năm: 2019
- Hình ảnh: Quang Tran
THAM GIA CHIA SẺ Ý KIẾN VỀ CHỦ ĐỀ NÀY CÙNG ARC VIBES
























































Để lại đánh giá