[Dẫn lời KTS]
Toạ lạc tại Keangnam, toà nhà cao nhất Hà Nôi, Party Apartment được kết hợp từ 2 tầng cao rộng với tầm nhìn thoáng đạt ra thành phố. Đây là một yếu tố quan trọng quyết định đến phong cách thiết kế, tạo ra một không gian mới mẻ và thuận tiện khi sử dụng.
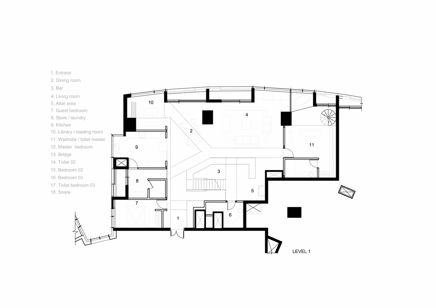
Giải pháp được nhóm KTS đưa ra là các phòng ngủ, phòng kỹ thuật và bổ sung nên được bố trí ở bên cạnh, để gia chủ có không gian trung tâm là nơi sinh hoạt chung.
Các tầng được kết nối bằng một cấu trúc hình chữ Y, được tính toán nối với nhau mỗi 10m trong khi vẫn hoàn toàn độc lập với nhau.
Sàn nhà được làm sạch trước, sau đó được phủ bởi một lớp bê tông mỏng để có bề mặt sáng bóng đồng thời có tác dụng trang trí. Các phòng ngủ, phòng kỹ thuật và phụ trợ được bố trí riêng biệt thành các khối bê tông. Trần nhà được lắp các thanh gỗ để che đi sự lộn xộn.
Một tiện ích tuyệt vời khác là hệ thống giao thông tuần hoàn. Không gian căn nhà như vô tận, mọi người sẽ không có cảm giác lặp lại ở bất kỳ vị trí nào trong nhà.
Sau khi hoàn thiện, chủ nhân của căn hộ nhận xét rằng đây sẽ là nơi rất thích hợp để tổ chức những bữa tiệc. Đó cũng chính là lý do về cái tên “Căn hộ tiệc tùng”.
- Thiết kế: Nghiêm Phong, Đào Thành
- Diện tích: 350m2
- Địa điểm: toà nhà Keangnam, Hà Nội
- Năm: 2016
- Hình ảnh: Quang Tran





























































Để lại đánh giá