[Dẫn lời KTS]
Phan Rang, nổi tiếng với ánh nắng mặt trời và gió quanh năm. Người dân nơi đây thường lựa chọn tránh đương đầu với tự nhiên. Những ngôi nhà luôn kín đáo để tránh ảnh hưởng của môi trường vào các chức năng sử dụng, luôn có sự phân biệt rõ ràng giữa bên trong và bên ngoài. An toàn về cách tiếp cận không gian sống khiến phần lớn thời gian trong ngày con người sinh hoạt trong nhà và ra ngoài vào buổi chiều tối, khi ánh sáng mặt trời không còn.
300 là số ngày nắng trong một năm, nghĩa là người Phan Rang sẽ nhìn thấy ánh nắng mặt trời nhiều hơn những nơi khác. Là vùng có nhiệt độ từ ánh nắng cao nhưng không khí nơi này lại trong lành và bầu trời dường như xanh hơn, sắc màu của ánh sáng cũng vì thế mà rõ ràng sắc nét hơn.
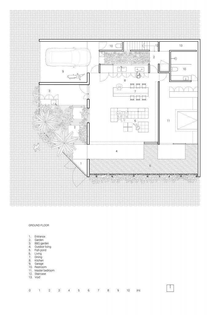
Sự hình dung ban đầu về các không gian sống luôn được bao quanh bởi không gian chuyển tiếp. Vùng không gian này được xem là lớp đệm giữa trong và ngoài môi trường. Vùng này cần rộng và lớn hơn để có thể cảm nhận rõ ràng, đi bên trong và linh động khi sử dụng. Vùng không gian này sẽ không rõ ràng, đôi khi thuộc bên ngoài chịu mọi ảnh hưởng từ môi trường, đôi khi thuộc bên trong làm rộng lớp không gian. Không khí đi qua vùng không gian này sẽ mát hơn nhờ nhiều loài cây bản địa và độ ẩm từ mặt nước. Con người ở vùng không gian này sẽ tiếp xúc nhiều hơn với ánh sáng tự nhiên và không khí tự nhiên.
- Thiết kế: DA+S
- Diện tích: 220 m²
- Năm: 2019
- Hình ảnh: Hoang Le Photography
































































Để lại đánh giá